LED
PROTECTION
LED
POWER
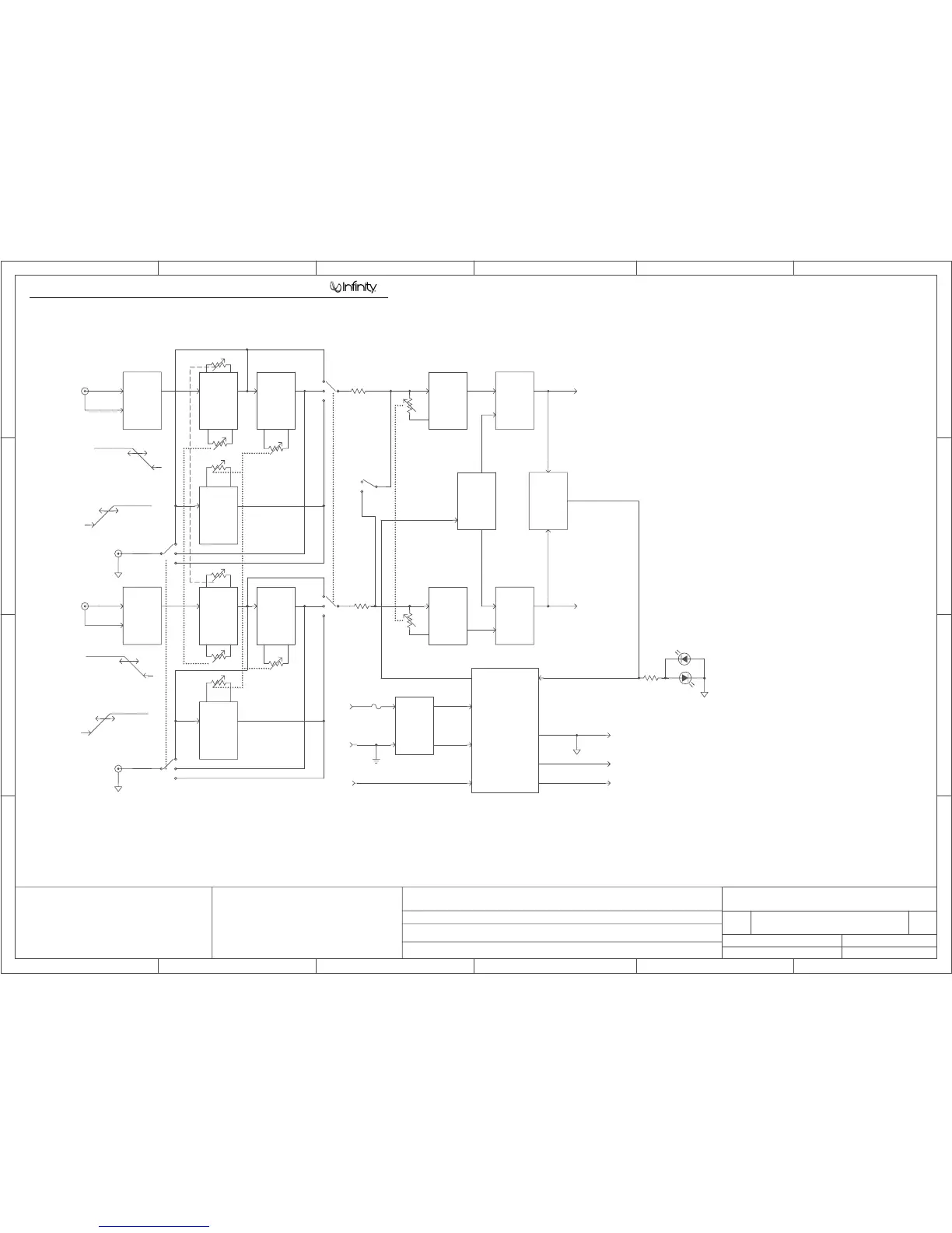
XOVER
SW
C
XOVER
SW
C
AUX
AUX
FUSE
GAIN
GAIN
L&R
STEREO
SW
XOVER
C
XOVER
SW
C
INPUT
RIGHT
LEFT
INPUT
5
1
S.ROJAS
L OUT
R OUT
2 CHANNELS (2X150W)
-16V
+16V
250mV-9V
250mV-9V
CIRCUIT
MUTE
AUX
32-320HZ
LP
HP
32-320HZ
LP
HP
32 320HZ
320HZ32
* NOTE: STATE VAR. FILTERS
*
*
*
*
+BATT.
320HZ
LP
Q
Q
FREQ.
FILTER
EMI
GND
ANALOG
GND
SUPPLY
SWITCHING
POWER
BASS
SAFE
CIRCUIT
MODULE
VARIABLE
FREQ.
BASS
FREQ.
SAFE
CIRCUIT
MODULE
VARIABLE
FREQ.
250mV-9V
250mV-9V
PRE
AMP
INV.
AMP
PRE
SW
AMP
AMP
HP
HP
LP
320HZ
AMP
DIFF.
DIFF.
AMP
FREQ.
VARIABLE
MODULE
FREQ.
VARIABLE
MODULE
PROTECTION
CIRCUIT
POWER
AMP
AMP
POWER
SPKR OUT
SPKR OUT
32-320HZ
32
32-320HZ
32
AUX
REMOTE
ON
G=1
G=1
ZD0134
This document is property of
harman consumer manufacturing, EL PASO.
not to be reproduce or used for
manufacturing purposes except on
harman ELP. order on prior written consent.
+R
-L
08/19/96
ZD0134-0.S01
harman consumer manufacturing, EL PASO.
DESIGNED BY: M. RODRIGUEZ
CHECKED BY: V. CAMPOS
RELEASED BY: M. RODRIGUEZ
KA102a
KA102a BLOCK DIAGRAM
00
FLAT
FLAT
FLAT
(BRIDGE)
HP
-2S
LP
HP
LP
LP
HP
HP
FLAT
LP
-2S
-2S
-2S
AB C D E F
4
3
2
1
FEDCBA
1
2
3
4
C
RevNumber
Title
Size
Date
Filename Sheet of
Drawn by