EasyManua.ls Logo

InSinkErator SS-100 - Installing the Disposer; Disposer Mounting

InSinkErator SS-100
16 pages
Print Icon
To Next Page IconTo Next Page
To Next Page IconTo Next Page
To Previous Page IconTo Previous Page
To Previous Page IconTo Previous Page
Loading...
6
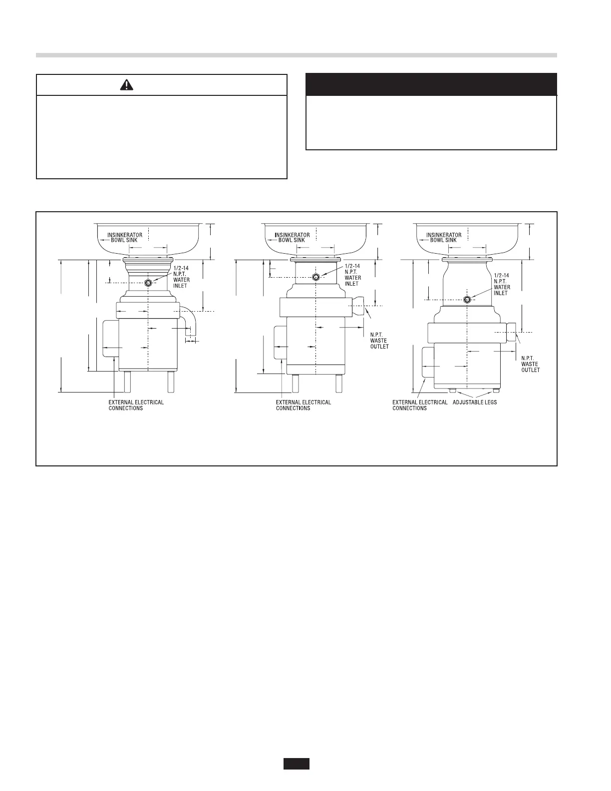
Installing the Disposer
PROPERTY DAMAGE
To avoid excess vibration, InSinkErator
recommends a minimum countertop thickness
of 16 gage stainless steel.
PERSONAL INJURY
For safe operation, install the disposer in
compliance with the minimum distance illustrated
in Figure 2.
Disposer must be properly installed to prevent
serious injury from moving shredder part.
DISPOSER MOUNTING
WARNING
NOTICE
23-3/4"
TO
31-1/8"
(603.25 mm
TO
790.58 mm)
6-1/2"
(165.10 mm)
8-3/4"
(222.25 mm)
8-3/4"
(222.25 mm)
7-1/8"
(180.98 mm)
13"
(330.20 mm)
3"
(76.20 mm
)
SS-300 to SS-1000
6-5/8"
(168.28 mm)
7-3/8"
(187.33 mm)
7-3/4"
(196.85 mm)
2-3/4"
(69.85 mm)
18-7/16"
(468.31 mm)
1 Phase
19-1/4"
(488.95 mm)
3 Phase
2"
(50.80 mm)
24-4/5"
TO
33-4/5"
(629.92 mm
TO
858.92 mm)
(WITH
OPTIONAL
LEGS
INSTALLED)
6-13 /16"
(173.04 mm)
SS-200
6-1/2"
(165.10 mm)
6-5/8"
(168.28 mm)
24-1/4"
TO
32-1/2"
(6
15.95 mm
TO
825.
50 mm)
(WITH
OPTIONAL
LEGS
INST
ALLED)
6-13 /16"
(173.04 mm)
4-7/8"
(123.83 mm)
6-3/8"
(161.93 mm)
1-1/2"
(38.10 mm)
3-3/8"
(85.73 mm)
7-11/16"
(195.26 mm)
17"
(431.80 mm)
1 Phase
18-1/4"
(463.55 mm)
3 Phase
SS-100
6-1/2"
(165.10 mm)
6-5/8"
(168.28 mm)
Figure 2. Distance from Table Top to Mounting Flange
NOTE: Minimum 1" (25.4 mm) clearance required between bottom of disposer
and floor for all 3 models.

Related product manuals