EasyManua.ls Logo

Inter-m H-4200 - Block Diagram

Inter-m H-4200
19 pages
Print Icon
To Next Page IconTo Next Page
To Next Page IconTo Next Page
To Previous Page IconTo Previous Page
To Previous Page IconTo Previous Page
Loading...
13
H-3200/4200
PROFESSIONAL POWER AMPLIFIER
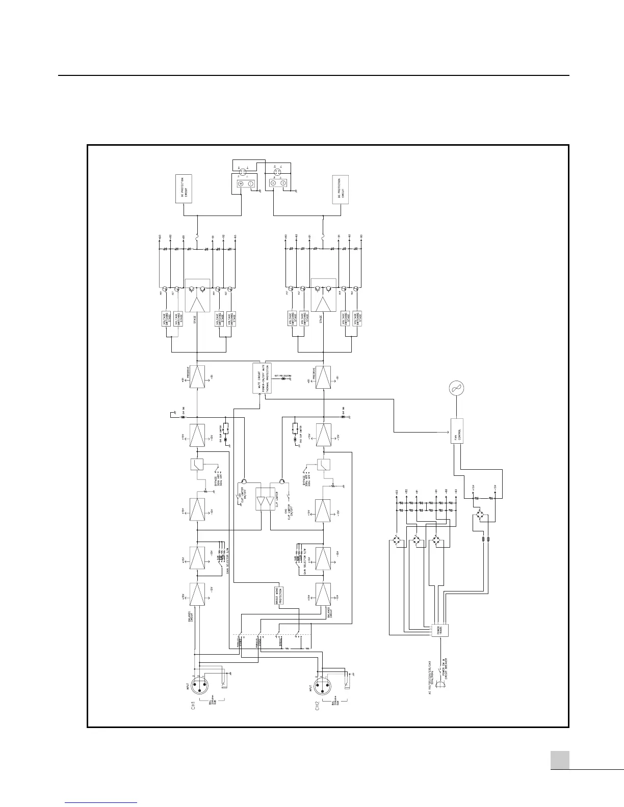
Block Diagram
Block Diagram

Related product manuals