EasyManua.ls Logo

Intergas Compact HRE 18 SB - 13 Electrical Diagram

Intergas Compact HRE 18 SB
52 pages
Print Icon
To Next Page IconTo Next Page
To Next Page IconTo Next Page
To Previous Page IconTo Previous Page
To Previous Page IconTo Previous Page
Loading...
Intergas Heating Ltd
45
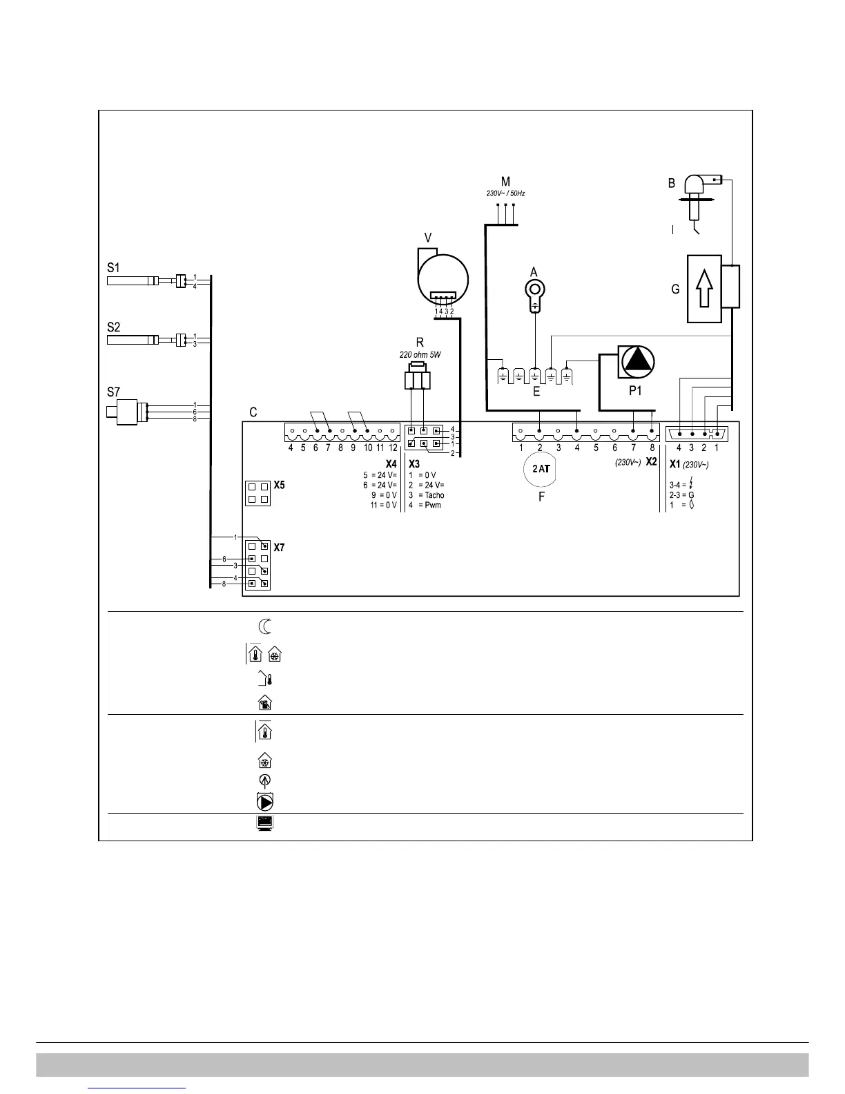
13 ELECTRICAL DIAGRAM
13.1 Electrical diagram HRE 18 SB, 24 SB & 30 SB
A
Earth connections heat-exchanger
F
Fuse (2A T)
P1
CH pump
S7
CH water pressure sensor
B
Spark plug cover
G
Gas valve + ignition unit
R
Resistance
V
Fan
C
Boiler controller
I
Ionisation-/ ignition probe
S1
Flow sensor
E
Earth connections boiler controller
M
Main voltage
S2
Return sensor
Connector X4
24V=
4-5
External saving switch
(remove connection)
6-7
On/off room thermostat
(0,1A-24Vdc)
and/or frost thermostat (remove connection 6-7)
8-9
External sensor
(12k ohm / 25°C)
11-12
OpenTherm thermostat (remove connection 6-7)
Connector X2
230V
~
1-3
Room thermostat 230 AC (1=Switch live, 3=Live(fused)
1-3
Frost thermostat 230 AC (1=Switch live, 3=Live(fused)
2-4
Mains
(2=Live (brown), 4=Neutral (blue))
7-8
CV-pump
(8=L (brown), 7=N (blue)
Connector X5
Computer interface

Table of Contents

Other manuals for Intergas Compact HRE 18 SB