EasyManua.ls Logo

Intermatic ET90815CR - Page 7

Intermatic ET90815CR
48 pages
Print Icon
To Next Page IconTo Next Page
To Next Page IconTo Next Page
To Previous Page IconTo Previous Page
To Previous Page IconTo Previous Page
Loading...
ET90000 Series Electronic Timer
7
8. Make sure there are no wires under the board. Use
the (4) original screws to secure the relay board to
the mounting bracket.
9. Connect the cable from relay board to the Interface
board. Use the next available open connector (to
maintain sequential numbering). Push the connector
into the mating connector until the connector latches.
10. Close the door assembly and secure with its screw.
11. Connect/wire the circuit(s) that the ET90000-series
timer will control to the relay board terminal blocks.
12. Check the wiring to ensure that there are no mis-
wired circuits.
13. Reinstall the interior deadfront and secure with its
screws.
14. Remove the plastic cover over the keypads.
15. Apply power to the unit and program the new
channels. The ET90000 system recognizes the
new relay board, displays the circuits on the Status
Screen, and activates the correct ON/OFF keys.
16. Close enclosure door.
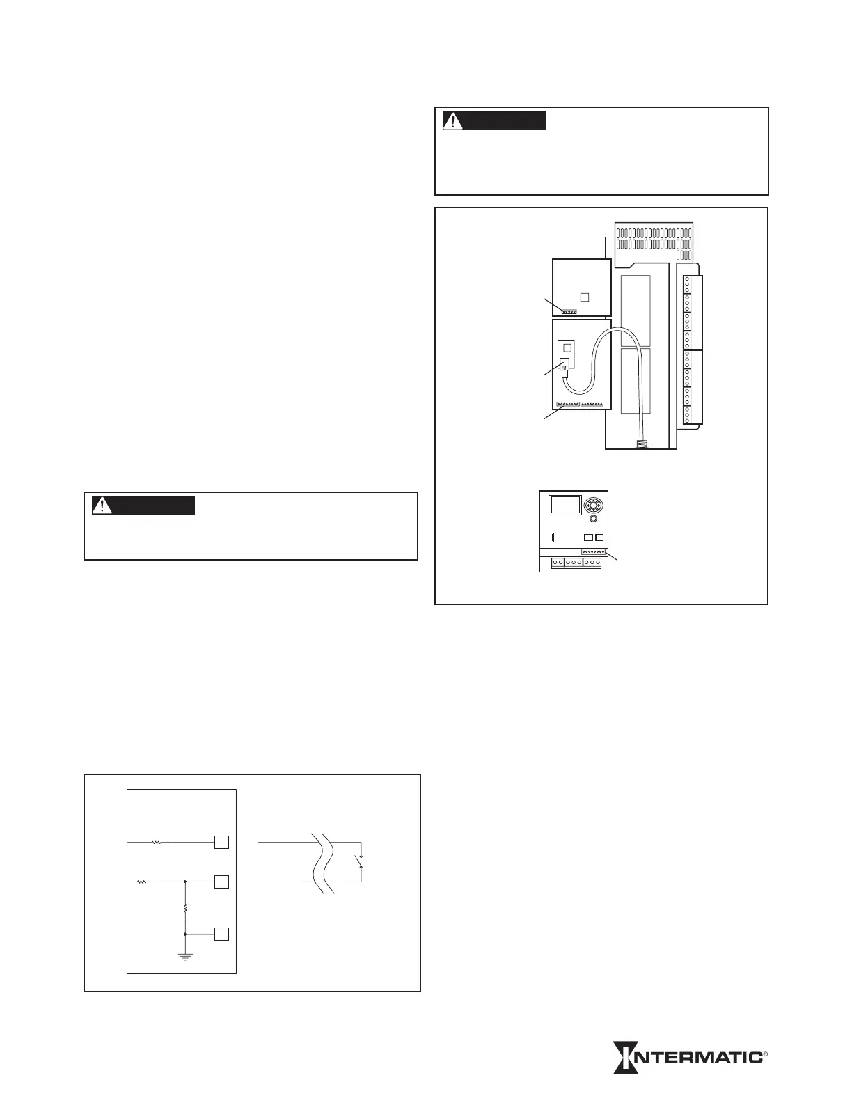
REMOTE SWITCH INSTALLATION
The ET90000 system is equipped with remote switching
capability. There are 2 overrides for the 1 and 2 circuit
models and 8 overrides for the 4, 8, 12, and 16 circuit
models. The ET90000 system supplies ve-volt limited
current through terminal connections located on the
system interface board. The maximum length of a remote
switch circuit is 1000 feet using 20 AWG twisted pair wire.
The factory recommends 16 AWG through 26 AWG wire
sizes and low voltage SPST (single-pole, single-throw)
switches. Route the cable through one of the knockouts
at the bottom center of the enclosure (see illustration
below and Figure 2).
MANUAL
SWITCH
5V
REMOTE (1 - 8)
ET90000 SERIES
EXAMPLE REMOTE INPUT
GND
5VDC
100 OHM
INPUT
100K
10K
GROUND
LOW-VOLTAGE WIRING FOR ETHERNET,
REMOTE SWITCH AND CAN BUS
Figure 2: Low Voltage Wiring
Ethernet
1 and 2 circuit system: For the optional Ethernet
connection, attach the Ethernet module to the plastic
deadfront at the bottom of the enclosure; connect the
ribbon cable to the wiring port on the left side.
4, 8, 12, 16 circuit system: Locate the Ethernet module
underneath the deadfront and hinged door in the low-
voltage wiring area. The device uses standard Ethernet
connector cable. Ethernet cable range is 100 meters
between active devices.
Route the cable through one of the knockouts at the
bottom center of the enclosure. Push the connector onto
the module until the latch sets. See Figure 2.
Note:
• Power LED: illuminates while power is ON
• LED1 on RJ-45 model: Ethernet speed – 10 (OFF)
or 100 (ON)
• LED2 on RJ-45 model: link and data activity
WARNING
To avoid fire, shock, or death, turn off power at circuit breaker
and test that power is off before wiring.
CAUTION
Keep low-voltage wiring separate from high-voltage wiring,
including deadfront material between wiring areas. Use
separate conduit for low-voltage wiring with no line voltage
circuits included.
CAN BUS AND REMOTE
INPUT CONNECTORS
4, 8, 12, AND 16 CIRCUIT MODELS
(DEADFRONT REMOVED)
ESC
ENTER
CAN BUS
CONNECTORS
ETHERNET
CONNECTION
REMOTE INPUT
CONNECTORS
1 AND 2 CIRCUIT MODELS

Related product manuals