EasyManua.ls Logo

INVT CHE100-7R5G/011P-4

INVT CHE100-7R5G/011P-4
124 pages
To Next Page IconTo Next Page
To Next Page IconTo Next Page
To Previous Page IconTo Previous Page
To Previous Page IconTo Previous Page
Loading...
Introduction
6
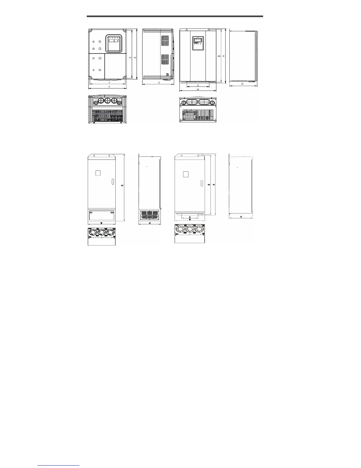
Figure1.5 Dimension (0.75~15kW).
Figure 1.6 Dimension (18.5~110kW).
Figure 1.7 Dimension (132~315kW).

Table of Contents

Related product manuals