EasyManua.ls Logo

INVT GD300L-7R5G-4

INVT GD300L-7R5G-4
174 pages
To Next Page IconTo Next Page
To Next Page IconTo Next Page
To Previous Page IconTo Previous Page
To Previous Page IconTo Previous Page
Loading...
Goodrive300-LIFT series inverter Product overview
-8-
3 Product overview
3.1 What this chapter contains
The chapter briefly describes the operation principle, product characteristics, layout, name plate and
type designation information.
3.2 Basic principles
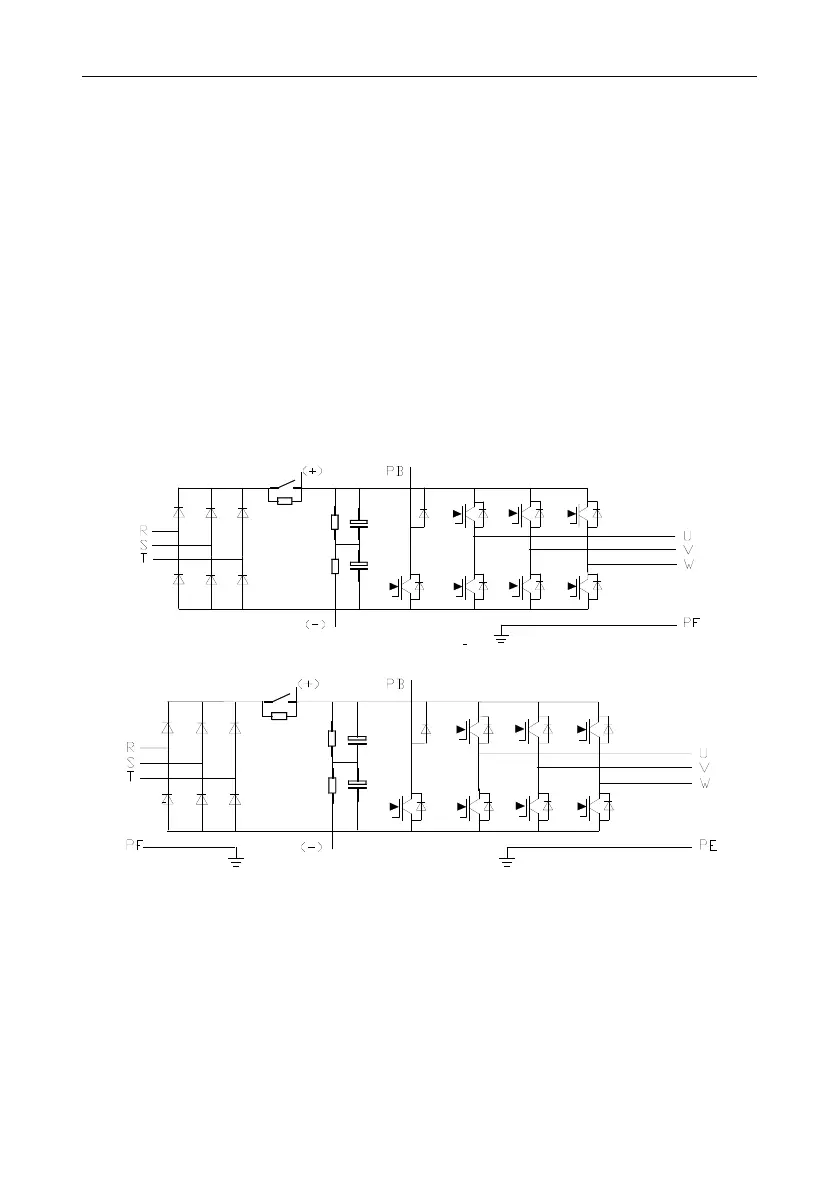
GD300L series inverters special for lifts are wall mountable devices for controlling asynchronous AC
induction motors and permanent magnet synchronous motors.
The diagram below shows the simplified main circuit diagram of the inverter. The rectifier converts
three-phase AC voltage to DC voltage. The capacitor bank of the intermediate circuit stabilizes the
DC voltage. The converter transforms the DC voltage back to AC voltage for the AC motor. The brake
pipe connects the external brake resistor to the intermediate DC circuit to consume the feedback
energy when the voltage in the circuit exceeds its maximum limit.
Figure 3-1 Main circuit for 45.5kW inverters
Figure 3-2 Main circuit for 7.515kW inverters

Table of Contents

Related product manuals