EasyManua.ls Logo

INVT Goodrive GD300-19-015G-4

INVT Goodrive GD300-19-015G-4
255 pages
To Next Page IconTo Next Page
To Next Page IconTo Next Page
To Previous Page IconTo Previous Page
To Previous Page IconTo Previous Page
Loading...
Goodrive300-19 series open loop vector inverter special for hosit Function parameters
-60-
Function
code
Name
Detailed instruction of parameters
Default
value
Modify
power
Setting range: 0.00~3.00
P03 Group Vector control
P03.00
Speed loop
proportional
gain1
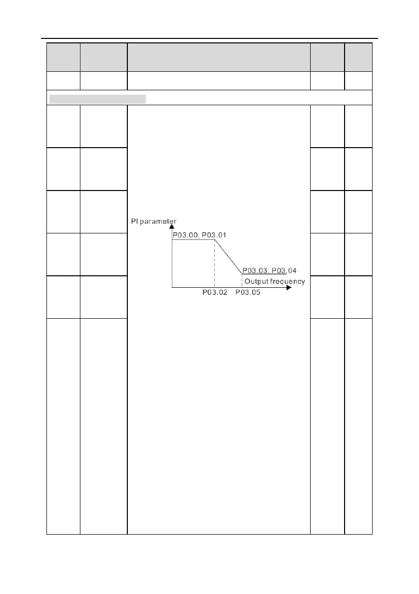
The parameters P03.00~P03.05 only apply to vector
control mode. Below the switching frequency 1
(P03.02), the speed loop PI parameters are: P03.00
and P03.01. Above the switching frequency 2
(P03.05), the speed loop PI parameters are: P03.03
and P03.04. PI parameters are gained according to
the linear change of two groups of parameters. It is
shown as below:
Setting the proportional coefficient and integral time
of the adjustor can change the dynamic response
performance of vector control speed loop. Increasing
the proportional gain and decreasing the integral time
can speed up the dynamic response of the speed
loop. But too high proportional gain and too low
integral time may cause system vibration and
overshoot. Too low proportional gain may cause
system vibration and speed static deviation.
PI has a close relationship with the inertia of the
system. Adjust on the base of PI according to different
loads to meet various demands.
The setting range of P03.00: 0~200.0
The setting range of P03.01: 0.000~10.000s
The setting range of P03.02: 0.00Hz~P03.05
The setting range of P03.03: 0~200.0
The setting range of P03.04: 0.000~10.000s
20.0
P03.01
Speed loop
integral
time1
0.200s
P03.02
Low
switching
frequency
5.00Hz
P03.03
Speed loop
proportional
gain 2
20.0
P03.04
Speed loop
integral time
2
0.200s
P03.05
High
switching
frequency
10.00Hz

Table of Contents

Related product manuals