EasyManua.ls Logo

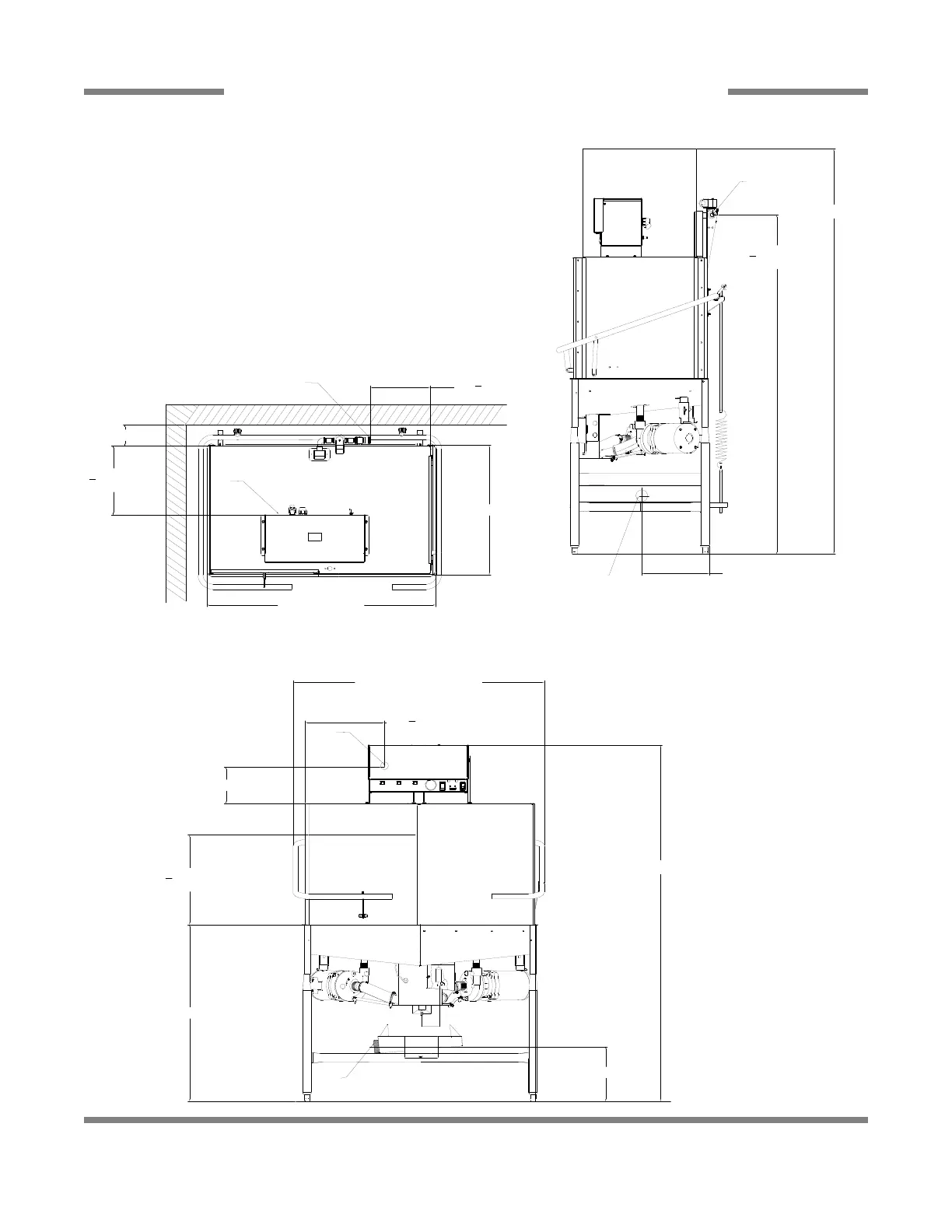
Jackson CONSERVER XL - Dimensions Conserver AXL2-CML (Universal Timer)

Jackson CONSERVER XL
94 pages
Print Icon
To Next Page IconTo Next Page
To Next Page IconTo Next Page
To Previous Page IconTo Previous Page
To Previous Page IconTo Previous Page
Loading...
C
B
78 [1981mm]
65
1
4
[1658mm]
13 [330mm]
44 [1118mm]
25 [635mm]
4 [102mm]
13
1
4
[337mm]
11
1
2
[295mm]
A
B
Conserver XL Series Installation & Operation Manual 7610-002-04-66
Issued: 11-07-2006 Revised: 10-22-2007
SECTION 1: SPECIFICATION INFORMATION
DIMENSIONS CONSERVER AXL2-CML
6
68 1/2 [1740 mm]
15
1
4
[387mm]
11 1/4 [283 mm]
34 [864mm]
17
1
4
[438mm]
MAXIMUM DISH CLEARANCE
C
48 1/2 [1232MM]
6 3/4 [171 mm]
A

Table of Contents

Other manuals for Jackson CONSERVER XL

Related product manuals