EasyManua.ls Logo

Jackson CONSERVER XL - Xls Bowl Option; Conserver AXLS Option

Jackson CONSERVER XL
94 pages
Print Icon
To Next Page IconTo Next Page
To Next Page IconTo Next Page
To Previous Page IconTo Previous Page
To Previous Page IconTo Previous Page
Loading...
5
1
4
[134mm]
1
2
[13mm]
18 [459mm]
21
1
2
[545mm]
8 [202mm]
5 [128mm]
A
B
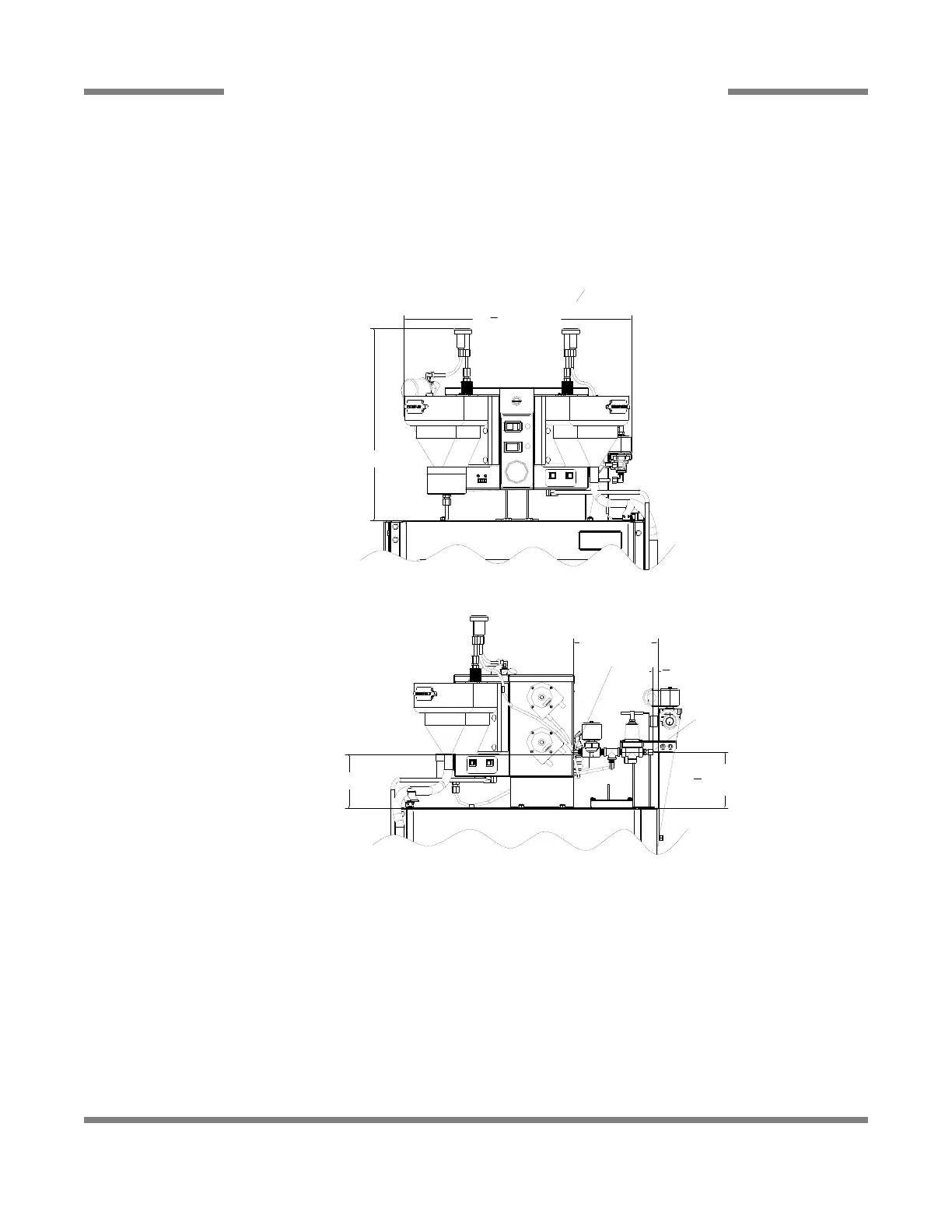
A - Electrical Connection
B - Water Connection,
1
4
"
Legend
Bowl Option - Right Side View
Bowl Option - Front Side View
Conserver XL Series Technical Manual 7610-002-10-23
Issued: 11-28-2007 Revised: N/A
SECTION 1: SPECIFICATION INFORMATION
XLS BOWL OPTION
12

Table of Contents

Other manuals for Jackson CONSERVER XL

Related product manuals