EasyManua.ls Logo

Jackson CONSERVER XL - Dimensions Conserver XL2-CML

Jackson CONSERVER XL
94 pages
Print Icon
To Next Page IconTo Next Page
To Next Page IconTo Next Page
To Previous Page IconTo Previous Page
To Previous Page IconTo Previous Page
Loading...
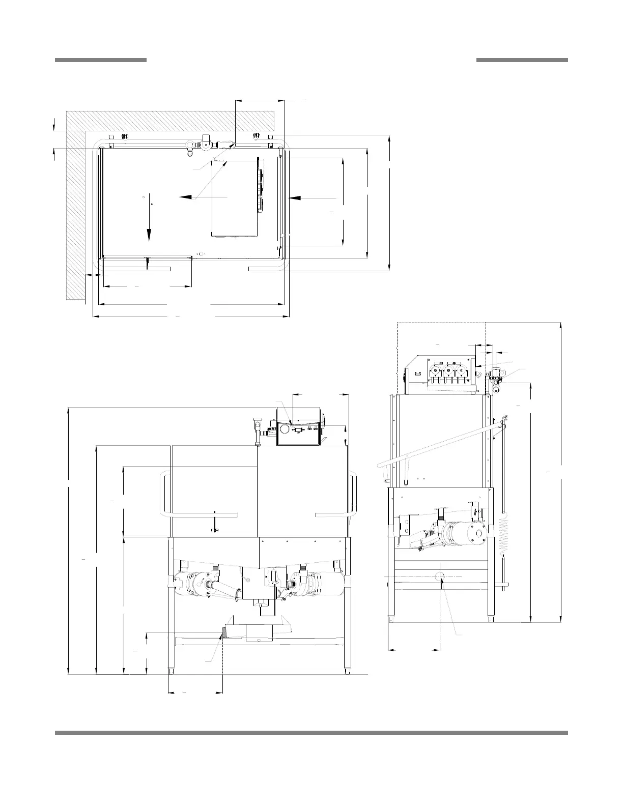
LEGEND
A - ELECTRICAL CONNECTION
B - WATER INLET, 3/4" IPS
C - DRAIN CONNECTION, 2" IPS
ALL DIMENSIONS ARE +/- 1/2"
FROM FLOOR DUE TO
ADJUSTABLE BULLET FEET.
20
3
4
[527mm]
26 [662mm]
32 [814mm]
4 [101mm]
20
3
4
[526mm]
44 [1115mm]
A
B
11
3
4
[296mm]
1mm]
46
1
4
[1176mm]
00000000
75
3
4
[1921mm]
13 [333mm]
60
1
2
[1534mm]
1 [24mm]
B
C
4
1
2
[111mm]
A
34 [863mm]
13
1
2
[344mm]
10
1
4
[261mm]
56
1
2
[1438mm]
66 [1679mm]
17
1
2
[445mm]
5 [127mm]
14 [355mm]
C
A
Conserver XL Series Technical Manual 7610-002-10-23
Issued: 11-28-2007 Revised: N/A
SECTION 1: SPECIFICATION INFORMATION
DIMENSIONS CONSERVER XL2-CML
10

Table of Contents

Other manuals for Jackson CONSERVER XL

Related product manuals