EasyManua.ls Logo

Janome JR3203N-BC - 4 External Dimensions; Unit External Dimensions; Jr3203

Janome JR3203N-BC
134 pages
To Next Page IconTo Next Page
To Next Page IconTo Next Page
To Previous Page IconTo Previous Page
To Previous Page IconTo Previous Page
Loading...
Specifications
Desktop Robot JR3000
100
2-φ5H6
4-M4
134
323
387
(5 depth)
(5 depth)
(138)
137
(35)
172
125(O.H)
410
50(Z stroke)
554
200(Y stroke)
66
268
15
5
122
A
(55)
60
200(X stroke)
2-50(M4ナット挿入)
2-25
100
(85)
70
128
(両側面)
83275
4-φ30
210
(bilateral view)
(M4 nut insertion)
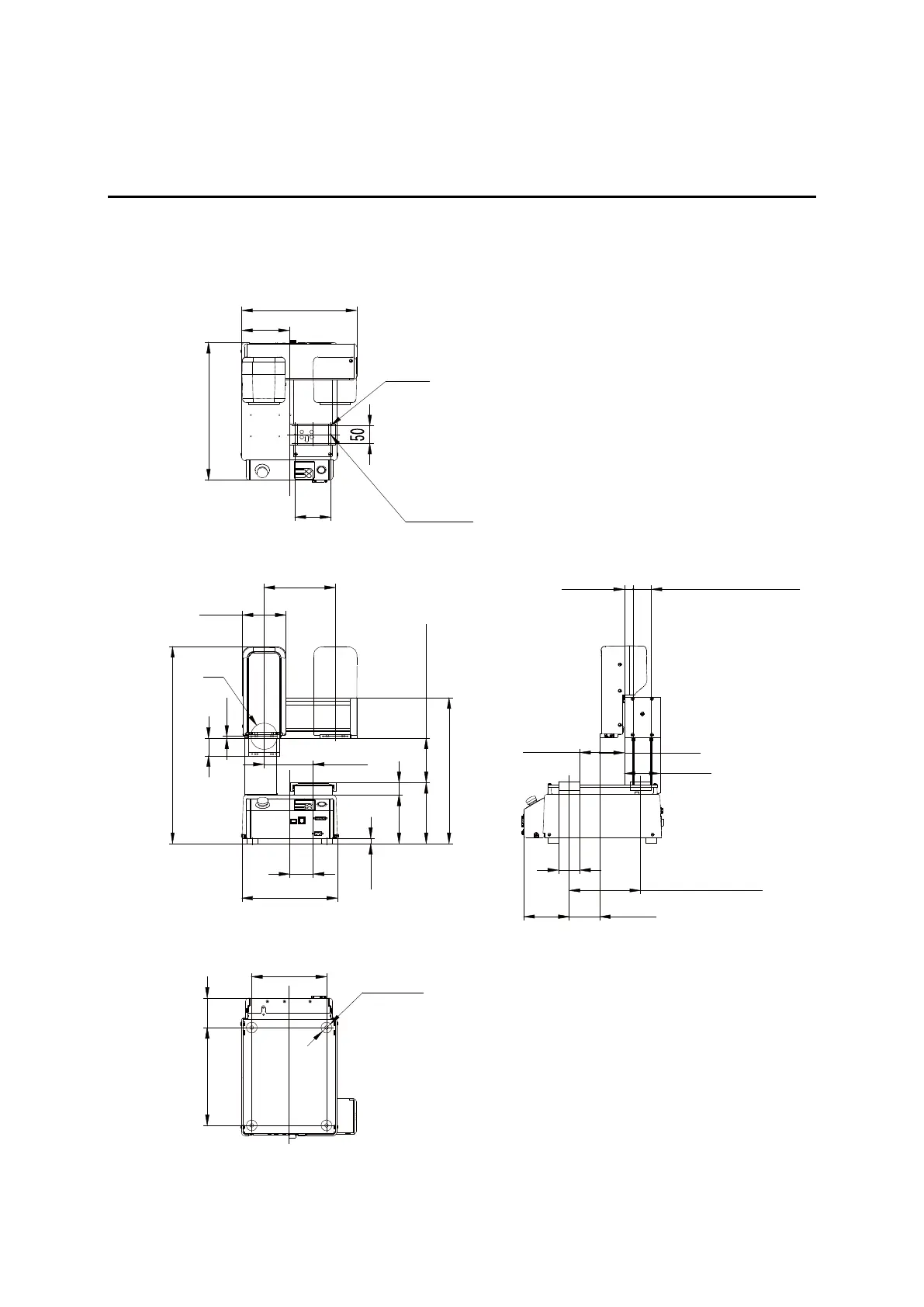
External dimensions of the JR3203
Series using the JR3203N-AC
model
as an example.
4. EXTERNAL DIMENSIONS
4.1 Unit External Dimensions
4.1.1 JR3203
24

Table of Contents

Related product manuals