EasyManua.ls Logo

jcb RTFL 930 - Maximum Wading Depth

jcb RTFL 930
200 pages
Print Icon
To Next Page IconTo Next Page
To Next Page IconTo Next Page
To Previous Page IconTo Previous Page
To Previous Page IconTo Previous Page
Loading...
Specifications
Performance Dimensions
176 176
9811/5700-7
950
Note: Complies with ISO 22915-13.
Important: The following data is intended for quick
reference only. Always refer to the rating plate in the cab.
Refer to Fork Ratings, Working with the Machine,
Operation.
823680-2
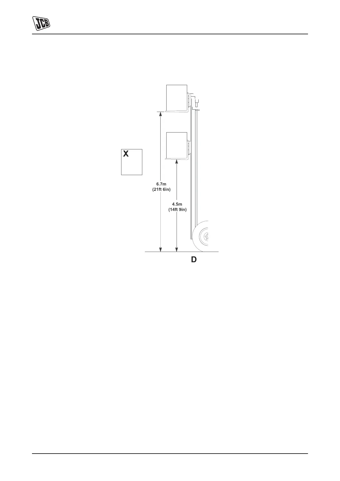
Fig 138. Lift Performance
Maximum Wading Depth
The maximum wading depth of these machines is 370mm
(14.5in). Water can enter the engine and axles and the
cooling fan can be damaged if the machine is operated in
deeper water.
Important: Under no circumstances must the rear axle
breather be blanked off, as this could cause a reduction in
brake efficiency.
4.5t
3.0t
D 6.7m (21ft 6in) Triplex
X Bar and Industrial carriage

Table of Contents

Related product manuals