EasyManua.ls Logo

Johnson Controls P70 - Page 3

Johnson Controls P70
12 pages
Print Icon
To Next Page IconTo Next Page
To Next Page IconTo Next Page
To Previous Page IconTo Previous Page
To Previous Page IconTo Previous Page
Loading...
P—P70, P72, and P170 Controls for Low Pressure Applications Product/Technical Bulletin 3
D
imensions
Two Mounting Holes
10-32 UNF-2B Thread
5/16
(9)
4
3-1/16
(77)
1-5/16
(34)
1/16
15/16
(24)
2-1/16
(52)
1-1/4
(32)
3/16
(5)
3/16
(5)
Diameter
3-1/4
(83)
13/16
(20)
2-15/16
(74)
1-11/16
(43)
1-3/4
(44)
Capillary or
Connector
as Specified
3-1/4
(83)
5/16
(8)
1
(25)
1-1/8
(29)
1-7/8
(48)
5/16
(8)
3/8
X
3/16
(5)
Diameter
Mounting Hole
7/8
(22)
Conduit Hole
Mounting Hole
3/16
(5)
Diameter
(1/2 in. 3/4 in. Trade Size)
or
1-1/8
(28)
or
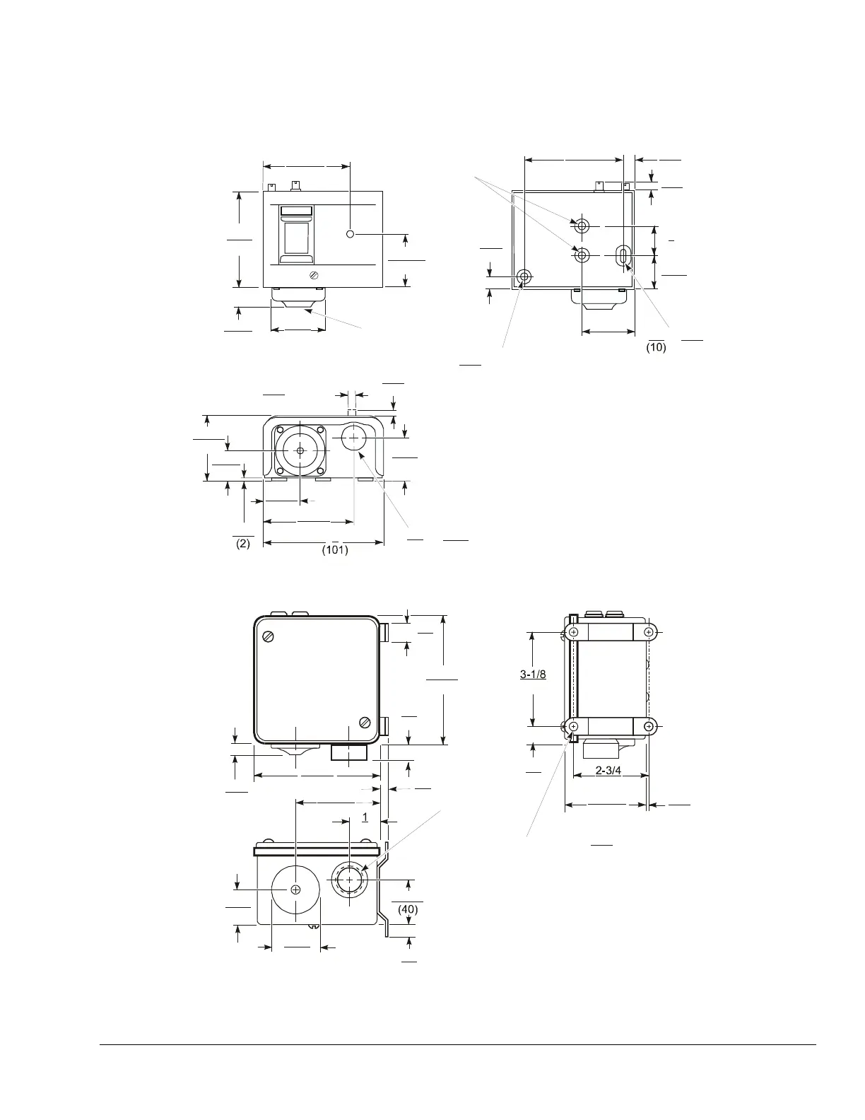
Figure 2: Dimensions for Low Pressure Controls with NEMA 1 Enclosure, in. (mm)
4-1/16
(103)
4-1/16
(103)
5/8
(16)
5/8
(16)
(79)
2-15/16
(74)
(70)
3/16
(5)
1/2
(13)
(25)
2-11/16
(68)
3/8
(10)
1-1/4
(32)
1-3/4
(44)
7/16
(11)
1-9/16
1/2
(13)
3/4-NPSM
Threaded
Rigid Conduit
Connector
Four Mounting Holes
5/16
(8)
Diameter
Figure 3: Dimensions for Low Pressure Controls with NEMA 3R Enclosure, in. (mm)
Note: These dimensions are nominal and are subject to accepted manufacturing tolerances and application variables.

Related product manuals