EasyManua.ls Logo

JVC TH-P3A - Page 40

JVC TH-P3A
74 pages
Print Icon
To Next Page IconTo Next Page
To Next Page IconTo Next Page
To Previous Page IconTo Previous Page
To Previous Page IconTo Previous Page
Loading...
2-3
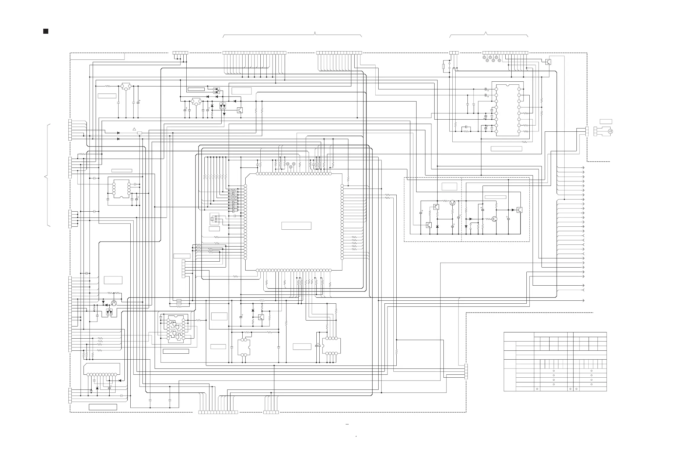
Micon section (1/2)
ALL INDUCTANCE VALUES ARE IN H.
ALL RESISTANCE VALUES ARE IN OHMS.
ALL CAPACITANCE VALUES ARE IN F.
-+
DVD_CK
DVD_CK
TU_DTO
DI_CK
Y1
DVD_U2SDT
DVD_U2SDT
DVD_UCS
SAFETY1
LO_CLOSE
F+
LO_SWOP
LO_SWCL
DVD_SCS
RDS_CK
F-
DVD_UCS
F+
F-
DVD_RST
DVD_SCS
KEY1
DVD_PWR
CB-B
REMOCON
KEY2
Y2-G
DVD_RST
TU_CK
TU_CE
DI_DT
TU_DTI
-VDISP
LO_OPEN
DI_CS
DI_CK
C
CR-R-C
DI_DT
REMOCON
DI_CS
DVD_S2UDT
AOUT2
AOUT1
AOUT0
C
Y1
Y2-G
CB-B
CR-R-C
BLANK
V_MUTE1
V_MUTE2
V_YCMIX
V_RGB
V_LPF
VS3
VS1
DACCK+
RDS_DT
LO_CLOSE
LO_OPEN
LO_SWOP
LO_SWCL
V_YCMIX
V_RGB
V_LPF
V_MUTE1
V_MUTE2
VS1
VS3
BLANK
A_SW1
A_SW2
A_LEVEL
PWM_RST
VALID2
VALID1
PWM_MUTE
DACCK+
DACCK-
LRCK
AOUT2
AOUT1
AOUT0
BCK
PWM_DT
PWM_CK
PWM_RST
SP_MEAS
PWM_BEERR
VALID1
VALID2
SD
OTW
HP_DET
SAFETY5
KEY1
KEY2
DVD_S2UDT
SYS_P.ON
HP_MUTE
SYS_P.ON
FAN_ON
-VDISP
STANDBY
SAFETY5SAFETY5
HP_MUTE
SAFETY3
OTW
SD
PWM_MUTE
DVD_PWR
RDS_ON
A_SW1
A_SW2
A_LEVEL
TU_CE
TU_DTI
TU_CK
TU_DTO
RDS_CK
RDS_DT
RDS_ON
TU_P.ON
TU_P.ON
BCK
LRCK
STANDBY
+33V
PWM_BEERR
DACCK-
FAN_STOP
HP_DET
SAFETY5
SAFETY5
SP_MEAS
D3.3V
A+12V
EP101
PGND
SAFETY1
PWM_DTPWM_DT
PWM_CKPWM_CK
B5V
BGND
SAFETY3
2.2k
R4760
X4701
QAX0246-001Z
321
330R4872
0.1/16C4791
R4773
0.01/50C4705
330
R4873
22k
R4705
R4763
220
R4791
NI
R4704
CN405
QGF1036C2-05
5
4
3
2
1
R4751
10k
R4761
IC471
MN101C49GPT
12345678910111213141516171819202122232425
26
27
28
29
30
31
32
33
34
35
36
37
38
39
40
41
42
43
44
45
46
47
48
49
50
51 52 53 54 55 56 57 58 59 60 61 62 63 64 65 66 67 68 69 70 71 72 73 74 75
76
77
78
79
80
81
82
83
84
85
86
87
88
89
90
91
92
93
94
95
96
97
98
99
100
R4774
D4966
UDZW4.7B-X
R4842
10k
R4778
100
NI
R4703
C4014
0.001
D4835
UDZW6.8B-X
10kR4755
C4772
0.1/16
D4838
1SS355W-X
2.7KR4866
2.2KR4861
R4709
100
1/16
C4002
100/16C4901
C4015
0.001
SHORT
CP471
!
4.7K
R4883
4.7KR4881
5.6K
R4886
R4775
330
CN415
NI
1
2
3
4
5
6
C4795
0.1/16
4.7K
R4835
100/16C4903
D4832
1SS355W-X
R4713
330
C4016
0.001/50
R4776
330
100/16
C4707
CN421
QGF1205C2-13
1
2
3
4
5
6
7
8
9
10
11
12
13
R4779
330
10K
R4707
0.01/50
C4708
47K
R4834
0.01/50C4902
0.01
C4709
330R4864
C4017
150p/50
R4710
100k
10kR4754
R4777
100
CN411
QGF1036C2-25
1
2
3
4
5
6
7
8
9
10
11
12
13
14
15
16
17
18
19
20
21
22
23
24
25
0
R4701
10KR4772
R4875
470
10kR4753
NI
Q4701
D4962
1N4003S-T5
CN406
QGF1205C2-05
1
2
3
4
5
R4877
470
R4764 10k
10k
R4762
R4765 10k
2.2KR4863
C4710
0.01/50
IC472
S-80840CNNB-G-W
12
34
C4793
0.1/16
C4711
10/50
R4711
330
CN412
QGF1036C2-15
15
14
13
12
11
10
9
8
7
6
5
4
3
2
1
IC493 LB1641
12345678910
R4712
330
R4876
330
CN422
QGD2501C1-05Z
1
2
3
4
5
0.01/50
C4706
100/16
C4924
1K
R4702
0.01/50
C4904
NI
D4703
0.1/16
C4771
5.6K
R4833
IC473
SN74AHCT08NS-X
141312111098
7654321
R4780 330
330R4871
R4752
K4702
QQR0621-001Z
R4894
330
100/16
C4794
1/16
C4003
IC491
KIA7805API
1
2
3
R4771
Q4831
KRC102S-X
IC477
BR24L08F-W-X
8765
4321
NIR4999
C4091 22/50
IC461
AK5358ET-X
161514131211109
87654321
C4610
10/50
C4609
10/50
C4601
22/50
C4604
22/50
C4602
0.1/16
C4605
0.1/16
C4603
0.47/16
CN414
QGA1002C1-03X
1
2
3
R4601
1
R4603
100K
C4606
0.1/16
C4607
470p/50
C4608
470p/50
Q4601
KRC110S-X
R4716
2.2k
R4602
100
R4843
10k
R4844
10k
CN413
QGF1036C2-05
1
2
3
4
5
D4845
1SS355W-X
CN404
QGD2501C1-06Z
1
2
3
4
5
6
IC492
MM1593DF-X
8765
4321
C4923
1/10
C4922
470p/50
C4921
1/16
R4204
220
Q4202
KRA102S-X
C4203
47/25
C4204
100/16
D4202
1SS355W-X
R4207
22K
R4203
820
1/4W
D4201
UDZW11B-X
D4204
1SS355W-X
D4203
RB521S-30-X
R4205
10k
R4201
10k
UNF
R4202
10
1/4W
R4208
100
Q4201
KRC103S-X
Q4204
KTC3875/YG/-X
C4205
220/16
R4209
47k
Q4205
KRC104S-X
C4202
100/16
Q4203
KTC3203/OY/-T
C4201
100/16
15kR4756
15kR4757
R4706
220
R4708
220
R4604
100
C4773
0.1/16
C4774
0.1/16
R4845
10k
R4846
10k
D4846
ER204-F33
R4781
330
CN408
QGF1036C2-21
1
2
3
4
5
6
7
8
9
10
11
12
13
14
15
16
17
18
19
20
21
CN407
QGF1036C2-15
1
2
3
4
5
6
7
8
9
10
11
12
13
14
15
IC494 KIA78S09P-T
3
2
1
C4093
0.01/50
C4092 0.01/50
P1 P3
P2
UNF
R4206
22
1/4W
R4091
10
1/4W
D4841
1SS355W-X
Q4832
KTC3875/YG/-X
R4902
8.2k
R4903
10k
R4901
2.2
D4843
ER204-F33
R4717 4.7k
R4718 4.7k
R4605
100
R4606
100
K4701
R4782 0
CN401
QGD2501C1-07Z
1
2
3
4
5
6
7
CN403
QGD2501C1-07Z
1
2
3
4
5
6
7
D4840
1SS355W-X
D4848
1SS355W-X
R4847
10k
CN417
QGA2501C1-03
3
2
1
R4848
10k
B4001
B4002
K4703
QQR0621-001Z
D4836
MA152WA-X
1
2
3
D4831
MA152WA-X
1
2
3
D4842
MA152WA-X
1
2
3
10K
R4888
C4925
0.1/50
R4887
10k
0.01/50
C4776
R4607
5.6K
R4608
10K
0.01/50
C4775
R4904
100
2W
1
2
3
QAR0312-001
OR OSCILLOSCOPE WITHOUT INPUT SIGNAL.
2.UNLESS OTHERWISE SPECIFIED.
NOTES:
P IS pF.
1.VOLTAGES ARE DC-MEASURED WITH A DIGITAL VOLT METER
CONDITION POWER-ON.
0V
VDD
(1/2)
/RX
U2SDT
4.7V
0V
DGND
5.2V
SLCK
NTSEL
BGND
GND
3.3V
/FLASH-VDD
E
TRAY+(OPEN)
0V
10K
XO
OSC1
0V
VERSION1
0V
AD POWER
5.2V
A0
NC
0V
NC
UCS
BGND
0V
(PAL/RGB)
5.0V
10k
5.2V
S2UDT
0V
3.3V
0V
0V
8.7V
(8MHz)
0V
R4773
GND
S5V
0V
OUT1
D4V
5.2V
S2UDT
DGND
DGND
10k
OSC2
VCC2
0V
/RGBSEL
DVD_SCS
DI_CK
5.0V
/FLASH-VSS
SYSTEM MICOM
5.2V
MGND
MGND
5.0V
B5V
5.2V
VERSION1
VPP
0V
VDD
DVD_RST
CPURST
10k
0V
X
27k
X
TO CN501 FRONT/FL
U3(PAL) : UX
0V
4.9V
SCL
10k
*PARTS LIST
3.1V
XI
SAFETY4
10k
VCC1
5.2V
FOR FLASH
0V
2.5V
10k
10K
M5V
0V
(8MHz)
DA POWER
0V
0V
-21.0V
WRITING
R4751
NTSEL
0V
5.0V
DAC1CS
5.2V
DGND
DAC0CS
VERSION2
(RGBSEL)
U1(PAL) : A/US/UB/UF/UG/UN
P-UP
X
0V
DVDPWR
IN1
SAFETY2
R4763
10k
D2V
HP_CK
0V
FOR
0V
P3
RESET
0V
VERSION2
Y/G OUT
0.5V
5.2V
TX
4.7V
3.4V
P-UP
5.2V
8.7V
SCLK
5.2V
3.4V
TO POWER SUPPLY
5.0V
R4771
IN2
A/D GND
15k
DGND
0V
YOUT
U3
LOADER DRIVE
5.2V
U1
X
R4752
0.5V
WP
10k
DGND
0V
4.5V
0V
0V
TO CN511 KEY
5.1V
5.1V
0V
D2V
D/A GND
5.2V
0.5V
RST
5.2V
5.2V
RESET-IN/RST
5.0V
0V
CR/COUT
0V
TO AMP BLOCK
AC OFF
LVA10643-A1
0.5V
R4774
LEVEL SHIFT
P2
P1
3.3V
3.1V
0.5V
P-DOWN
0V
SCS
5.2V
DGND
AVCI
0V
0.9V
0V
0V
5.2V
(NTSC): UT/UP/UJ
B5V
B5V
5.2V
5.1V
0V
COUT
0.4V
MAIN PWB
0.5V
X
(FOR FLASH)
U2SDT
TRAY-(CLOSE)
5.2V
5.1V
3.3V
A5V REG
10k
E : B/E/EN/EV/EE
0V
P-DOWN
3.4V
0V
10k
3.4V
0V
BGND
P-DOWN
(MODEL)
MGND
0V
(NTSC/YC)
5.2V
5.2V
TO DVD
0V
-14.6V
10k
15KP-UP
M9V
CBOUT
5.2V
0V
RESET
GND
VCC
(VERSION)
0V
4.5V
DETECT
11.6V
4.3V
DGND
A1
-18.9V
9.4V
RX
4.9V
D5V
EEP ROM
(WITHOUT FLASH)
0.7V
2.4V
10K
0V
A2
SDA
3.4V
AVCO
5.2V
E
4.7V
0V
VDD2
INH
5.2V
4.3V
TO TRAY MOTOR
GND
/CLK
OUT2
OPENSW
TO DVD
VZ
0V
5.1V
DI_DT
LRMUTE
VCC
CLOSESW
X
DDATA
DCLK
ADIN
DETECT
TO VIDEO PWB
ADIN-L
AGND
ADIN-R
9V
+12V
VS3
VS1
A5V
VGND
C
VGND
Y1
VGND
Y2-G
VGND
CB-B
VGND
CR-R-C
VGND
BLANK
V_MUTE1
V_MUTE2
V_YCMIX
V_RGB
V_LPF
8.9V11.2V
NMOD
EEP_DT
EEP_WP
EEP_CK
AVC_OUT
AVC_IN
CB_TEST
HP_DT
HP_CS
/TX
AINR
AINL
CKS1
VCOM
AGND
VA
VD
DGND
CKS0
CKS2
DIF
PDN
SCLK
MCLK
LRCK
SDTO
SWMUTE
DAC2CS
DGND
A9V REG
4.3V
0V
5.2V
0V
0V
0V
0V
5.2V
5.2V
0V
5.2V
0V
0V
0V
0V
0V
0V
0V
0V
0V
5.2V
5.2V
0V
A/D CONVERTER
NC
8MHz
DGND
5.6V
5.6V
DGND
DGND
TO DVD
D5.6V
12V
DGND
DGND
AGND
MGND
M9V
THERMISTOR
+33V
+33V
+33V
PGND
PGND
PGND
D3.3V REG
0V
11.8V
11.8V
0V
11.8V 0V
0V
FAN MOTOR STOP DETECTOR
0V
B5.6V
DRIVE
FAN
NC
NC
NC
NC
NC
NC
NC
NC
FAN SEL
NC
NC
NC
ADC_PDN
SAFETY2
DETECT
D5V
NC
NI
PROTECT
NI
NI
NI
NI
SAFETY4
:
NO USE
U2(PAL) : UY
(NTSC): UW
8.2k
10k
10k
X
X
U2
P5
10k
X
E
X
10k
X
8.2k
27k
U2
10k
15k
U3U1
10k10k
10k
X
10k
10k 10k
X10k
10k X
X
XXX
XX
P7
FAN
CN417
R4848
R4887
R4888
X
X
X
X
X
XX
XX
XX
XX
X
B,E,EV,EN,EE
FAN DRIVE
FAN
*
*
*
*
*
NI
NI
NI
NI
NI
NI
NI
NI
NI
NO INSERT
(EXCEPT B4001)
*
*
*
*
*
*
DEVICE KEY
-14.6V
-18.9V
-21.0V
6.0V
0V
0V
6.0V
9.4V
11.7V
0V
0V
5.2V
1.6V
33.0V
33.0V
33.0V
0V
0V
0V
0V
1.5V
1.4V
0V
0V
5.2V
0V
0V
0V
0.5V
0.5V
0V
0V
0V
4.9V
3.3V
0V
0V
3.3V
0V
0V
1.6V
1.6V
1.7V
0V
5.2V
2.2V
2.3V
5.2V
CONT
NC
NC
VIN
CN
GND
NC
VOUT
1.9V
0V
3.3V
5.2V
5.1V
0V
0V
0V
0V
0V
6.0V
6.0V
5.2V
5.2V
0V
5.2V
5.2V
5.2V
0V
0V
0V
0.3V
0V
0.1V
0V
0.4V
0V
0.9V
0V
4.9V
0V
0V
11.6V
0V
0V
2.5V
2.5V
0V
0V
5.2V
0V
0V
0V
0V
8.9V
0V
0V
0V
0V
1.6V
1.6V
0V
3.1V
1.7V
0V
0V
0V
0V
0V
1.6V
0V
0V
3.1V
11.6V
0V
0V
0V
4.7V
0V
0V
0V
5.2V
5.2V
0V
2.1V
5.2V
5.2V
1.5V
1.6V
5.2V
5.2V
2.6V
2.6V
0V
0V
0V
4.9V
5.1V
5.1V
5.1V
5.1V
5.0V
5.0V
0V
0V
SAFETY1
0V
NC
SOUCE:DVD STOP.

Related product manuals