EasyManua.ls Logo

KBL 7900 - External Music Signal Without Channel Selection; External Music Signal (100 V) Without Channel Selection

KBL 7900
58 pages
Print Icon
To Next Page IconTo Next Page
To Next Page IconTo Next Page
To Previous Page IconTo Previous Page
To Previous Page IconTo Previous Page
Loading...
Music amplifi er
3220 2885 00
E8: 6 5 ... 2 1
I
2
C Audio-
switch
3220 3230 20
MP3
megaVoice
3220 3222 95
Masse
ext. music
signal
shielded cable
Music amplifi er
3220 2885 00
E8: 6 5 ... 2 1
I
2
C Audio-
switch
3220 3230 20
MP3
megaVoice
3220 3222 95
Music signal
Transformer
35
Operating Instructions KBL 7900/KBL 7000/KBL Convertible
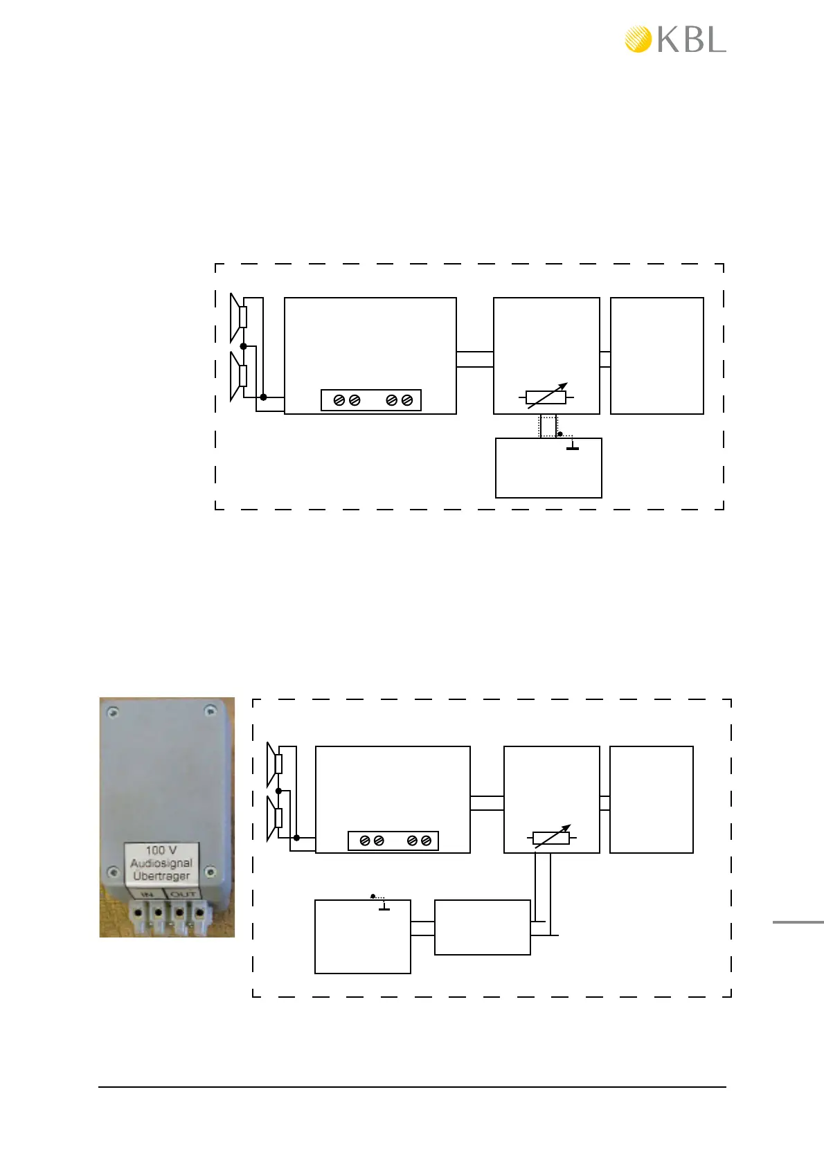
7.5 External music signal without channel selection
To connect the music signal use a 2-pole shielded cable, the
shield has to be earthed at the signal source. The cable is
connected to the marked clamps of the Audio switch. The
potentiometer is used to set the signal. The loudspeakers are
connected in parallel, equal-phased.
7.6 External music signal (100V) without channel selection
100V-Music signal
Transformer
9100 0170 00
For this application you will need a transmitter, type
9100017000, and the music signal is connected to the clamps
“IN”.

Related product manuals