EasyManua.ls Logo

KeepRite G96VTN0801716A - Page 41

Default Icon
72 pages
Print Icon
To Next Page IconTo Next Page
To Next Page IconTo Next Page
To Previous Page IconTo Previous Page
To Previous Page IconTo Previous Page
Loading...
F96VTN and G96VTN: Installation, Start-up, Operating and Service and Maintenance Instructions
Manufacturer reserves the right to change, at any time, specifications and designs without notice and without obligations.
41
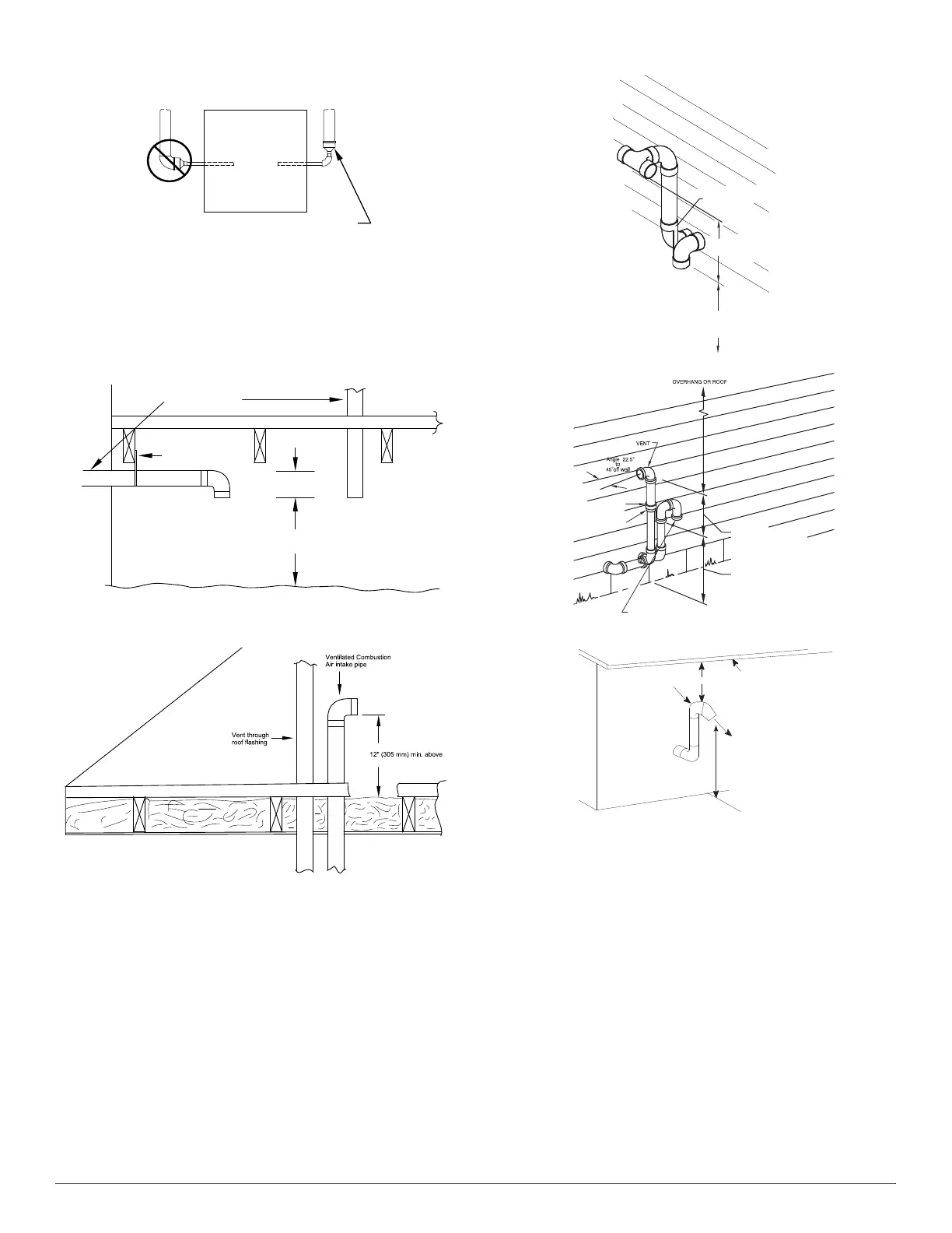
diameter change should be made outside furnace casing in vertical pipe.
Any change in diameter to the pipe must be made as close to the furnace
as reasonably possible. See Fig. 48.
A93034
Fig. 48 – Combustion Air and Vent Pipe Diameter Transition
Location and Elbow Configuration
The Maximum Vent Length for the vent and combustion air pipe (when
used) is determined from the Maximum Equivalent Vent Length in
Table 14 minus the number of fittings multiplied by the deduction for
each type of fitting used from Table 15.
A10497
Fig. 49 – Vent Terminations for Ventilated Combustion Air
A13078
Fig. 50 – Alberta and Saskatchewan Vent Termination
NOTE: Maximum Equivalent Vent Length (MEVL) includes standard
and concentric vent termination and does NOT include elbows. Use
Table 15 - Deductions from Maximum Equivalent Vent Length to
determine allowable vent length for each application.
FURNACE
PIPE DIAMETER
TRANSITION IN
VERTICAL SECTION
NOT IN
HORIZONTAL
SECTION
3” (76 mm)
12” (305 mm)
Pipe hangar
Ventilated Combustion Air
intake termination in crawl
space
Ventilated Combustion
Air intake pipe
CRAWL SPACE
ATTIC
highest level of insulation
OPTIONAL TERMINATION
BRACKET FOR 2-PIPE
TERMINATIONS
12-IN. (305 MM)
ABOVE ANTICIPATED
SNOW LEVEL
12 IN. (305 MM) MIN.
SEPARATION BETWEEN
BOTTOM OF COMBUSTION
AIR AND BOTTOM OF VENT.
12 IN. (305 MM) MIN. SEPARATION
BETWEEN BOTTOM OF
COMBUSTION AIR AND
BOTTOM OF VENT.
MAINTAIN 12 IN. (305 MM)
CLEARANCE ABOVE
HIGHEST ANTICIPATED
SNOW LEVEL OR GRADE,
WHICHEVER IS GREATER.
COMBUSTION-AIR
(ELBOW PARALLEL TO WALL)
OPTIONAL
BRACKET
COUPLING
OVERHANG
12 IN.
(305 MM) MIN. GROUND
LEVEL OR ANTICIPATED SNOW LEVEL
EXHAUST
CLEARANCE TO OVERHANG PER CODE

Related product manuals