EasyManua.ls Logo

KeepRite KLP Series - Page 20

KeepRite KLP Series
36 pages
Print Icon
To Next Page IconTo Next Page
To Next Page IconTo Next Page
To Previous Page IconTo Previous Page
To Previous Page IconTo Previous Page
Loading...
K30-KLPD-PDI-4
14/10/20
- 20 -
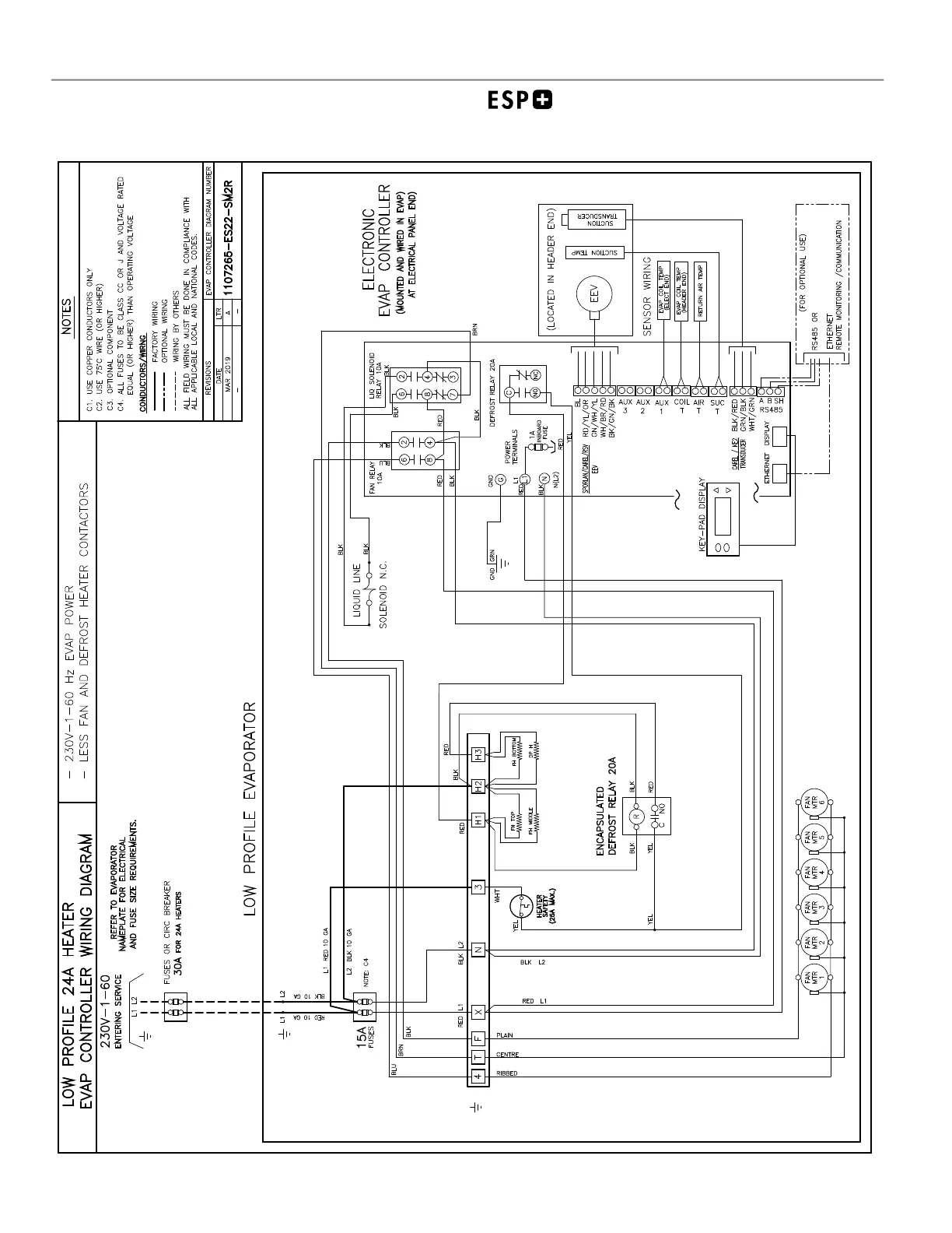
208-230/1/60: 6 Fan Electric Defrost Models with 24A
WIRING DIAGRAMS
KLP - LOW PROFILE EVAPORATORS

Related product manuals