EasyManua.ls Logo

Kenwood TK-3170 E3 - BLOCK DIAGRAM; Overall Block Diagram Components

Kenwood TK-3170 E3
40 pages
Print Icon
To Next Page IconTo Next Page
To Next Page IconTo Next Page
To Previous Page IconTo Previous Page
To Previous Page IconTo Previous Page
Loading...
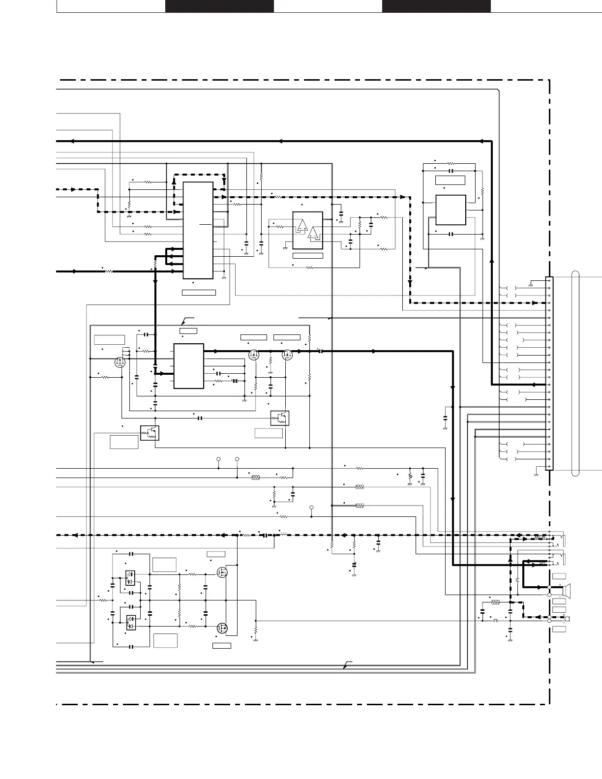
SCHEMATIC DIAGRAM TK-3170
31
X57-701 (B/4) 6/6
ADACABAAZ
TX-RX UNIT (X57-7012-72) (B/4)
Q27
DTC144EE
R195
1k
C145
470p
APCSW
1
VIN1
2
VoUT1
3
VoUT2
4
VIN2
5
VDD
6
LD
7
CLK
8
DI
9
VIN3
10
VoUT3
11
VoUT4
12
VIN4
13
14
15
16
17
18
19
20
21
22
23
24
C142
1u
C161
100p
R175
10k
R207
150k
R259
10k
PCK
C169
0.039u
R198
0
R117
68k
R193
100k
R210
470
R230
12k
R213 100
C146
470p
C171
10u6.3
J1
E11-0457-05
DSW
R203
2.2k
R181
0
R116 39k
C168
0.039u
R174
12k
PC
R218
0
1
1
2
VCC
3
3
4
VIN
5
RIPPLE
6
7
8
9
10
R224
100k
R261
10k
C172
100u6.3
C147
470p
R220
1k
R206
0
C196
0.047u
L11
R214
1.8k
C174
470p
R232
82k
C162
10u6.3
C140
0.1u
R187
0
R202
1k
R191
0
C159
100p
RX
C158
0.1u
R211
470k
R192
100k
RSSI
R178
1k
R215
330k
PLE
1
2
3
4
VSS
5
6
7
8
VDD
2SJ347F
Q26
R177
0
C148 470p
C198
470p
D33
AVRM1608270MAB
C173
220p
R225
150k
C143
1u
R216
270k
C170
470p
C151
2.2u
C184
2200p
R229
47k
C201
0.22u
ASQL
NARROW
R200
47k
C178
1u
R196
150
R184
0
C181
4.7u
THP
UL
R180
10k
TX
R199
4.7k
Q23
DTC144EE
C175
0.01u
C149
220p
R212
100
L14
C182
680p
C166
470p
WIDE
C150
2.2u
1
GND
2
PC
3
DSW
4
APCSW
5
5T
6
5T
7
5C
8
5C
9
5R
10
NARROW
11
WIDE
12
DETAF
13
RSSI
14
ASQL
15
BPF
16
THM
17
PLE
18
PDATA
19
PCLK
20
UL
21
5MS
22
TCXO
23
MOD
24
TX
25
RX
26
GND
C154
470p
C155
470p
R204
100k
C177
0.1u
R194
1k
1
2
3
4
oUT
5
VDD
C157
0.22u
C197
470p
C153
1u
PLLDAT
L10
D30
MIC INPUT
LEVEL
DETECTOR
5MS
D31
5R
SP_M
RED
DACDAT
PTTO
RXD
AF AMP
DC SUPPLY
CONTROL SW
SB
OPTDET
MIC INPUT
LEVEL
DETECTOR
TXD
MIC ALC
5MS
DACCLK
PTT
E37-1141-X5
WHT
5T
BLU
DACLD
5C
AF MUTE
CONTROL SW
BLK
TXD
AF AMP
DC SUPPLY SW
IC16
M62364FP-F
D/A CONVERTER
VIN5
VoUT5
VoUT6
VIN6
D0
VDAREF
RESET
GND
VIN7
VoUT7
VoUT8
VIN8
IC17
TK62012F
TCXO BUFFER
IN+
VSS
IN-
IC19
TC75S51FE(F)
RX BPF TUNNE
VOLTAGE AMP
SSM6J08FU(F)
Q24
IC18
TA 7368F
AF AMP
NF
PHASE
PRE-GND
PW-GND
PoUT
SSM3K01T(F)
Q35
AF MUTE SW
SSM3K01T(F)
Q28
AF MUTE SW
PTTI
(RXD)
MIC ALC
2SK1830F
Q25
D31
RB706F-40
D30
RB706F-40
PTT/RXD
MIC
MICIN
OPTDET
5MS
AE
TXD
NC
SPO
SPI
CN18
E40-6420-05
T:0V
R:5V
7.5V
POWER ON:5V
OFF:0V
7.5V
5V

Related product manuals