EasyManua.ls Logo

Keston C36 Combi - Installation of the Boiler; Wall Mounting Bracket

Default Icon
54 pages
Print Icon
To Next Page IconTo Next Page
To Next Page IconTo Next Page
To Previous Page IconTo Previous Page
To Previous Page IconTo Previous Page
Loading...
4. INSTALLATION OF THE BOILER
Read Chapter 3 - Boiler Location and decide upon the position of the boiler.
Installation of the boiler is straightforward but consideration must be given to access to allow flue
and air pipes to be pushed through walls and ceilings. The order in which the components are
installed will depend upon particular site conditions, but in general it will be easiest and most
accurate to install the boiler and then build up the flue outlet and air inlet pipes to the terminal - this
is the sequence described.
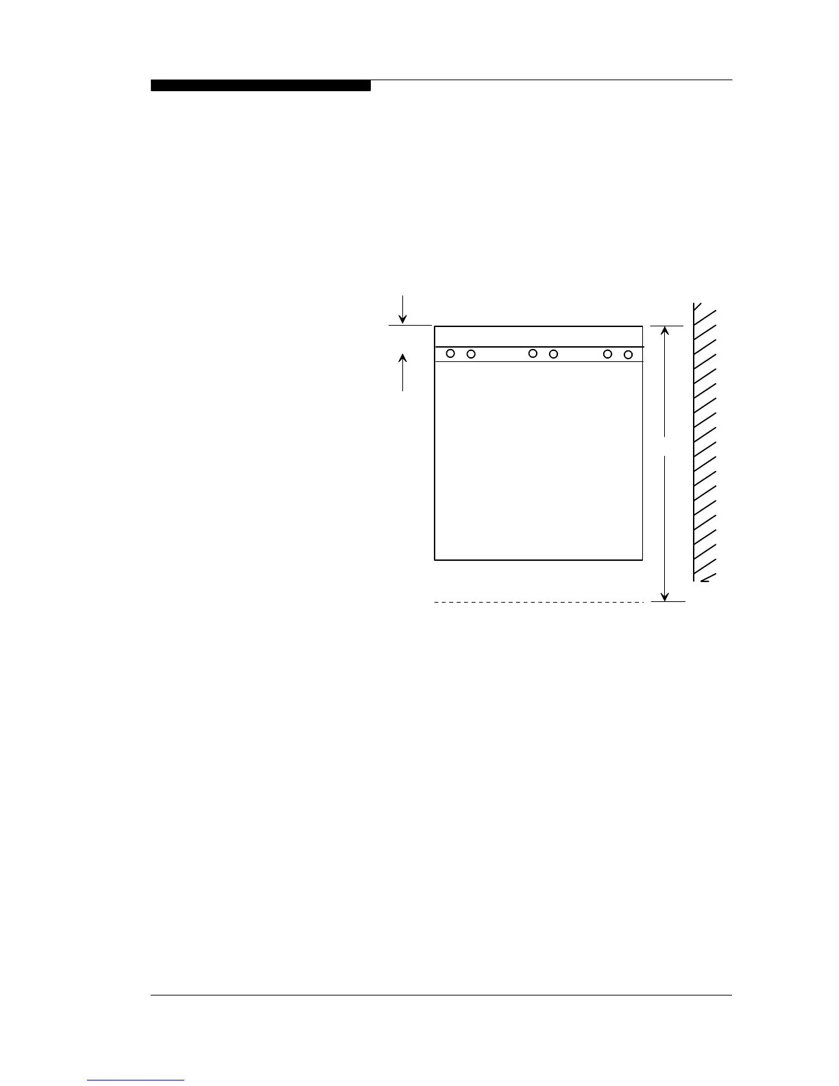
4.1 WALL MOUNTING BRACKET
a Place the bracket on the
wall horizontally with the
pre-drilled holes at the
bottom and position as
dictated by the template
supplied within the boiler
packaging.
b Drill through the centre hole
of the bracket, plug the
hole and fix in position.
c Using a spirit level make
sure the bracket is
completely level and mark
the position of the other
screw holes.
d Remove the bracket and
drill the holes in the
positions marked. Plug
these holes.
e Screw the bracket to the
wall using screws of an
appropriate size for the wall
type (No. 12 x 2 inch wood
screws normally suffice).
f Fix the cross spacer to the
wall bracket locating pegs and mark the resulting location for the pre-installation jig
dictated by the lower ends of the cross spacer.
g Drill and plug the holes for the pre-installation jig.
h Screw the pre-installation jig to the wall using screws of an appropriate size for the wall
type.
If you have purchase the optional pre-installation jig you are now able to connect system
pipework to the pre-installation jig, isolate using the valves supplied as part of the jig and
pressure test the system pipework prior to mounting of the boiler. System flushing and
cleaning should also be carried out at this stage prior to boiler mounting.
4.2 MOUNTING THE BOILER (after system cleaning and testing)
a Lift and locate the boiler onto the stud and the two locating pegs protruding from
the wall bracket. (lift the boiler via the back frame only)
b Lower the boiler for hanging on the two pegs.
c Fix the boiler on the bracket stud using the nut and the washers supplied.
d Make the gas, DHW, CWS, flow and return connections to the system or, if a
pre-installation jig is being used, the pre-installation jig valves using the swivel nut
connections supplied. Ensure the compound gasket inserts are in place inside the
swivel nut face before tightening. Check all joints for soundness.
WD388/0/2004 Chapter 4 : Installation The Keston C36 Combi & C36P Combi Boilers
Installation & Servicing Instructions Page : 18
All dimensions in mm.
Figure 4.1 Wall Mounting Fixing Locations
173
915
Fixing Jig

Related product manuals