EasyManua.ls Logo

KING 2016E - Locating The Room Heater; Floor Protector Clearances

KING 2016E
24 pages
Print Icon
To Next Page IconTo Next Page
To Next Page IconTo Next Page
To Previous Page IconTo Previous Page
To Previous Page IconTo Previous Page
Loading...
6
As A Location Is Selected, Keep The Following In Mind
Keep the chimney connection as short as possible.
The heater must have its own chimney ue. Do not
connect any other appliance to the same ue. If
there is no chimney where you wish to place the
heater, you can use a UL Listed Type 103 HT, Solid
Fuel, Factory Built Chimney.
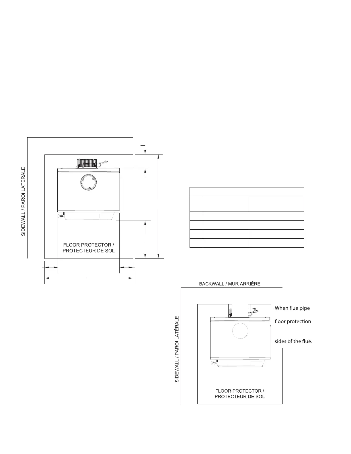
Place the heater on a manufactured oor protector
that conforms to UL 1618, that provides at minimum
type 1 ember protection. The oor protector should
be under the stove, 16” beyond the front and 8”
beyond each side of the fuel loading and ash
removal opening. Have the oor protector with the
specied dimensions.
Check Figures 2, 3, & 4. You should have at least
the clearances shown from the heater and the
connector pipe to combustible surfaces. If you have
a solid brick or stone wall behind your heater, you
can place the heater as close as you wish to the
wall. If the wall is only faced with brick or stone, treat
it as a combustible wall. You may consult your local
regulatory authority before reducing clearances
specied in these instructions.
The oor protector must extend under the product
and two (2) inches on either side of the chimney
connector.
Locating The Room Heater
L
K
J
H
I I
exits the back your
must extend 2”
(51mm) on both
L
K
J
H
I I
exits the back your
must extend 2”
(51mm) on both
Floor Protector Clearances
H Front
US 16" (406mm)/
CAN 18" (457mm)
I Side 8" (203mm)
J Rear CAN 8" (203mm)
K Overall width 38-5/8" (981mm)
L Overall Depth 45-5/16" (1.15m)

Related product manuals