EasyManua.ls Logo

Kity PV 6000 - Wartung und Reparatur

Kity PV 6000
68 pages
Print Icon
To Next Page IconTo Next Page
To Next Page IconTo Next Page
To Previous Page IconTo Previous Page
To Previous Page IconTo Previous Page
Loading...
22
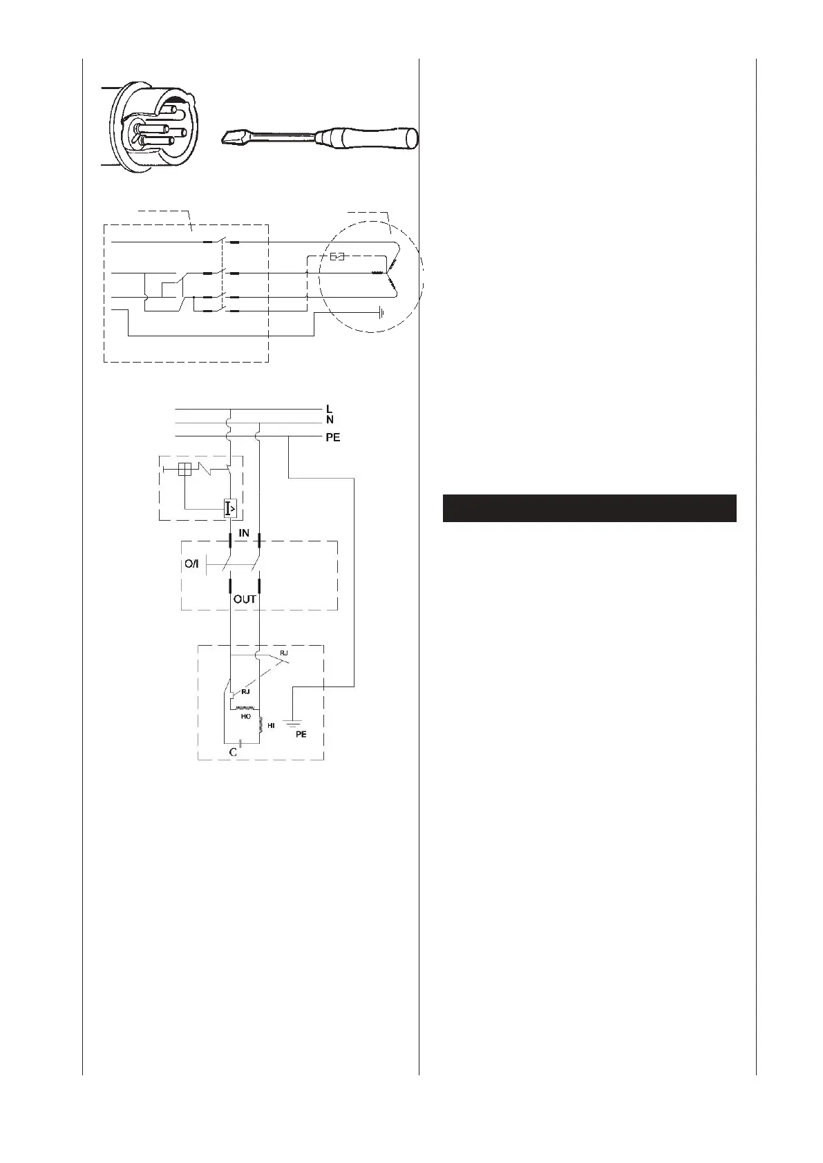
Drehstrommotor 400 V/ 50 Hz
Netzspannung 400 Volt / 50 Hz.
Netzanschluss und Verlängerungsleitung müssen 5-adrig
sein=3P+N+SL.-(3/N/PE).
Verlängerungsleitungen müssen einen Mindestquerschnitt
von 1,5 mm² aufweisen.
Der Netzanschluss wird mit maximal 16 A abgesichert
Bei Netzanschluss oder Standortwechsel muss die Dreh-
richtung überprüft werden. Gegebenfalls muss die Polari-
tät getauscht werden.
Polwende-Einrichtung im Gerätestecker drehen.
Wechselstrommotor 230 V/ 50 Hz
Netzspannung 230 Volt / 50 Hz.
Netzanschluss und Verlängerungsleitung müssen 3-adrig
sein=P+N+SL.-(1/N/PE).
Verlängerungsleitungen müssen einen Mindestquerschnitt
von 1,5 mm² aufweisen.
Der Netzanschluss wird mit maximal 16 A abgesichert.
Wartung und Reparatur
Umrüst-, Einstell- und Reinigungsarbeiten nur bei ausge-
schaltetem Motor durchführen.
Netzstecker ziehen.
Geübte Handwerker können kleine Reparaturen an der
Maschine selbst durchführen.
Reparatur- und Wartungsarbeiten an der elektrischen An-
lage nur von Elektro-Fachkräften aushren lassen.
Sämtliche Schutz- und Sicherheitseinrichtungen müssen
nach abgeschlossenen Reparatur- und Wartungsarbeiten
sofort wieder montiert werden.
Wir empfehlen Ihnen:
Reinigen Sie die Maschine nach jedem Arbeitseinsatz •
gründlich!
Spaltmesser •
Das Spaltmesser ist ein Verschleißteil, das bei Bedarf
nachgeschliffen oder durch ein Neues ersetzt werden
soll.
Zweihand-Schutzeinrichtung •
Die kombinierte Halte- und Steuereinrichtung muss
leichtgängig bleiben. Gelegentlich mit wenigen Tropfen
Öl schmieren.
Bewegliche Teile •
- Spaltmesserführungen sauber halten. (Schmutz,
Holzspäne, Rinden usw.)
- Gleitschienen mit Sprühöl oder Fett schmieren
Hydraulik Ölstand prüfen. •
Hydraulische Anschlüsse und Verschraubungen auf Dicht-
heit und Verschleiß prüfen. Evtl. die Schraubverbin-
dungen nachziehen.
Ölstand überprüfen
Die Hydraulikanlage ist ein geschlossenes System mit Öl-
RJ
MOTOR
(400V/50HZ)
SWITCH(KOA7)
BLUE
YELLOW-GREEN
BROWN
GRAY
BLACK
PE
L3
L2
L1
RJ
O/I
IN
OUT
400 V/ 50 Hz
230 V/ 50 Hz

Related product manuals