EasyManua.ls Logo

Kohler 40-150EOZDJ

Kohler 40-150EOZDJ
84 pages
To Next Page IconTo Next Page
To Next Page IconTo Next Page
To Previous Page IconTo Previous Page
To Previous Page IconTo Previous Page
Loading...
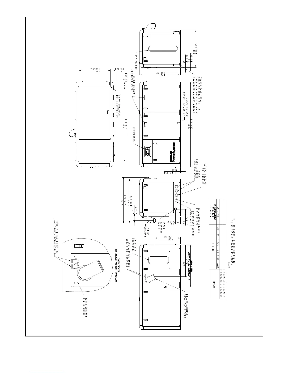
TP-6862 6/14 47Section 7 Installation Drawings
ADV-8509-
NOTE: Dimensions in [ ] are inch equivalents.
Figure 7-13 Dimension Drawing, 125/150EOZD(C)J & 100/125EFOZD(C)J (with Sound Shield)

Table of Contents

Related product manuals