EasyManua.ls Logo

Kohler 40-150EOZDJ

Kohler 40-150EOZDJ
84 pages
To Next Page IconTo Next Page
To Next Page IconTo Next Page
To Previous Page IconTo Previous Page
To Previous Page IconTo Previous Page
Loading...
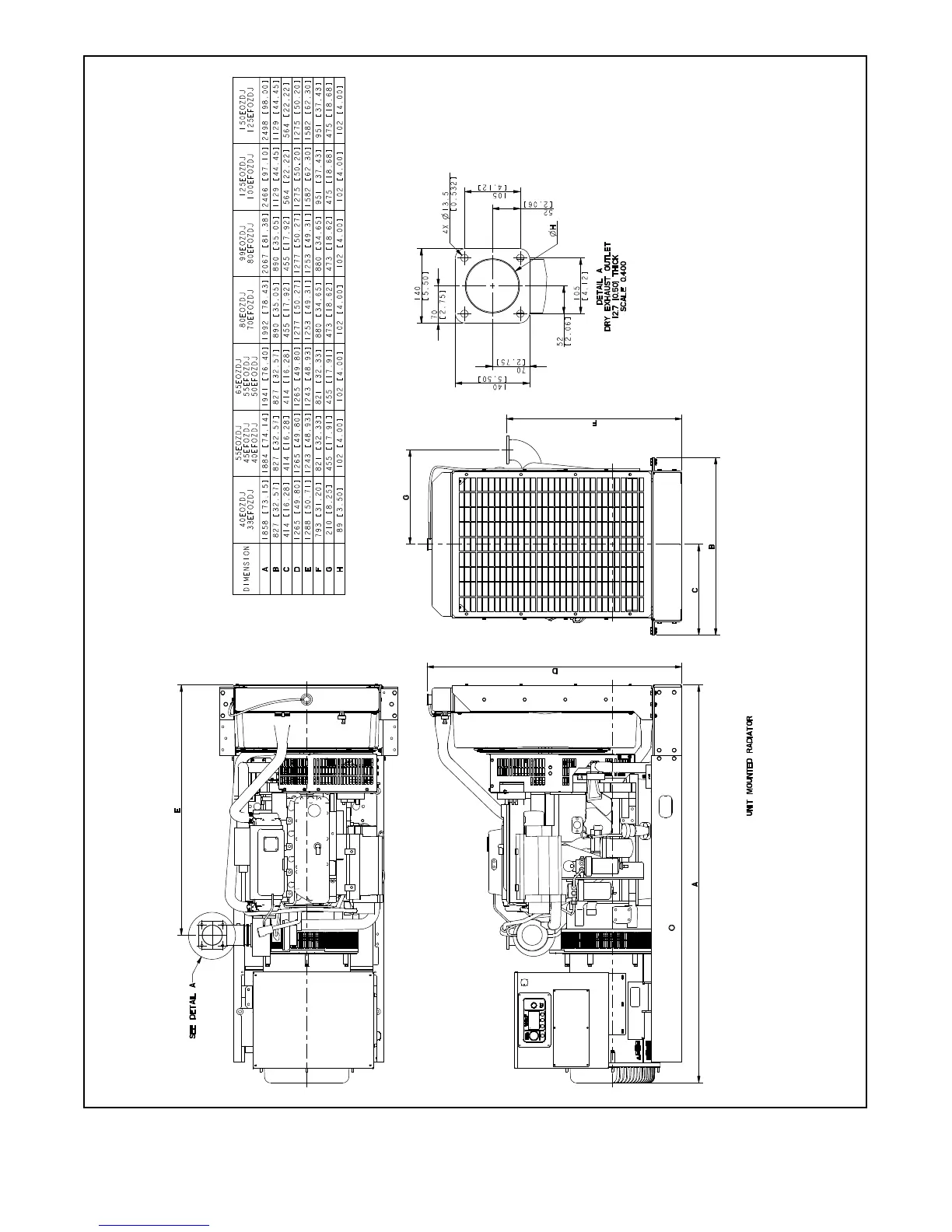
TP-6862 6/1448 Section 7 Installation Drawings
ADV-8505A-A
NOTE: Dimensions in [ ] are inch equivalents.
Figure 7-14 Dimension Drawing, 40--150EOZD(C)J & 33--125EFOZD(C)J (with Unit-Mounted Radiator)

Table of Contents

Related product manuals