EasyManua.ls Logo

Kohler 8.5RMY

Kohler 8.5RMY
52 pages
To Next Page IconTo Next Page
To Next Page IconTo Next Page
To Previous Page IconTo Previous Page
To Previous Page IconTo Previous Page
Loading...
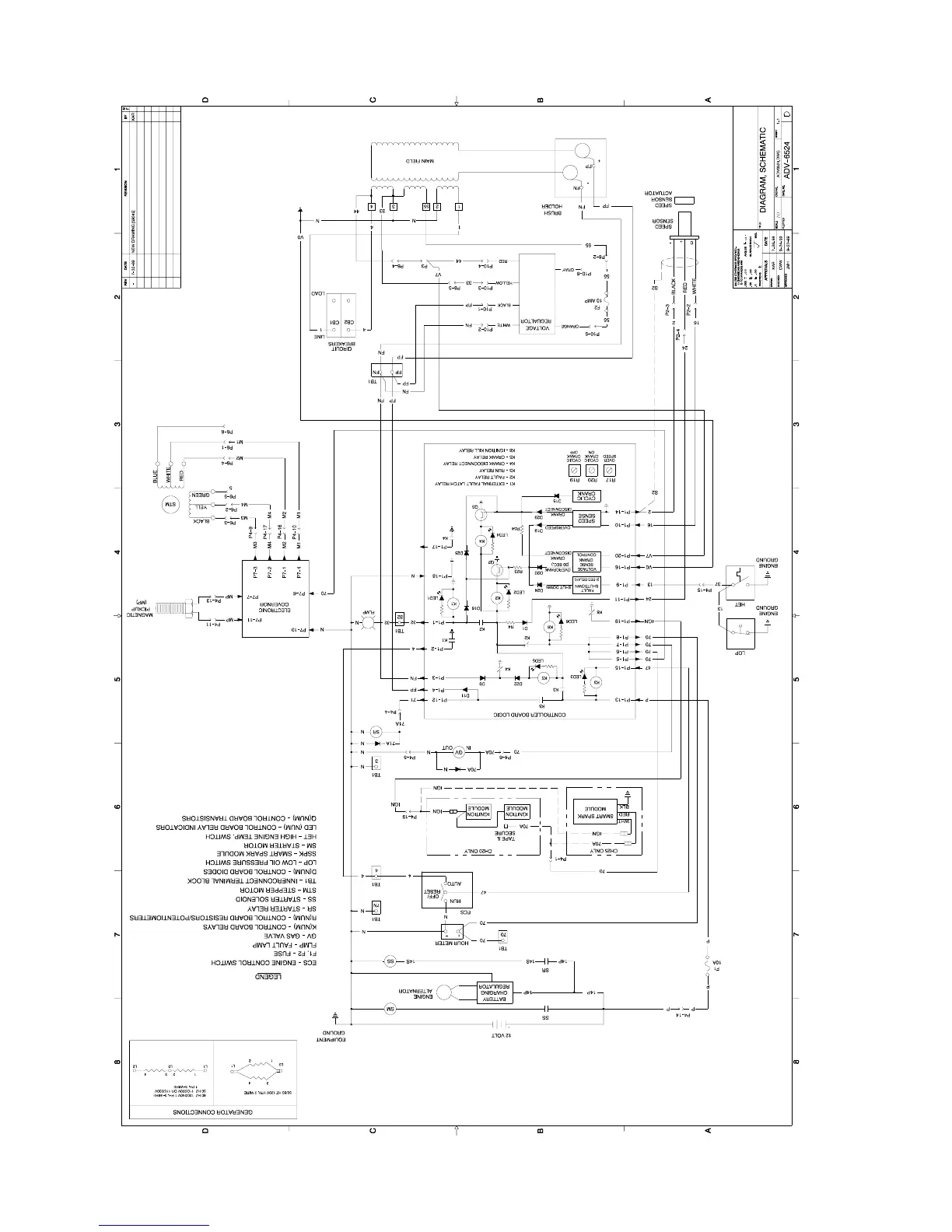
TP-6049 9/02 25Section 5 Diagrams and Drawings
Relay Controller, Schematic Diagram, ADV-6524-

Table of Contents

Other manuals for Kohler 8.5RMY

Related product manuals