EasyManua.ls Logo

Kohler APM402 - Low Fuel (Level;Pressure) Switch

Kohler APM402
172 pages
Print Icon
To Next Page IconTo Next Page
To Next Page IconTo Next Page
To Previous Page IconTo Previous Page
To Previous Page IconTo Previous Page
Loading...
140 TP-6694 9/20
6.1.8 Low Fuel (Level/Pressure) Switch
Some gaseous-fueled models offer a low fuel pressure switch. The low fuel pressure switch connects to the same controller
terminal as the low fuel level switch on diesel-fueled models. See Figure 73, Figure 74, and Figure 75.
Note:
The main tank or the transfer/day tank includes the low fuel level switch. The fuel tank supplier typically provides the low fuel
level switch.
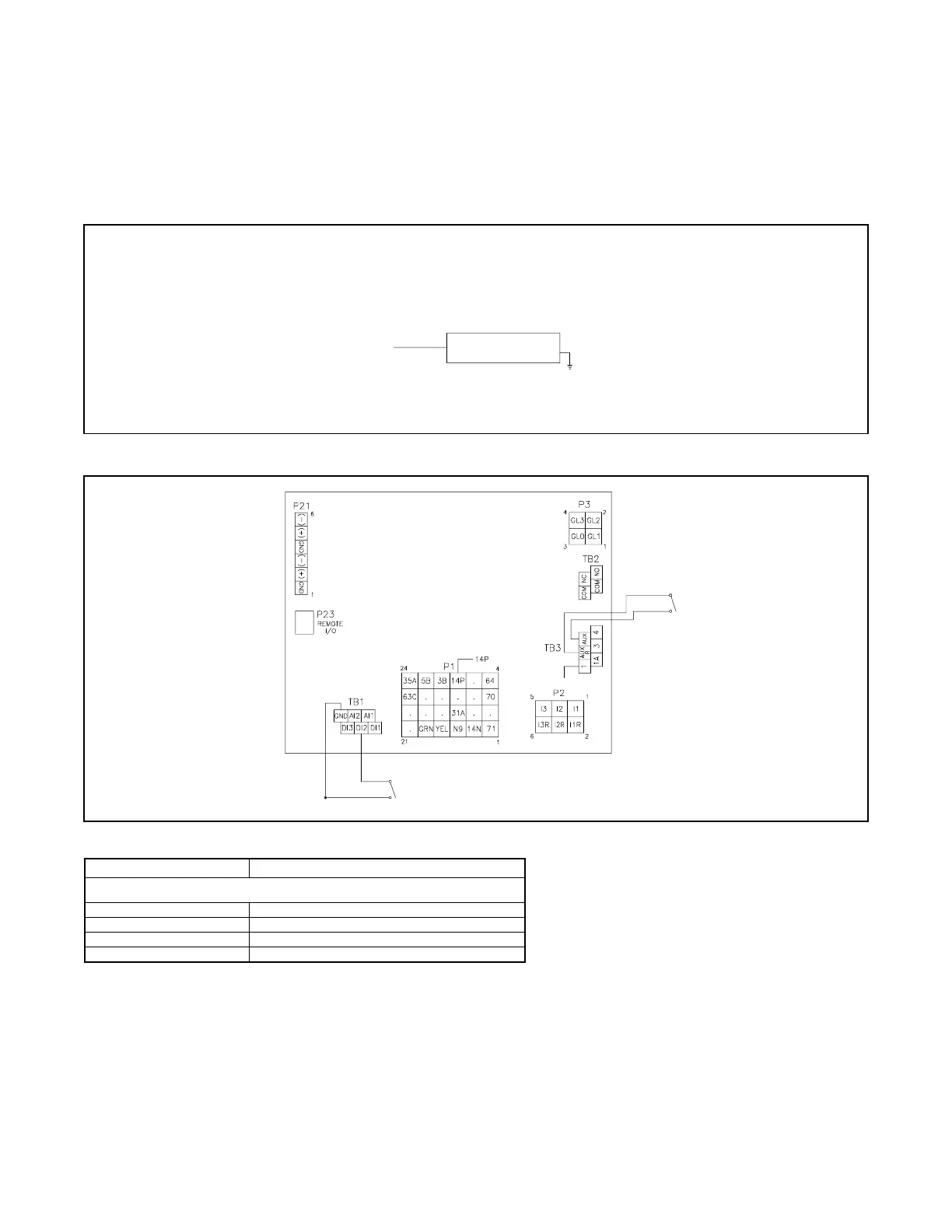
Figure 73 Low Fuel Switch (Level or Pressure)
Figure 74 Low Fuel Switch Connection to Controller Connection
Switch Rating
12 volts DC minimum, 0.5 amp minimum
Wiring Recommendation
Gauge
mm (ft.)
18-20
30.5 (100)
14
153 (500)
10
305 (1000)
Figure 75 Switch Rating & Wiring Recommendation
Battery Ground
Low Fuel Switch (Optional)
Located in Main Tank as
Provided by Fuel Tank Supplier
Connect to TB1 (for
warning) or TB3
(for shutdown)
APM402 / DEC 3000 Controller
Aux Shutdown Switch
(Customer Provided)
Aux Warning Switch
(Customer Provided)

Table of Contents

Related product manuals