EasyManua.ls Logo

Kohler Decision-Maker 340 - Fuel System Changeover Kits; Automatic Changeover Theory of Operation; Manual Changeover Theory of Operation

Kohler Decision-Maker 340
224 pages
Print Icon
To Next Page IconTo Next Page
To Next Page IconTo Next Page
To Previous Page IconTo Previous Page
To Previous Page IconTo Previous Page
Loading...
168 Section 9 Gas Fuel Systems TP-6356 4/12
9.4 Fuel System Changeover Kits
Some models offer fuel system changeover kits
providing dual fuel options.
9.4.1 Automatic Changeover Theory of
Operation
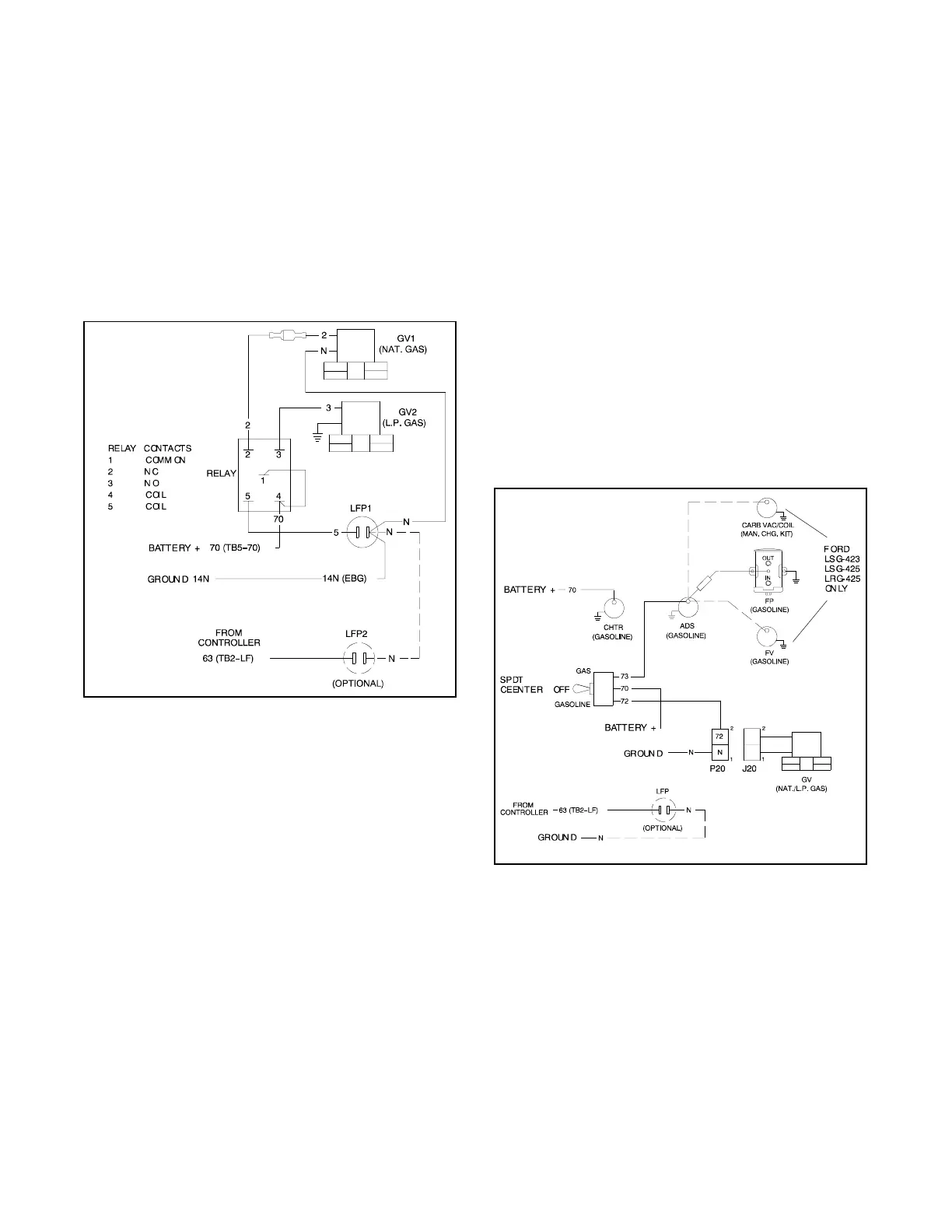
Automatic changeover fuel system kit provides
automatic changeover from natural gas to LP gas vapor
or from LP gas vapor to natural gas. The primary and
secondary fuels each have a secondary fuel regulator
and a fuel valve. See Figure 9-9.
347940D-K
EBG Engine Block Ground
GV Gas Valve
LFP Low Fuel Pr essure
Figure 9-9 Automatic Changeover Wiring Diagram,
Typical
Typically the primary fuel is natural gas; the backup fuel
is LP gas vapor. The primary valve opens during
generator set starting and running and the secondary
fuel valve remains closed. The primary fuel line has a
pressure switch in series with a control relay connected
to the start/run circuit (wire 70).
When the primary fuel pressure drops below 0.87--
1.0 kPa (0.13--0.14 psi), the control relay opens the
secondary fuel valve and the primary fuel valve closes.
When the primary fuel pressure rises above 0.87--
1.0 kPa (0.13--0.14 psi), the control relay opens the
primary fuel valve and closes the secondary fuel valve.
See Section 8.12, Low Fuel Pressure (Vacuum)
Switches, for testing the switch.
9.4.2 Manual Changeover Theory of
Operation
(20 kW, Ford LRG-425 Powered only)
Manual changeover fuel system provides manual
changeover from gasoline to natural gas or LP gas
vapor, or natural gas or LP gas vapor to gasoline.
Typically the combination system utilizes gas as the
primary, preferred fuel and gasoline in emergencies.
Should the gas fuel be unavailable (LP gas vapor tank
empty or a natural gas utility disruption), the gasoline
fuel becomes the primary fuel.
A toggle switch on the generator set controls the fuel
choice and energizes either a fuel solenoid and electric
fuel pump for gasoline or a fuel valve for the gas fuel.
Pull out the control cable for gasoline fuel and push in
the control cable for gas fuel.
347940D-K
ADS Anti-Dieseling Solenoid
CHTR Choke Heater
EBG Engine BLock Ground
FP Fuel Pump
GV Gas Valve
LFP Low Fuel Pressure
Figure 9-10 Manual Changeover Wiring Diagram,
Typical

Table of Contents

Related product manuals