EasyManua.ls Logo

KYMCO Mongoose 50-2T - Torque Values

KYMCO Mongoose 50-2T
258 pages
To Next Page IconTo Next Page
To Next Page IconTo Next Page
To Previous Page IconTo Previous Page
To Previous Page IconTo Previous Page
Loading...
1. GENERAL INFORMATION
1-14
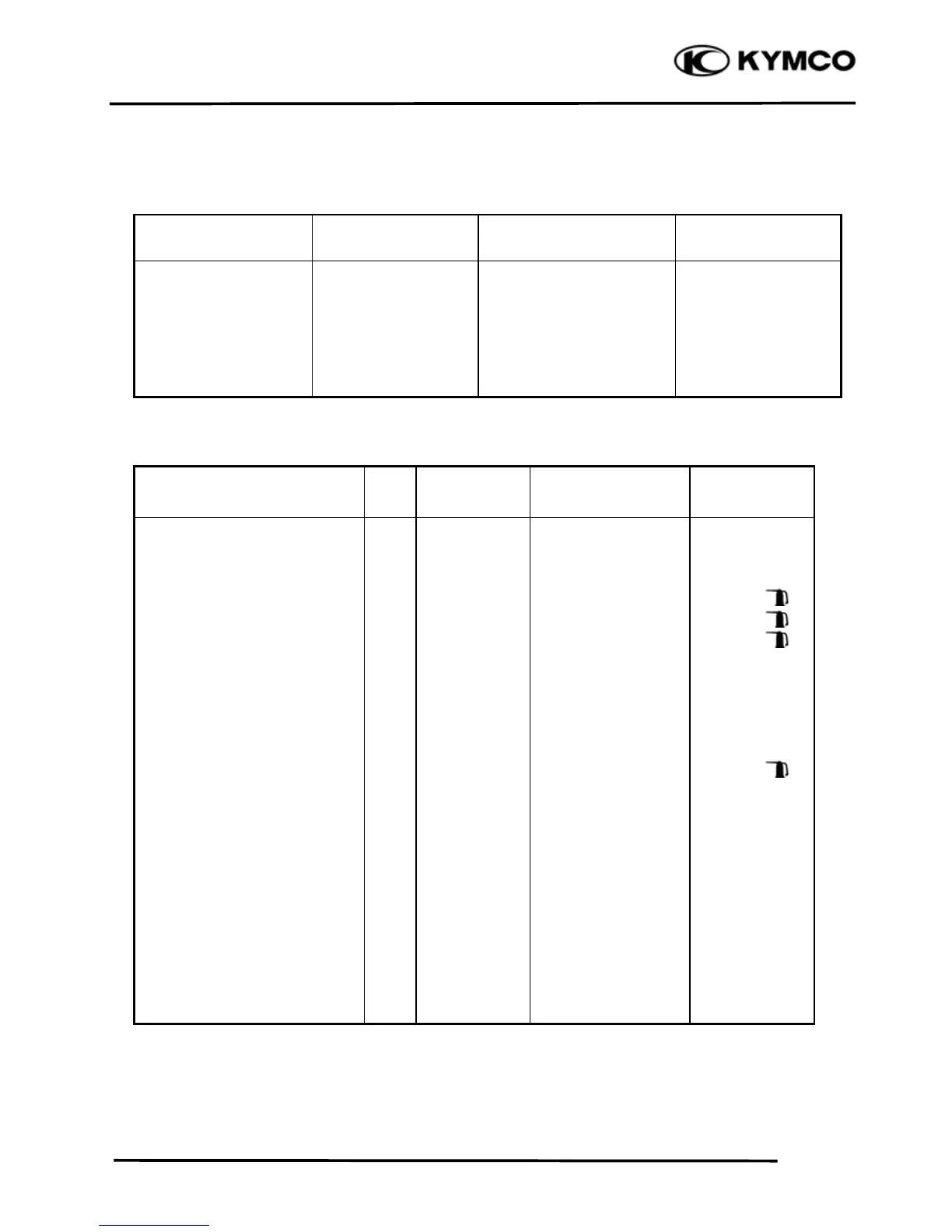
TORQUE VALUES
STANDARD TORQUE VALUES
Item
Torque
N•m (kgf•m, lbf•ft)
Item
Torque
N•m (kgf•m, lbf•ft)
5mm bolt and nut
6mm bolt and nut
8mm bolt and nut
10mm bolt and nut
12mm bolt and nut
14mm bolt and nut
5(0.5, 4)
10 (1, 7)
22 (2.2, 16)
35 (3.5, 25)
55 (5.5, 40)
70 (7, 50)
4mm screw
5mm screw
6mm screw, SH bolt
6mm flange bolt and nut
8mm flange bolt and nut
10mm flange bolt and nut
3 (0.3, 2)
4 (0.4, 3)
9 (0.9, 6.5)
12 (1.2, 9)
27 (2.7, 20)
40 (4, 29)
Torque specifications listed below are for important fasteners.
ENGINE (90cc/70cc/50cc-4T)
Item Q‘ty
Thread dia.
(mm)
Torque
N•m (kgf•m, lbf•ft)
Remarks
Stud bolt
Oil filter screen cap
L cover
Cam shaft holder nut (90cc)
Cam shaft holder nut
Tappet ADJ nut
Pivot tensioner bolt
Lifter tensioner bolt
Lifter tensioner cap
Mission case bolt
Mission fill bolt
Driver face nut
Clutch outer nut
Drive plate nut
Oneway clutch nut (90&70 cc)
ACG flywheel nut
Spark plug
Drain plug
Oil pump screw
Head CYL stud bolt (IN pipe)
Head CYL stud bolt (EX pipe)
A.C.G Startor
Fan
4
1
8
4
4
2
1
2
1
7
1
1
1
1
1
1
1
1
1
2
2
3
4
8
30
6
8
7
5
6
6
6
8
8
12
10
28
24
10
10
10
3
6
8
5
6
9 (0.9, 6.5)
15 (1.5, 11)
12 (1.2, 9)
20 (2, 14)
14 (1.4, 10)
9 (0.9, 6.5)
10 (1, 7)
12 (1.2, 9)
4.5 (0.45, 3)
27 (2.7, 19)
18 (1.8, 13)
60 (6, 43)
40 (4, 29)
55 (5.5, 40)
55 (5.5, 40)
40 (4, 29)
12 (1.2, 9)
25 (2.5, 18)
2 (0.2 1.4)
9 (0.9, 6.5)
9 (0.9, 6.5)
10 (1, 7)
8 (0.8, 5.8)
Apply oil
Apply oil
Apply oil
Apply oil

Table of Contents

Related product manuals