EasyManua.ls Logo

Labwit ZWYC-290A - 4 Technical Data; Dimensions

Labwit ZWYC-290A
53 pages
Print Icon
To Next Page IconTo Next Page
To Next Page IconTo Next Page
To Previous Page IconTo Previous Page
To Previous Page IconTo Previous Page
Loading...
Ultimate-cell Stackable Shaking Incubator V2017.2
7
4. TECHNICAL DATA
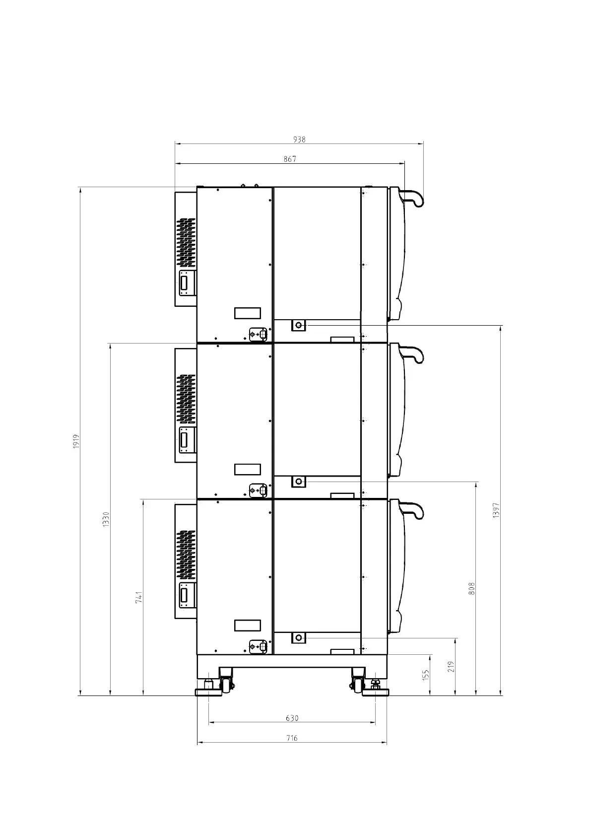
4.1 Dimensions:
Side view of 3 units stacked with low base with doors closed
Picture. 1 (in mm)

Table of Contents