EasyManua.ls Logo

Lang DO36 - Oven Parts List

Default Icon
24 pages
Print Icon
To Next Page IconTo Next Page
To Next Page IconTo Next Page
To Previous Page IconTo Previous Page
To Previous Page IconTo Previous Page
Loading...
TO FIT
1
2
3
4
5
6
7
5
5 5
55
2
1
4
1667
1667
1667
4
1
3
2
7
1
2
3
4
3
6
2 1 3 4 2 1 3 4
4
2
5
1
4
3
3
2
C
2
1 L1
L2
1
2
L1
C L2
5
1
4
2
1
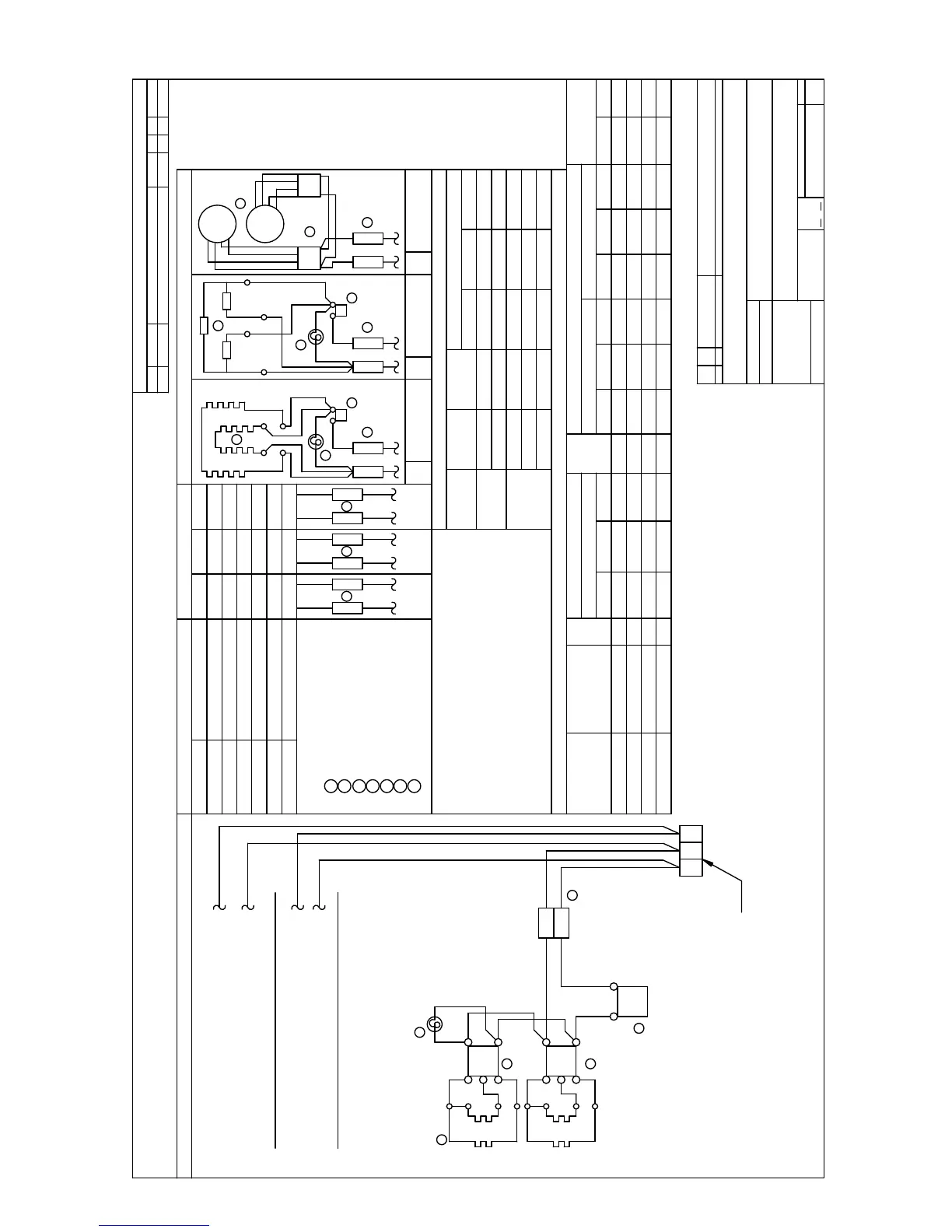
HEAT ELEMENT
THERMOSTAT
3 HEAT SWITCH
PILOT LAMP
CIRCUIT BREAKER
SPEED UNIT
6 HEAT SWITCH
TOP ARRANGEMENT
SEC-1
A
B
B
A
C
SEC-2
A
B
B
A
C
SEC-3
C
B
C
A
C
TOP SECTION WIRE DIAGRAMS
A B C
GRILL HOT TOP SPEED UNITS
POWER
SUPPLY
PHASE
SINGLE
PHASE
THREE
BLOCK
TERMINAL
TOP
RANGE
ELECTRICAL CONNECTIONS
1st DECK 2nd DECK 3rd DECK
OVEN
L1
L2
L1
L2
L3 2-4-6
1-5
3
2-4-6
1-3-5 1
2
1
2
- 2
-
1
2
1
2
1
-
2
1
CONNECT WIRES FROM RANGE
TOP OR ADDITIONAL DECKS TO
LOWER OVEN TERMINAL BLOCK
AS SHOWN AT RIGHT
ELECTRICAL DATA
NUMBER
MODEL
LOADING
KW PER PHASE
TOTAL
KW
36S RANGE
LA-236S "
LA-336S "
LA-136S OVEN
6.0
6.0
6.0
6.0
10.0
0.0
0.0
6.0
5.0
0.0
6.0
6.0
21.0
6.0
12.0
18.0
L1 L2 L2 L3 L3 L1
THREE PHASE AMPS
208 VOLT 240 VOLT
45.8
28.8
50.0
50.0
L1
50.0
28.8
28.8
66.7
L2
50.0
28.8
0.0
62.5
L3
43.3
43.3
25.0
39.7
L1
43.3
25.0
25.0
57.8
L2
43.3
25.0
0.0
54.2
L3
SINGLE
PHASE AMPS
208V
101.0
28.8
57.7
86.5
240V
87.5
25.0
50.0
75.0
L1 L2 L3
1
2
TERMINAL BLOCK
1ST DECK
OVEN WIRING
2ND DECK
3RD DECK
2ND AND 3RD DECK
WIRING IDENTICAL
TO 1ST DECK
USE ON ALL E SERIAL NUMBERS
2000
3000
B C C
MODEL DESIGNATION
36S-0
36S-2
36S-3A
36S-10
36S-20
RT36A
RT36B
RT36C
RT36D
RT36E
N/A
RT36F
STAR LANG (REF)
NUMBER
STAR MODEL
RT36 + DO36
DO36 OVEN
DO36 OVEN
DO36 OVEN
QTY
-
1
2
3
DRAWING NUMBER REV
OF
SHEET
± 1/64
ANGLES
± .5°
.X ± .05
.XX ± .03
TITLE:
CK:
TOLERANCES
SCALE:
DR:
FRACTIONS DECIMALS
UNLESS OTHERWISE SPECIFIED
DIMENSIONS ARE IN INCHES
.XXX ± .015
DATE:
DATE:
NEXT HIGHER ASSY.
CREATED BY STUART R. CARTIER
PART NUMBERQTY ITEM DESCRIPTION / MATERIAL
REVISION BLOCK
ECN NO.REV DESCRIPTION DR: DATEMFG ENG
LA36 OVEN / 36S RANGE
208 / 240VAC
2M-61106-01 E
1
2-1-94
1
LANG MANUFACTURING

Related product manuals