EasyManua.ls Logo

LEGRAND DMX3 Series - Page 26

LEGRAND DMX3 Series
140 pages
Go to English
Print Icon
To Next Page IconTo Next Page
To Next Page IconTo Next Page
To Previous Page IconTo Previous Page
To Previous Page IconTo Previous Page
Loading...
26
DMX
3
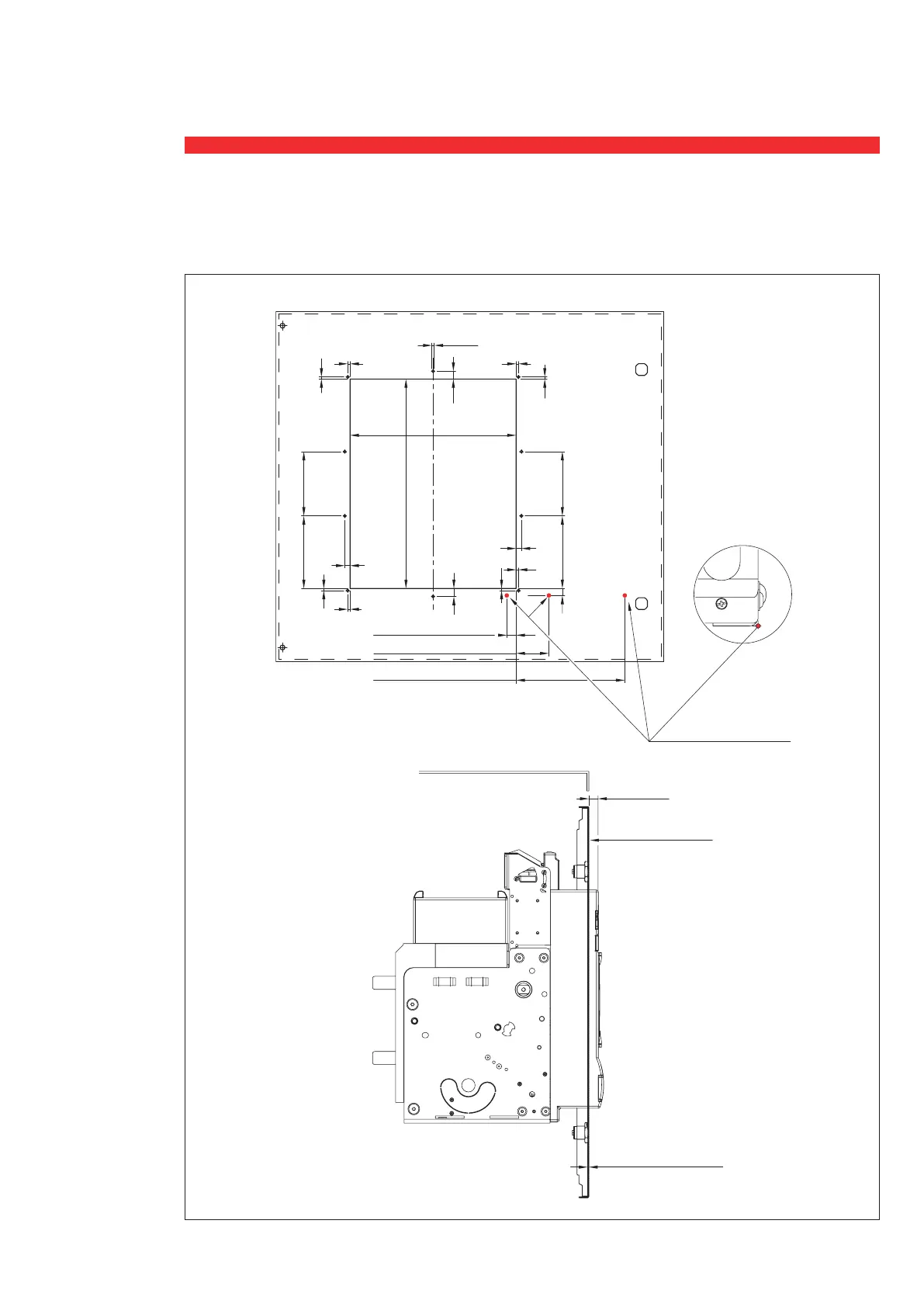
10.2 Découpe et perçage du plastron pour la version fixe
DMX
3
2500-4000-6300. Détails de montage.
0÷50mm
ø4 (x10)
358
110124
13.5
3.5
3.5
4
4
284
9
3.5
4
9
4
3.5
11
13.5
110124
Pas nécessaire avec
les plastrons XL
3
-4000
ANGLE DE
L’APPAREIL
PLASTRON
Épaisseur du plastron:
MIN 1.2mm -
MAX 2.5mm
*pour la version 42 kA
également
* DMX
3
2500 = 11,5
DMX
3
4000 = 56
DMX
3
6300 = 186

Related product manuals