EasyManua.ls Logo

LEGRAND DMX3 Series - Door cut-out for fixed version

LEGRAND DMX3 Series
140 pages
Go to English
Print Icon
To Next Page IconTo Next Page
To Next Page IconTo Next Page
To Previous Page IconTo Previous Page
To Previous Page IconTo Previous Page
Loading...
94
DMX
3
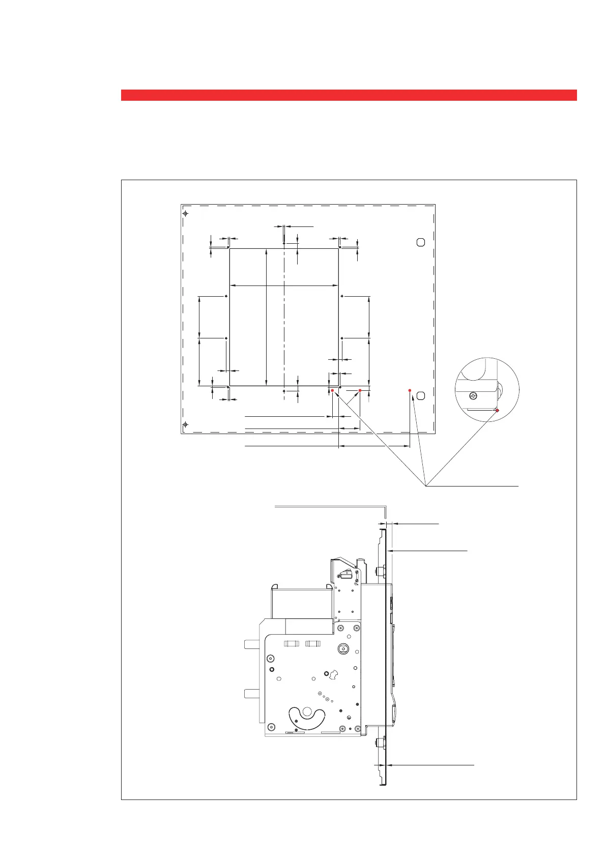
10.2 Door cut-out for fixed version
DMX
3
2500-4000-6300. Mounting details.
0÷50mm
ø4 (x10)
358
110124
13.5
3.5
3.5
4
4
284
9
3.5
4
9
4
3.5
11
13.5
110124
Not necessary with
XL
3
-4000 front panel
CORNER OF
THE BREAKER
PANEL DOOR
Thickness of the panel:
MIN 1.2mm -
MAX 2.5mm
* also for 42 kA version
*DMX
3
2500 = 11,5
DMX
3
4000 = 56
DMX
3
6300 = 186

Related product manuals