EasyManua.ls Logo

LEGRAND DMX3 Series - Door cut-out and door drilling for draw-out version

LEGRAND DMX3 Series
140 pages
Go to English
Print Icon
To Next Page IconTo Next Page
To Next Page IconTo Next Page
To Previous Page IconTo Previous Page
To Previous Page IconTo Previous Page
Loading...
98
DMX
3
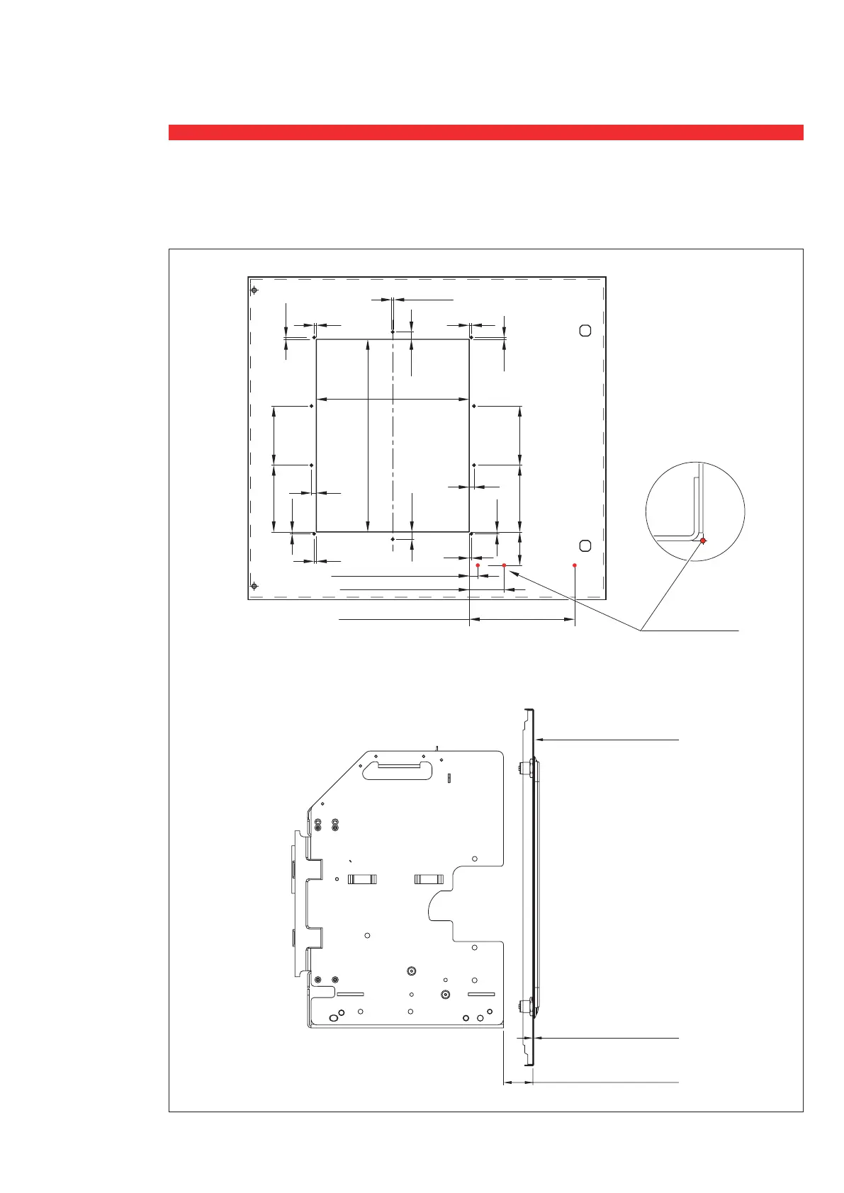
10.4 Door cut-out and door drilling for draw-out version
DMX
3
2500-4000-6300. Mounting details.
49,5
ø4 (x10)
358
110124
13.5
3.5
3.5
4
4
284
9
3.5
4
9
4
3.5
62
13.5
110124
CORNER OF
THE BREAKER
PANEL DOOR
Not necessary with
XL
3
-4000 front panel
Thickness of the panel:
MIN 1.2mm -
MAX 2.5mm
minimum distance
*also for 42 kA version
*DMX
3
2500 = 16,5
DMX
3
4000 = 66
DMX
3
6300 = 196

Related product manuals