EasyManua.ls Logo

Lennox CBX32MV-060 - Sequence of Operations; HEATING; COOLING

Lennox CBX32MV-060
67 pages
Print Icon
To Next Page IconTo Next Page
To Next Page IconTo Next Page
To Previous Page IconTo Previous Page
To Previous Page IconTo Previous Page
Loading...
Page 47
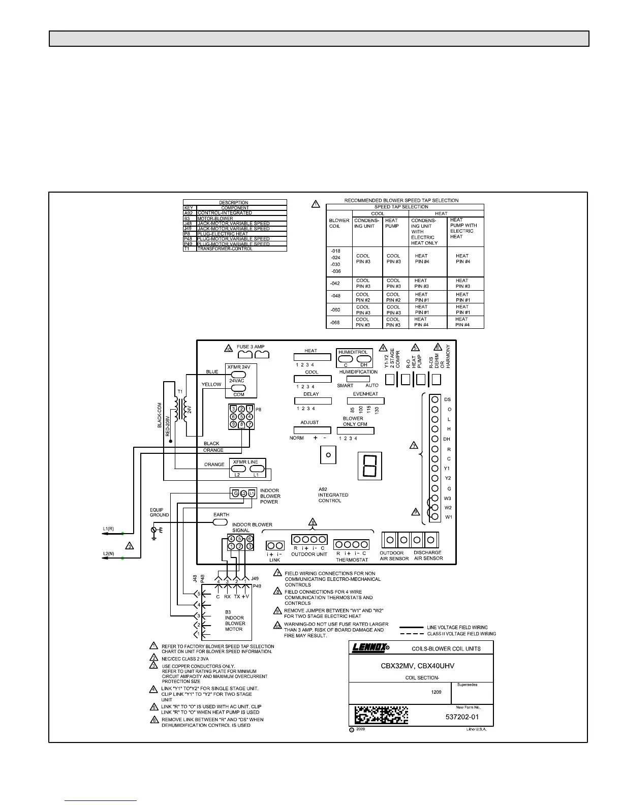
CBX32MV
Sequence of Operations
A CBX32MV - 208/230V SINGLE PHASE
1. Line voltage is routed to transformer T1 and blower motor B3.
2. T1 supplies 24VAC to terminal strip TB2, which supplies 24VAC to the indoor thermostat and electric heat, if used.
HEATING
1. W1 of the thermostat provides a W1 demand to the Control. The Control outputs a 22VDC signal to the K32 relay contained
in the ECB40 heat section. (See electric heat diagrams for operation).
2. Control energizes blower motor B3 on heating speed.
COOLING
1. See Table 13 for cooling sequence of operation.

Table of Contents

Other manuals for Lennox CBX32MV-060

Related product manuals