EasyManua.ls Logo

Lennox ELITE EL297UH070XV36B - Page 48

Lennox ELITE EL297UH070XV36B
74 pages
To Next Page IconTo Next Page
To Next Page IconTo Next Page
To Previous Page IconTo Previous Page
To Previous Page IconTo Previous Page
Loading...
Page 48
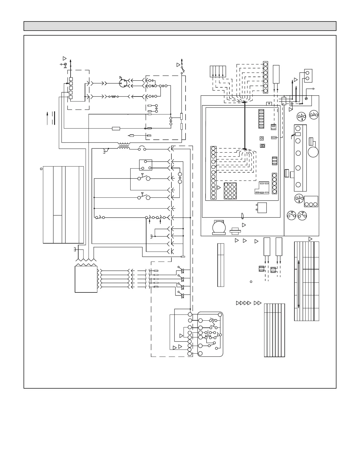
EL297UHV With Ignition Control 107045-XX
Figure 61
P159
IGNITOR
1
2
NOTE-
IF ANY WIRE IN THIS APPLIANCE IS REPLACED,IT
MUST BE REPLACED WITH WIRE OF LIKE SIZE,
HEATING UNITS-GAS
S51
L1
N
N NN
EQUIPMENT
GROUND
N N
P159
J159
BLUE
BLUE
CB8
WARNING-
ELECTRIC SHOCK HAZARD,CAN CAUSE INJURY
OR DEATH.UNIT MUST BE GROUNDED IN ACCORDANCE
WITH NATIONAL AND LOCAL CODES.
DENOTES OPTIONAL COMPONENTS
LINE VOLTAGE FIELD INSTALLED
CLASS II VOLTAGE FIELD WIRING
24V
24VAC
SEC
NO
S102
C
GV1
GAS
VALVE
R33
S10
INTEGRATED
CONTROL
A92
THERMOSTAT HEAT ANTICIPATION SETTING
INTEGRATED CONTROL
UNIT
LOW HEAT
PRESSURE
SWITCH
CB8
S102
HIGH HEAT
PRESSURE
SWITCH
W2
PRIMARY
LIMIT
S47
CIRCUIT
BREAKER
T1
TRANSFORMER
120V ACC
(IF USED)
G
N
L1
GV1
GAS
VALVE
B3
S51
S1
ROOM THERMOSTAT
C
Y1
OUTDOOR
UNIT
Y1
G
W1
R
C
9
8
7
6
5
4
321
C
HI
S10
S128
COMBUSTION AIR
INDUCER MOTOR
B6
P84
J84
INTERLOCK
DOOR
L13
POWER
CHOKE
P48
P49
J48
P48
24VAC
COM
Y2
W2
W1
G
Y1
R
DS
3
2
TERMINAL BOARD
INDOOR
BLOWER
MOTOR
HIGH HEAT
Y2
INDOOR
BLOWER
MOTOR
Y2
Supersedes
Litho U.S.A.
C
MVL
7
11
5
12
HLI
RO(OUT)
6
8
TH
GND
TR
MV COM
FLAME
SENSOR
A92
FLAME
SENSE
2
3
1
HUM
4
WHT
120V
T1
BLK
B6
J84
J84
COMBUSTION AIR
BLOWER MOTOR
3
COMBUSTION AIR
BLOWER MOTOR
P84
P84
B6
2
DOOR
INTERLOCK
5
LINE
CIRC
2
HIGH HEAT
PRESSURE SWITCH
1
LOW HEAT
PRESSURE SWITCH
S128
PS2
MVH
PS1
C
10
9
GND
HOT
4
32
1
O
W951
C
NO
9
4
11
(1) S47
(2) S47
2 HEAT 2 COOL
S47
J159
P159
FLAME
ROLLOUT
SWITCH
FLAME
ROLLOUT
SWITCH
10
11
12
TB1
HONEYWELL VALVE
1
2
3
1
4
4
BURNERS
R33
IGNITOR
FLAME
SENSOR
5
6
7
FIELD SUPPLIED ACC WIRE
6
HI COOL LOW COOL
1
HEAT
COOL
FAN
ON
R
W1
Y1
G
W2
Y2
COOL
2
2
AUTO
TWO STAGE
HEAT,COOL
USE COPPER CONDUCTORS ONLY
LENNOX
W1
W2
G
Y2
Y1
C
L O
DS
3
RO(IN)
L
HEAT PUMP
CUT W951 JUMPER FROM O TO R, LABELED
"HEAT PUMP", AT A92 CONTROL BOARD, WHEN
USED FOR DUAL FUEL APPLICATIONS
RATING, INSULATION THICKNESS, AND TERMINATION
K1
K4
K7
K8
8
8
HI
W914
W915
M
M
12
34
5
67
L1
J3
NEUTRALS
J2
.65 AMP
.43 AMP
WHITE RODGERS VALVE
NOTE: SEE INSTALLATION INSTRUCTIONS FOR PROCEDURE
TO SET CORRECT BLOWER SPEED FOR SPECIFIC COOLING
TONNAGE BEING APPLIED, AND HEATING TEMPERATURE
RISE DESIRED.
TYPICAL SYSTEM SHOWN FOR 2 HEAT/2 COOL WITH A
CONVENTIONAL THERMOSTAT. SEE INSTALLATION
INSTRUCTIONS FOR CONNECTIONS TO OTHER EQUIPMENT
AND ACCESSORIES.
DIP SWITCH FACTORY DEFAULT IS FOR A TWO
STAGE THERMOSTAT
7
7
DH AND L TERMINALS ARE NOT USED.
7
CUT W914 JUMPER LABELED DEHUM
FROM DS TO R, AT A92 CONTROL BOARD,
WHEN USED WITH ComfortSense
7000 THERMOSTAT
R
A92
INTEGRATED
CONTROL
2011
C
R
DH
DIAGNOSTIC
PUSH
BUTTON
ACC
HUM
120V
ACC
J3
P3
J3
P3
P3
J3
P3
J3
L1
C
C
BLACK
SEVEN
SEGMENT
LED
ACC
K11
K5
HUMIDIFIER
HUMIDIFIER
HUMIDIFIER
120VAC
S1 ROOM THERMOSTAT
HUM
AT IFC
HUM
AT IFC
24VAC
TO C
TO R OR H ON CS7000
TO N
TO L1
SEE HUM VIEWS
BLUE
P2
J2
EL297UH045XE36B
EL297UH070XE36B
EL297UH090XE48C
EL297UH110XE60C
L13 USED ON 3/4 AND 1 HP ONLY
UH045XE36B
UH070XE36B
UH090XE48C
UH110XE60C
HI
SPEED TAPS
BLK
RED
WHT
WHT
WHT
YEL
PINK
PURPLE
BLUE
YEL
YEL
ORG
PURPLE
BRW
PNK
BRW
STRIPE
BRW
GRN/YEL
WHT/PINK
5
J49
BLUE
YLW
BRN
BLK
4
3
21
5
PARK
LOW HEAT
HIGH HEAT
LOW COOL
HIGH COOL
SEE BLOWER SPEED CHART
RED
LOW HEAT PARK
LOW
BLACK
BLACK
BLACK
YELLOW
YELLOW
YELLOW
RED
RED
RED
RED
YELLOW
BLUE
YELLOW
RED
BROWN
BROWN
BROWN
BROWN
BLUE
BLUE
BLACK
BLUE
BROWN
BLOWER SPEED SELECTION
JACK/PLUG-INDOOR BLOWER-POWER
J,P48
J,P49
J,P2
J,P84
JACKPLUG CHART
J,P3
J,P159
JACK/PLUG-INDOOR BLOWER-SPD TAP
JACK/PLUG-BURNER CONTROL
JACK/PLUG-COMB AIR INDUCER
JACK/PLUG-INDUCER/IGNITER
JACK/PLUG-IGNITION
9
DO NOT USE RED SPEED TAP FOR HIGH HEAT ON
ALL MODELS. DO NOT USE YELLOW SPEED TAP
FOR HIGH HEAT ON 070XE36B OR 090XE48C
MODELS.
9
CUT W915 JUMPER LABELED "2 STAGE COMPR."
FROM Y1 TO Y2 AT A92 CONTROL WHEN USED
WITH A 2 STAGE COOL THERMOSTAT.
C
L
G
N
WHT/BLK
BLACK
GN/YLW
WHT
P49
24-V
COM.
B3
BRN W / YEL

Related product manuals