EasyManua.ls Logo

Lennox FCM 150

Lennox FCM 150
130 pages
To Next Page IconTo Next Page
To Next Page IconTo Next Page
To Previous Page IconTo Previous Page
To Previous Page IconTo Previous Page
Loading...
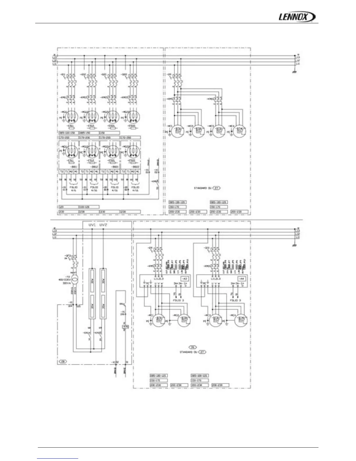
ELECTRICAL DATA : WIRING DIAGRAMS
FLEXYII_WSHP-IOM-0909-E Page 86
MAIN CURRENT DIAGRAM TRI / 400V / 50Hz + T

Table of Contents

Other manuals for Lennox FCM 150

Related product manuals