EasyManua.ls Logo

Lennox FCM 150 - Climatic Controller Wiring

Lennox FCM 150
130 pages
Print Icon
To Next Page IconTo Next Page
To Next Page IconTo Next Page
To Previous Page IconTo Previous Page
To Previous Page IconTo Previous Page
Loading...
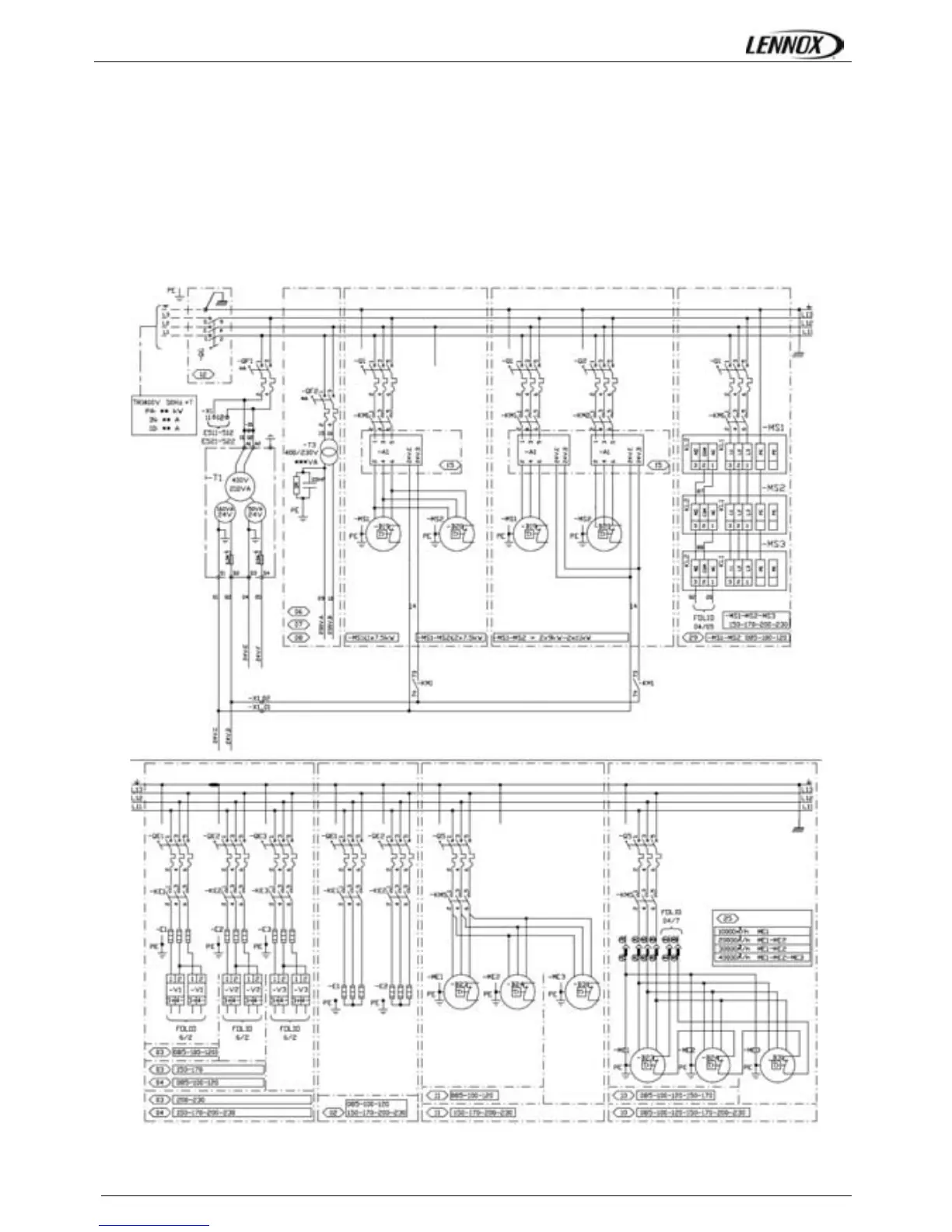
ELECTRICAL DATA : WIRING DIAGRAMS
FLEXYII_WSHP-IOM-0909-E Page 85
FCM
= Cooling only unit
FHM
= Heat pump unit
FGM
= Cooling only unit with gas fired heating
FDM
= Heat pump unit with gas fired heating
FWH
= Heat pump unit with water condensing
FWM
= Heat pump unit with water condensing and gas fired heating
MAIN CURRENT DIAGRAM TRI / 400V / 50Hz + T

Table of Contents

Other manuals for Lennox FCM 150

Related product manuals