EasyManua.ls Logo

Lennox FCM 150 - Control Variables and Settings

Lennox FCM 150
130 pages
Print Icon
To Next Page IconTo Next Page
To Next Page IconTo Next Page
To Previous Page IconTo Previous Page
To Previous Page IconTo Previous Page
Loading...
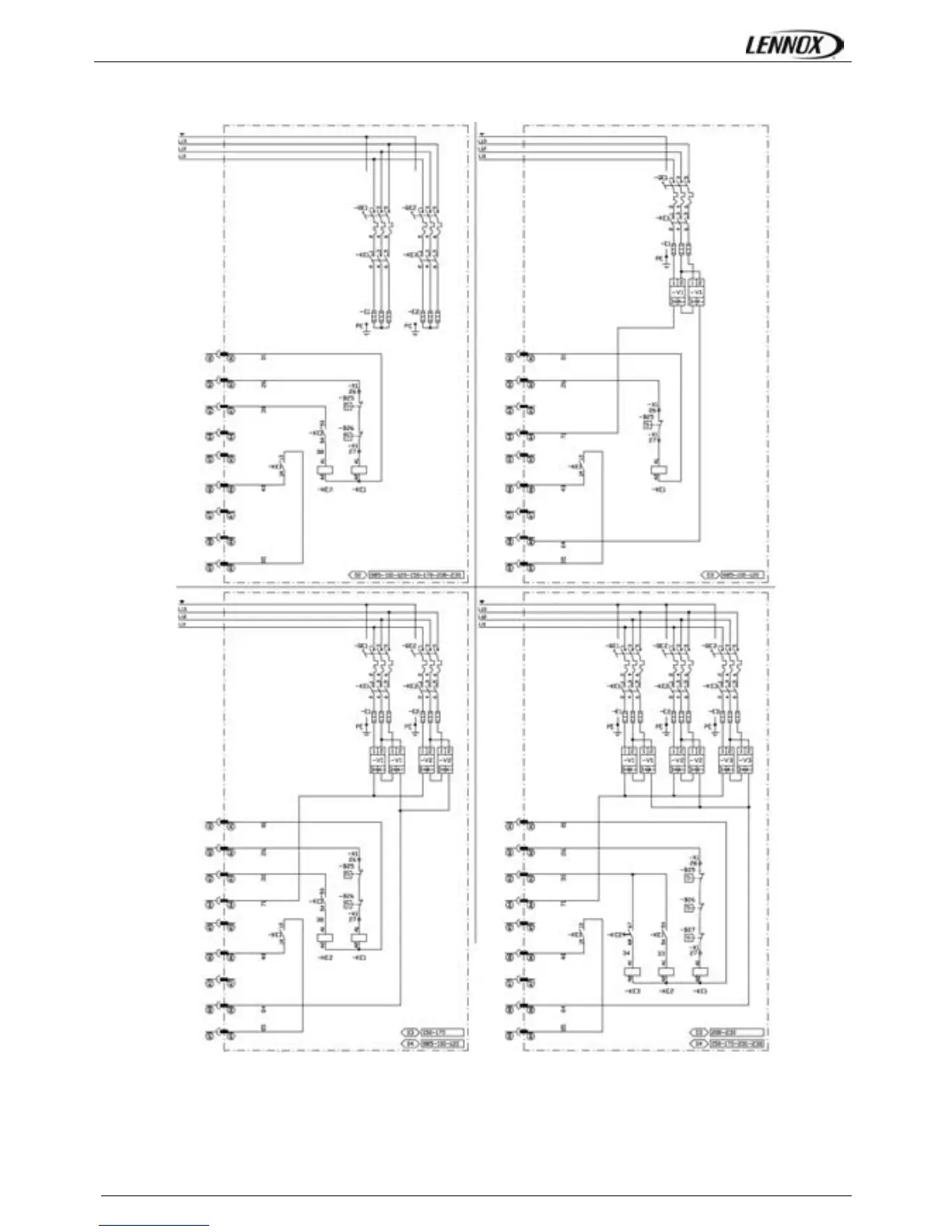
ELECTRICAL DATA : WIRING DIAGRAMS
FLEXYII_WSHP-IOM-0909-E Page 96
WIRING DIAGRAM ELECTRIC HEATER

Table of Contents

Other manuals for Lennox FCM 150

Related product manuals