EasyManua.ls Logo

Lennox G61MPVT - Unit Dimensions; Up-Flow Position Dimensions

Lennox G61MPVT
16 pages
To Next Page IconTo Next Page
To Next Page IconTo Next Page
To Previous Page IconTo Previous Page
To Previous Page IconTo Previous Page
Loading...
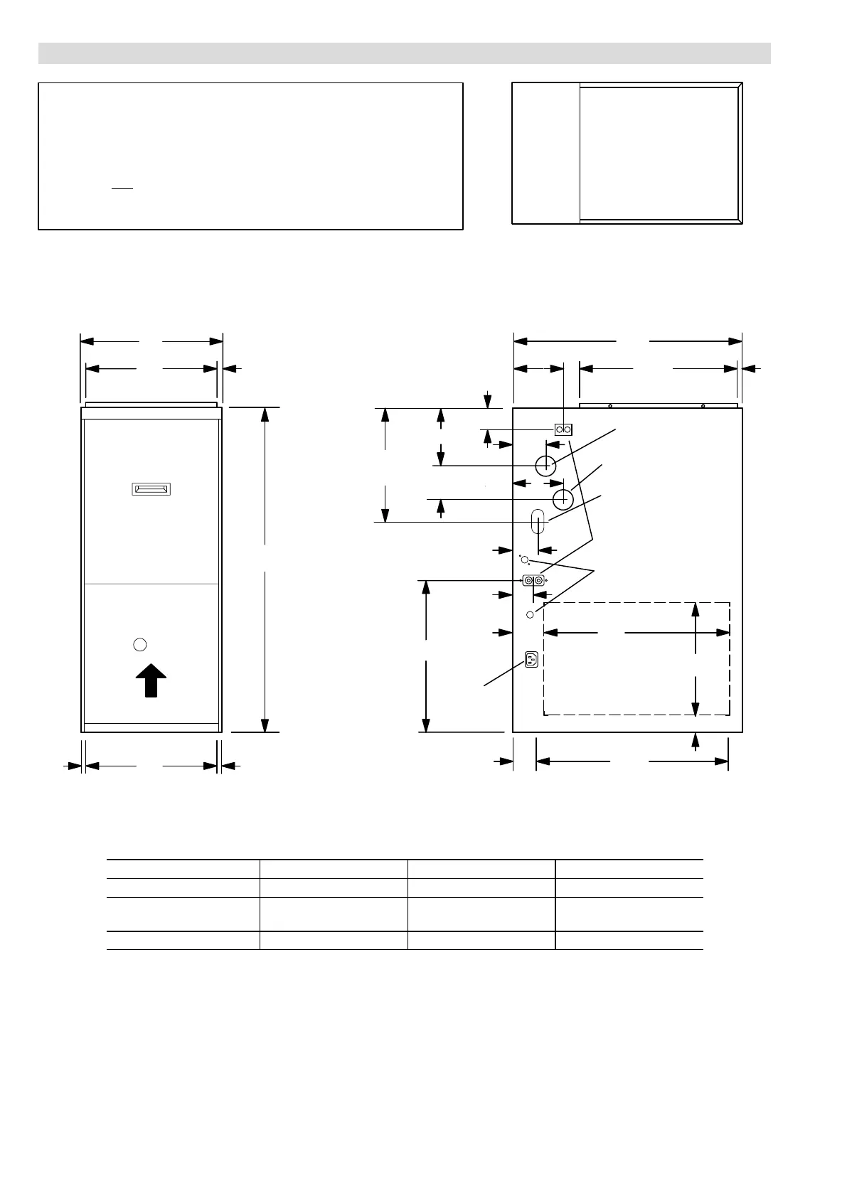
G61MPVT − 50hz / Page 8
DIMENSIONS − MM − UP−FLOW POSITION SHOWN
1
Bottom Return
Air Opening
1
Bottom Return
Air Opening
ELECTRICAL INLET
(Either Side)
SUPPLY AIR
OPENING
AIR FLOW
FRONT VIEW SIDE VIEW
TOP VIEW
A
B
14
C
19
19
724
494
597
108
295 Right
248 Left
124 Right
57 Left
1016
102
49
584
356
14
GAS PIPING INLET
(Either Side)
EXHAUST AIR OUTLET
(Either Side)
CONDENSATE
TRAP CONNECTION
(Either Side)
64
476
1
OPTIONAL
RETURN CUTOUT
(Either Side)
Up−Flow Only
1
NOTE − 60C and 60D size units that require air volumes over 850
L/s must have one of the following:
a. Single side return air with transition, to accommodate
508 x 635 x 25 mm air filter. Required to maintain proper air velocity.
b. Bottom return air.
c. Return air from both sides.
d. Bottom and
one side return air.
See Blower Performance Tables for additional information.
COMBUSTION AIR INTAKE
(Either Side)
165
103
165
171
140
79
IEC
Receptacle
Model No. A B C
G61MPVT−36B−070 446 416 406
G61MPVT−60C−090
G61MPVT−60C−110
533 505 495
G61MPVT−60D−135 622 594 584

Related product manuals