EasyManua.ls Logo

Lennox LCH060H4E - Electric Heat Wiring Diagram - G, J, M Voltages

Lennox LCH060H4E
72 pages
Print Icon
To Next Page IconTo Next Page
To Next Page IconTo Next Page
To Previous Page IconTo Previous Page
To Previous Page IconTo Previous Page
Loading...
Page 67
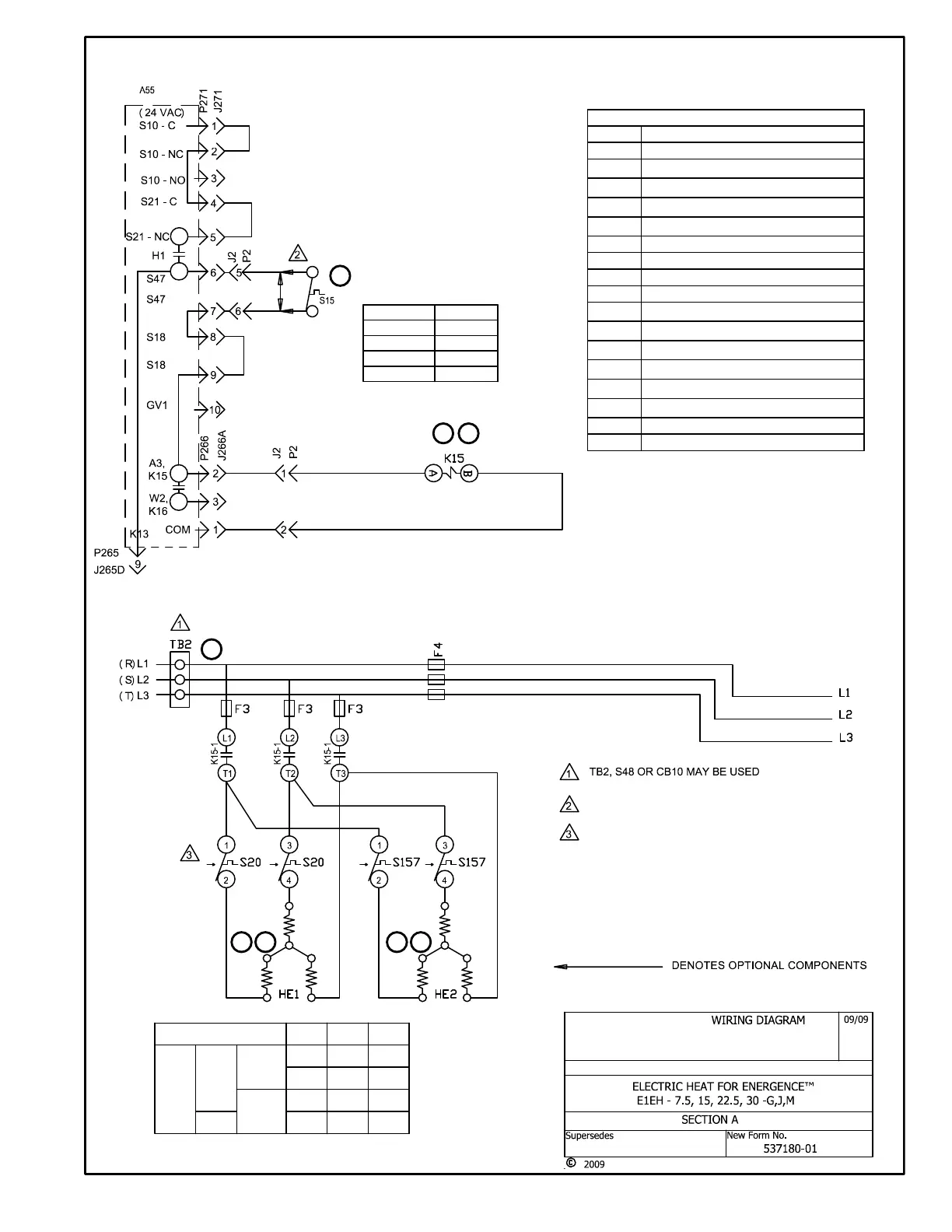
E1EH 7.5, 15, 22.5, 30 -G, J, M ELECTRIC HEAT
Lennox Commercial
HEATING
DESCRIPTION
KEY DESCRIPTION
A55
PANEL, MAIN
F3
FUSE, ELECTRIC HEAT
F4
FUSE, UNIT
HE 1
ELEMENT, ELECTRIC HEAT 1
J2
JACK, ELECTRIC HEAT
J265C
JACK, CONTACTOR RELAY
J266A
JACK, HEATING CONTROL STG 1
J271A,B JACK, HEATING SENSORS STG 1
K15,1 CONTACTOR, ELECTRIC HEAT 1
P2
PLUG, ELECTRIC HEAT
P265
PLUG, CONTACTOR RELAY
P266
PLUG, HEATING CONTROL
P271
PLUG, HEATING SENSORS STG 1
S15
SWITCH, LIMIT PRIMARY ELECTRIC HEAT
S20
SWITCH, LIMIT SECONDARY ELECTRIC HEAT 1
S157
SWITCH, LIMIT SECONDARY ELECTRIC HEAT 2
TB2
TERMINAL STRIP, UNIT
REMOVEJUMPER PLUG WHEN FIELD INSTALLING
ELECTRIC HEAT
S20 LIMIT ON ”A BOX UNITS IS RESETABLE
DESIGNATION VOLTAGE
Y 208230/60/3
G 460/60/3
J 575/60/3
M
380420/50/3
KW HE1 HE2
072
060
036 048
7.5 7.5
15 15
22.5 15 7.5
30 15
15
3
1
4
6
7
3
4 7

Related product manuals