EasyManua.ls Logo

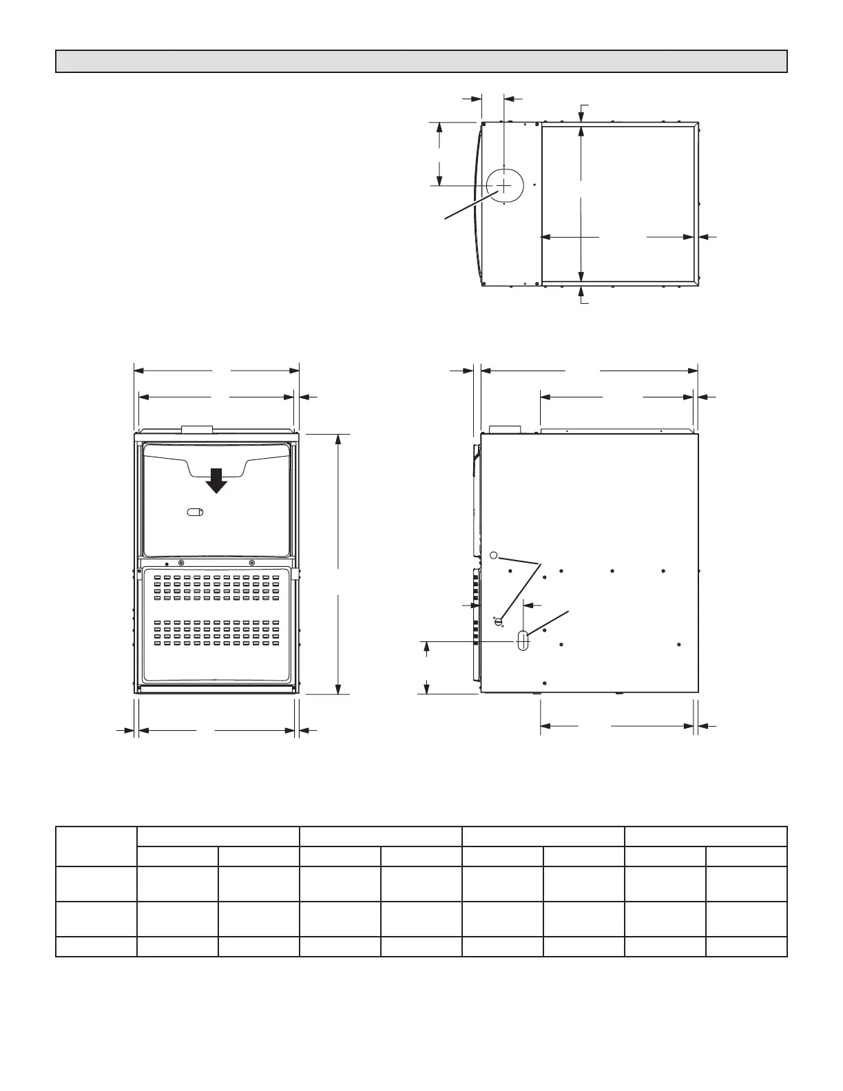
Lennox MERIT ML180DFE - Unit Dimensions - Inches (MM)

Lennox MERIT ML180DFE
35 pages
Print Icon
To Next Page IconTo Next Page
To Next Page IconTo Next Page
To Previous Page IconTo Previous Page
To Previous Page IconTo Previous Page
Loading...
Page 2
Unit Dimensions - inches (mm)
3/4 (19)
Front Panel
GAS PIPING INLET
(Either Side)
FLUE OUTLET
(Top)
ELECTRICAL INLET
(Either Side)
RETURN AIR
OPENING
FRONT VIEW SIDE VIEW
TOP VIEW
A
B
C
D
3/4
(19)
27-3/4
(705)
19-1/4
(489)
6-5/8 (168) Right
7-1/8 (181) Left
5-3/8 (137) Right
2-3/16 (56) Left
33
(838)
AIR FLOW
3/4
(19)
19-7/16
(494)
9/16
(14)
B
Supply
Air
Supply
Air
9/16
(14)
9/16
(14)
3-1/8
(79)
9/16
(14)
9/16
(14)
19-7/16
(494)
3/4
(19)
ML180DFE
Model
A B C D
in mm in mm in mm in mm
045E36A
070E36A
14-1/2 368 13-3/8 340 13 330 4-3/4 121
070E36B
090E48B
17-1/2 446 16-3/8 416 16 406 6-1/4 159
110E60C 21 533 19-7/8 504 19-1/2 495 8 203

Related product manuals