EasyManua.ls Logo

Lennox MMA018SM4 - MPC Three-Zone Refrigerant Cycle Diagram; MPC Four-Zone Refrigerant Cycle Diagram

Lennox MMA018SM4
88 pages
Print Icon
To Next Page IconTo Next Page
To Next Page IconTo Next Page
To Previous Page IconTo Previous Page
To Previous Page IconTo Previous Page
Loading...
50
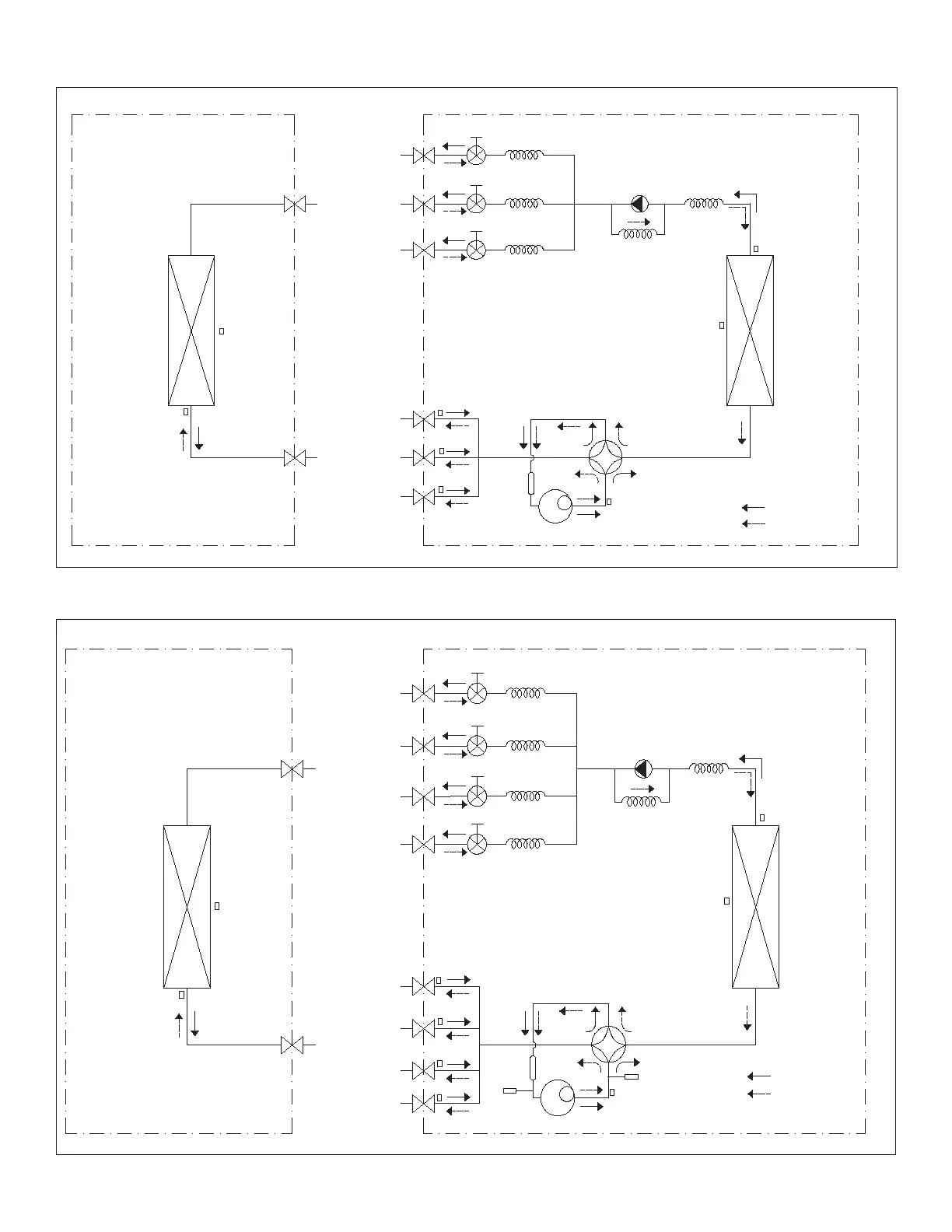
8.3. MPC Three-Zone Refrigerant Cycle Diagram
LIQUID VALVE A
GAS VALVE A
Compressor
Indoor Coil Outdoor Coil
4-WAY VALVE
COOLING
HEATING
T2 Evaporator
temp. sensor
middle
T1 Room
temp. sensor
T3
Condenser
temp. sensor
T5 Discharge
temp. sensor
T4 Ambient
temp. sensor
INDOOR OUTDOOR
EXV A
CAPILIARY A
CHECK VALVE
CAPILIARY TUBE
EXV B
CAPILIARY B
LIQUID VALVE B
GAS VALVE B
EXV C
CAPILIARY C
LIQUID VALVE C
GAS VALVE C
Accumulator
T2B-A Evaporator
temp. sensor outlet
T2B-B
T2B-C
8.4. MPC Four-Zone Refrigerant Cycle Diagram
LIQUID VALVE A
GAS VALVE A
Compressor
Indoor Coil Outdoor Coil
4-WAY VALVE
COOLING
HEATING
T2 Evaporator
temp. sensor
middle
T1 Room
temp. sensor
T3
Condenser
temp. sensor
T5 Discharge
temp. sensor
T4 Ambient
temp. sensor
INDOOR OUTDOOR
EXV A
CAPILIARY A
CHECK VALVE
CAPILIARY TUBE
EXV B
CAPILIARY B
LIQUID VALVE B
GAS VALVE B
EXV C
CAPILIARY C
LIQUID VALVE C
GAS VALVE C
EXV D
CAPILIARY D
LIQUID VALVE D
GAS VALVE D
Accumulator
High pressure
switch
Low pressure
switch
T2B-A
Evaporator
temp. sensor outlet
T2B-B
T2B-C
T2B-D

Table of Contents

Related product manuals