EasyManua.ls Logo

Lennox SL280DFV SERIES - Page 45

Lennox SL280DFV SERIES
67 pages
Print Icon
To Next Page IconTo Next Page
To Next Page IconTo Next Page
To Previous Page IconTo Previous Page
To Previous Page IconTo Previous Page
Loading...
Page 45
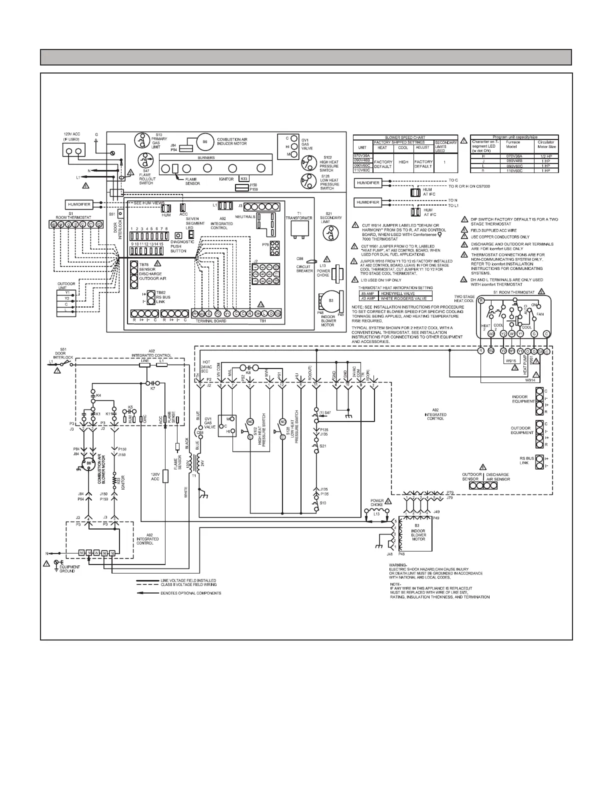
VII- Wiring and Sequence of Operation
Wiring Diagram With Ignition Control 103130-XX
SL280DFV Schematic Wiring Diagram

Other manuals for Lennox SL280DFV SERIES

Related product manuals