EasyManua.ls Logo

Lennox SSB036H4S4

Lennox SSB036H4S4
28 pages
To Next Page IconTo Next Page
To Next Page IconTo Next Page
To Previous Page IconTo Previous Page
To Previous Page IconTo Previous Page
Loading...
Page 21
SSB*H4 SERIES
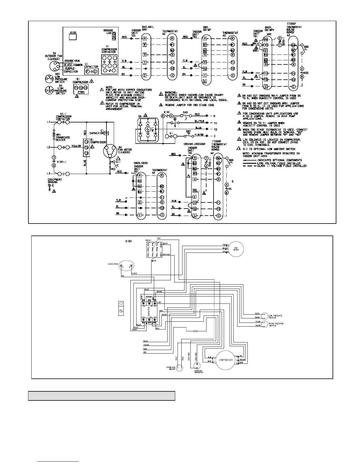
Figure 16. SSB*H4 Typical Wiring Diagram (G-Voltage)
Figure 17. SSB*H4 Typical Factory Diagram (G-Voltage)
Servicing Units Delivered Void of Charge
If the outdoor unit is void of refrigerant, clean the system
using the procedure described below.
1. Leak check system using procedure outlined on page
17.
2. Evacuate the system using procedure outlined on
page 18.
3. Use nitrogen to break the vacuum and install a new
filter drier in the system.
4. Evacuate the system again using procedure outlined
on page 18.

Related product manuals