EasyManua.ls Logo

Lennox VRB144

Lennox VRB144
48 pages
To Next Page IconTo Next Page
To Next Page IconTo Next Page
To Previous Page IconTo Previous Page
To Previous Page IconTo Previous Page
Loading...
15
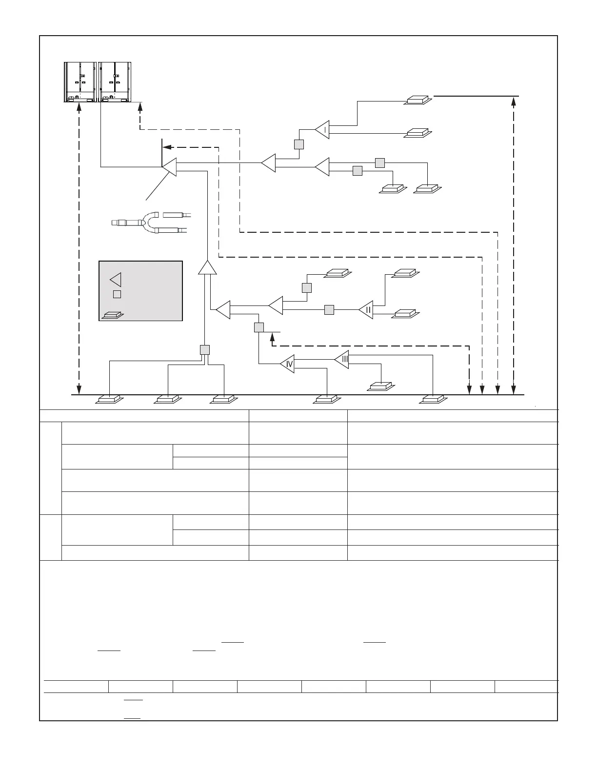
LEGEND
Branch Pipe
Mode Selection
Box (MS)
Indoor Unit
N3
(048)
N5
(048)
N6
(024)
N7
(024)
N9
(018)
N8
(009)
N2
(024)
N4
(009)
N1
(024)
N10
(018)
A
B
C
E
F
b
c
d
f
g
j
h
i
l
k
m n
e
L1
L2
L9
L13
L11
L10
L12
L3
a
MS1
MS2
MS3
MS4
MS5
MS6
L4
L5
L6
OUTDOOR UNITS
(one or more outdoor units)
Maximum piping length from the first Branch Pipe
joint to the farthest indoor unit - 295 ft. (90 m)
Maximum equivalent single piping length - 656 ft.(200 m)
Maximum piping length from MS Device
to downstream indoor unit - 131 ft. (40 m)
The first line Branch Pipe
Maximum level difference between
Indoor Unit and Outdoor Unit - 361 ft. (110 m)
Maximum level difference between indoor units - 98 ft. (30 m)
INDOOR UNITS
D
N11
(048)
p
N12
(048)
q
N13
(018)
r
L8
L7
MS7
NOTE - Capacities are shown in parenthesis
Maximum Permitted Refrigerant Pipe Length and Maximum Height Difference
Piping Length Permitted value Piping
Piping
Length
Total piping length
1
3280 ft. (1000 m)
L1+(L2+L3+L4+L5+L6+L7+L8+L9+L10+L11+L12+L1
3)×2+a+b+c+d+e+f+g+h+i+j+k+l+m+n+p+q+r
Single piping length
Actual length 574 ft. (175 m)
L1+L7+L9+L11+j+k+n
Equivalent length
2
656 ft. (200 m)
Piping length from the rst branch joint to the
farthest indoor unit
3
132/295 ft. (40/90 m) L7+L9+L11+j+k+n
Piping length from Mode Selection Box (MS) to
the downstream indoor unit of itself
132 ft. (40 m) j+k+n
Level
Di󰀨erence
Level di󰀨erence between
indoor unit and outdoor unit
Outdoor unit up
4
360 ft. (110 m) - - -
Outdoor unit down
5
230 ft. (70 m) - - -
Level di󰀨erence between indoor units 98 ft. (30 m) - - -
NOTES:
The rst branch in all systems must be centrally located between all Mode Selection (MS) Boxes.
1
When counting the total piping length, double the actual length of the distribution pipes between rst Branch Pipe joint and Mode Selection Box (MS): Installation.
Total piping length = L1+(L2+L3+L4+L5+L6+L7+L8+L9+L10+L11+L12+L13)×2+a+b+c+d+e+f+g+h+i+j+k+l+m+n+p+q+r ≤ 3280 ft.(1000 m).
2
Each Branch Pipe or bend is equivalent to 20 in. (508 mm).
3
The maximum allowable piping length from the rst Branch Pipe joint to the farthest indoor unit must be ≤ 132 ft. (40 m), but if the following conditions are met, the
maximum allowable length can be extended to 295 ft. (90 m):
• The piping length from each indoor unit to the nearest Branch Pipe joint or direct connected Mode Selection Box (MS) must be less than 132 ft. (40m) (b to r).
• The di󰀨erence in length between the outdoor unit to the farthest indoor unit, and the outdoor unit to the nearest indoor unit is ≤ 132 ft. (40 m).
Example: The farthest indoor unit is N10, The nearest indoor unit is N11 (L1+L7+L9+L11+j+k+n) minus (L1+L7+L8+p) ≤ 132 ft. (40 m).
Increase the distribution pipe diameter between the rst Branch Pipe and Mode Selection Box (MS) L2-L13. If the pipe diameter is the same as the main outdoor pipe,
it does not need to be increased.
Pipe Size Allowable Increase Diameters (in.):
3/8 to 1/2 1/2 to 5/8 5/8 to 3/4 3/4 to 7/8 7/8 to 1-1/8 1-1/8 to 1-3/8 1-3/8 to 1-5/8 1-5/8 to 2-1/8
4
When the outdoor unit is higher than indoor units and the level di󰀨erence is over 164 ft. (50 m), it is required to set an oil return bend every 33 ft.(10 m) in the gas pipe of
the main pipe. Refer to Installation Instructions for additional details.
5
When the outdoor unit is lower than indoor units and the level di󰀨erence is more than 132 ft.(40 m), the main liquid pipe pipe need to increase by one size.

Table of Contents

Related product manuals