EasyManua.ls Logo

Lennox VRB144

Lennox VRB144
48 pages
To Next Page IconTo Next Page
To Next Page IconTo Next Page
To Previous Page IconTo Previous Page
To Previous Page IconTo Previous Page
Loading...
28
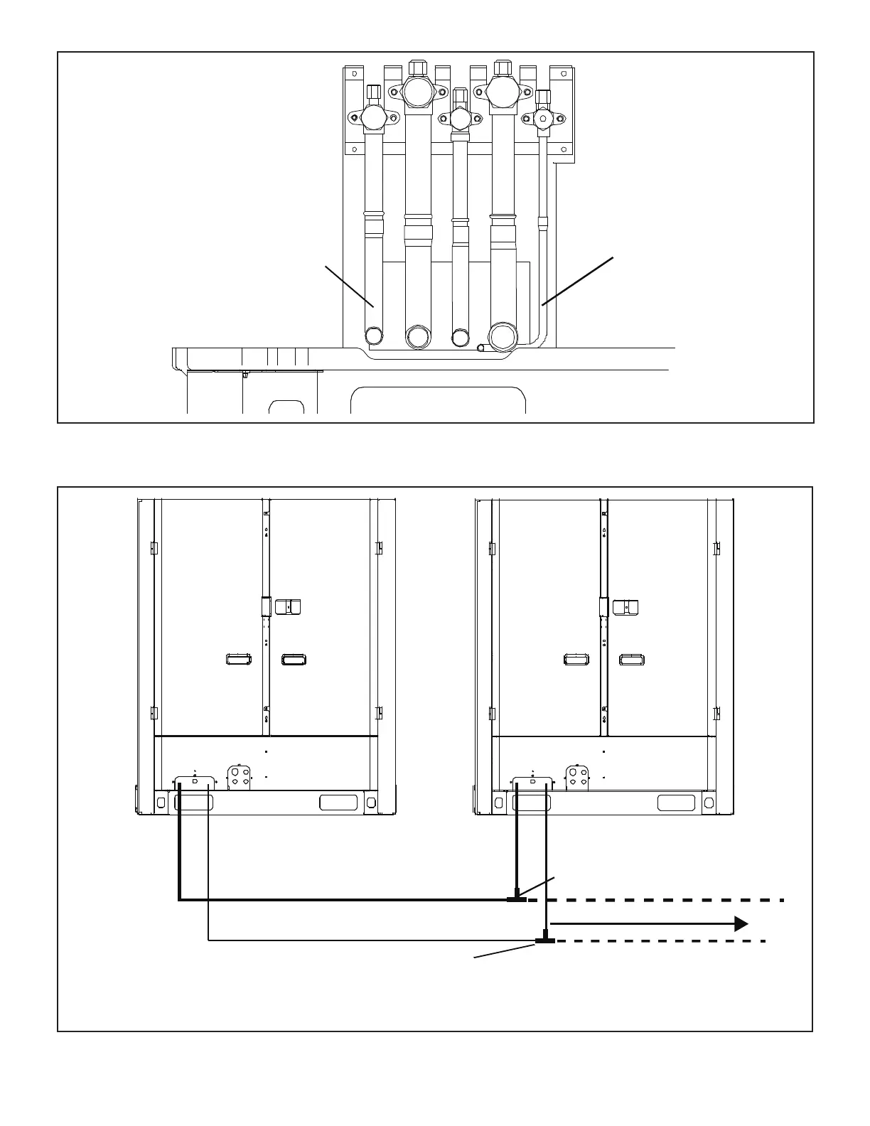
Figure 24. Heat Recovery Parallel Piping Connections
High pressure
gas balance pipe
(3/4 in. diameter)
Oil balance pipe
(1/4 in. diameter)
Figure 25. Connective Piping Sizes for Manifolded Outdoor Units
To third outdoor unit in a
triple module configuration
Item “N” in outdoor branch
pipe kit accessory
Item “P” in outdoor branch
pipe kit accessory
Two-module system shown
High Pressure gas balance pipe Ø 3/4
Oil balance pipe Ø 1/4

Table of Contents

Related product manuals