EasyManua.ls Logo

Lenze ESMD251X2SFA - Page 17

Lenze ESMD251X2SFA
20 pages
Print Icon
To Next Page IconTo Next Page
To Next Page IconTo Next Page
To Previous Page IconTo Previous Page
To Previous Page IconTo Previous Page
Loading...
ENGLISH
15
Commissioning
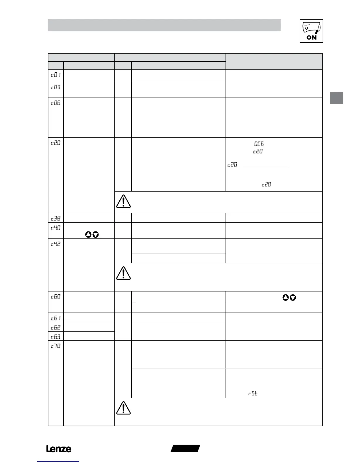
Code Possible Settings
IMPORTANT
No. Name Lenze Selection
Acceleration time 2 5.0 0.0 {s} 999 Activated using CE1...CE3
c01 = frequency change 0 Hz...C11
c03 = frequency change C11...0 Hz
For S-ramp accel/decel, adjust c82
Deceleration time 2 5.0 0.0 {s} 999
Holding time -
automatic DC
injection brake
(Auto-DCB)
0.0 0.0 {s} 999
0.0 = not active
999 = continuous brake
Automatic motor braking below 0.1 Hz
by means of motor DC current for the
entire holding time (afterwards: U, V,
W inhibited)
Conrm motor suitability for use with
DC braking
I
2
t switch-off (thermal
motor monitoring)
100 30 {%} 100
100% = smd rated output current
Triggers 0 fault when motor current
exceeds for too long
= motor current rating x 100
smd output rating
Example: if motor = 6.4amps and smd =
7.0amps, then = 91%
WARNING!
Maximum setting is rated motor current (see nameplate). Does not provide full
motor protection!
Actual PI setpoint c86 c87 Display
Frequency setpoint
via keys
0.0 0.0 {Hz} 500 Only active if C01 = 1
Start condition
(with mains on)
1 0 Start after LOW-HIGH change at
terminal 28
See also c70
1 Auto start if terminal 28 = HIGH
WARNING!
Automatic starting/restarting may cause damage to equipment and/or injury to
personnel! Automatic starting/restarting should only be used on equipment that is
inaccessible to personnel.
Mode selection
for c61
0
0 Monitoring only
c60 = 1 allows the keys
to adjust
speed setpoint (c40) while monitoring
c61
1 Monitoring and editing
Present status/error status/error message Display
Refer to Section 5 for explanation of
status and error messages
Last error error message
Last error but one
7
Conguration TRIP
reset (error reset)
0 0 TRIP reset after LOW-HIGH
change at terminal 28, mains
switching, or after LOW-HIGH
change at digital input “TRIP reset”
1 Auto-TRIP reset Auto-TRIP reset after the time set in
c71
More than 8 errors in 10 minutes will
trigger fault
WARNING!
Automatic starting/restarting may cause damage to equipment and/or injury to
personnel! Automatic starting/restarting should only be used on equipment that is
inaccessible to personnel.
Phone: 800.894.0412 - Fax: 888.723.4773 - Web: www.clrwtr.com - Email: info@clrwtr.com

Related product manuals