EasyManua.ls Logo

Lenze I95AE240F - Page 116

Lenze I95AE240F
Print Icon
To Next Page IconTo Next Page
To Next Page IconTo Next Page
To Previous Page IconTo Previous Page
To Previous Page IconTo Previous Page
Loading...
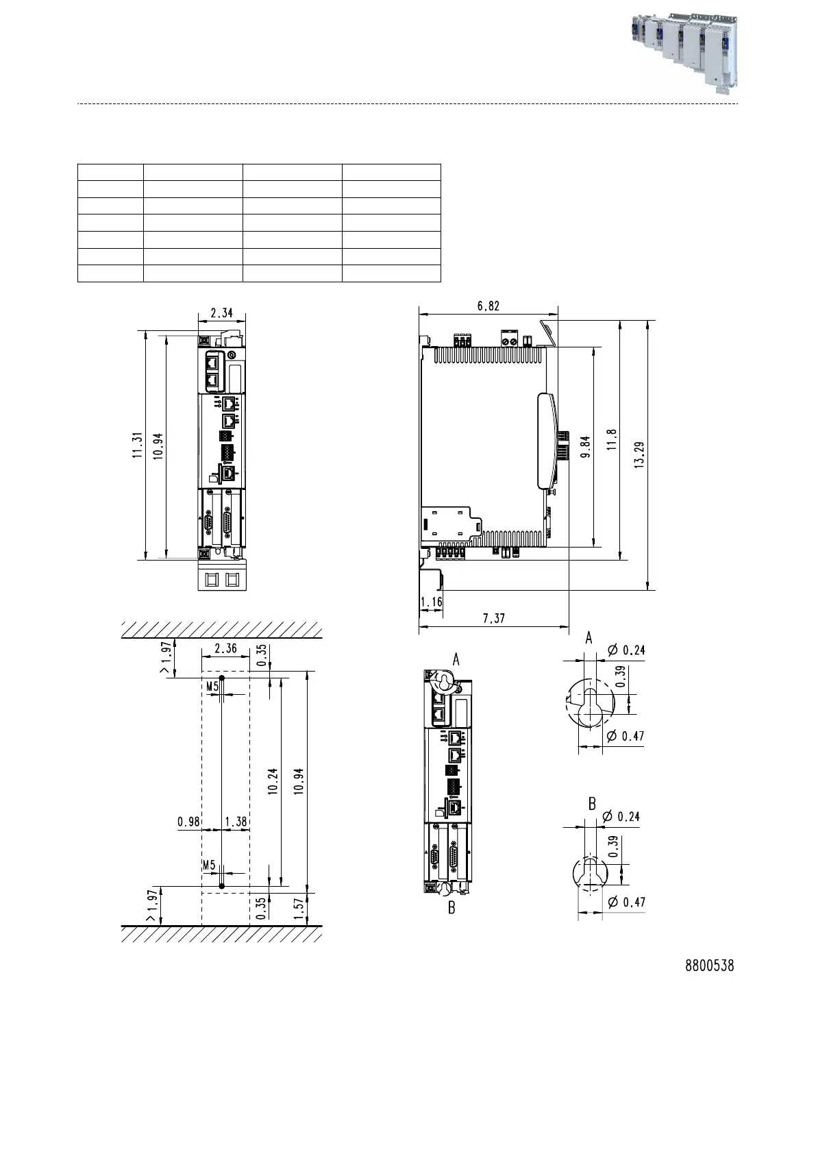
0.5 hp ... 5 hp
The dimensions in inch apply to:
0.5 hp I95AE137D
0.75 hp I95AE155D I95AE155F
1 hp I95AE175D I95AE175F
2 hp I95AE215D
3 hp I95AE222C I95AE222F
5 hp I95AE240F
Weight 3.5 lb 3.5 lb 3.5 lb
Mechanical ins
tallaon
Dimensions
116

Table of Contents

Related product manuals