EasyManua.ls Logo

Lenze I95AE240F - 3-Phase Mains Connection 230;240 V; Connection Diagrams

Lenze I95AE240F
Print Icon
To Next Page IconTo Next Page
To Next Page IconTo Next Page
To Previous Page IconTo Previous Page
To Previous Page IconTo Previous Page
Loading...
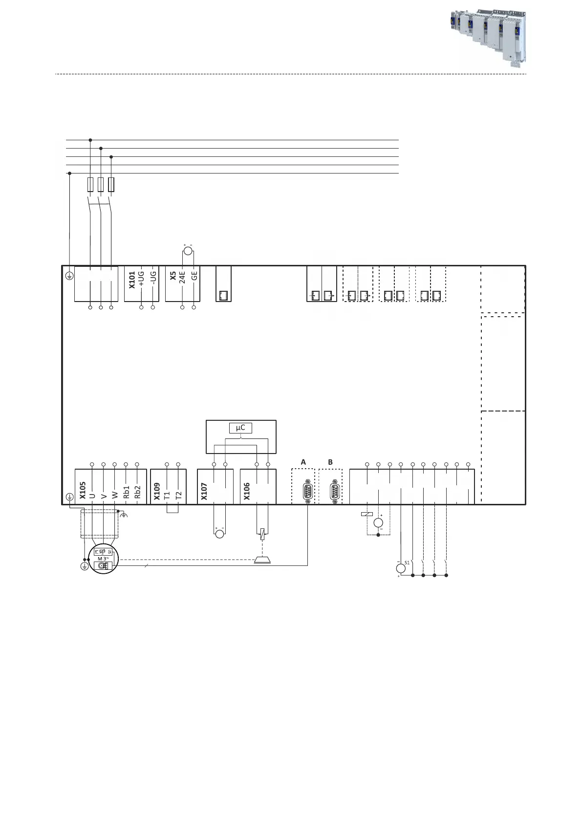
3-phase mains c
onnecon 230/240 V
Connecon diagrams
The connecon plan is valid for the inverters I95AExxxC and I95AExxxD.
X257
X256
PROFINET
X267
X266
EtherNet/IP
X247
OUT
X246
IN
EtherCAT
X237
OUT
X236
IN
onboard
EtherCAT
X16
Engineering port
X83
X82
X1
n
EYF
GB
24B
DC 24 V SELV/PELV
(+19.2 V ... +28.8 V)
BD2
BD1
DC 24 V SELV/PELV
(+19.2 V ... +28.8 V)
DC 24 V SELV/PELV
(+19.2 V ... +28.8 V)
X3
GDO
DO1
24O
GDI
DI1
DI2
DI3
DI4
AI1-
AI1+
DC 24 V SELV/PELV
(+19.2 V ... +28.8 V)
X100
L1
L2
L3
F1
F3
Q1
3/N/ PE
208 V ... 240 VAC
3/ PE
170 V ... 264 VAC
45 Hz ... 65 Hz
PE
N
L3
L2
L1
Fig. 9: Wiring example
S1 Start/stop
Fx
Fuses
Q1 Mains contactor
EYF Lenze system cable
--- Dashed line = opons
A c
onnecon diagram for the terminal X1 can be found under: 4Basic Safety - STO ^ 161
A connecon plan for the terminals X82 and X83 can be found under: 4Extended Safety ^ 163
Electrical ins
tallaon
Mains connecon
3-phase mains connecon 230/240 V
138

Table of Contents

Related product manuals