EasyManua.ls Logo

Lenze I95AE240F

Lenze I95AE240F
184 pages
Go to English
To Next Page IconTo Next Page
To Next Page IconTo Next Page
To Previous Page IconTo Previous Page
To Previous Page IconTo Previous Page
Loading...
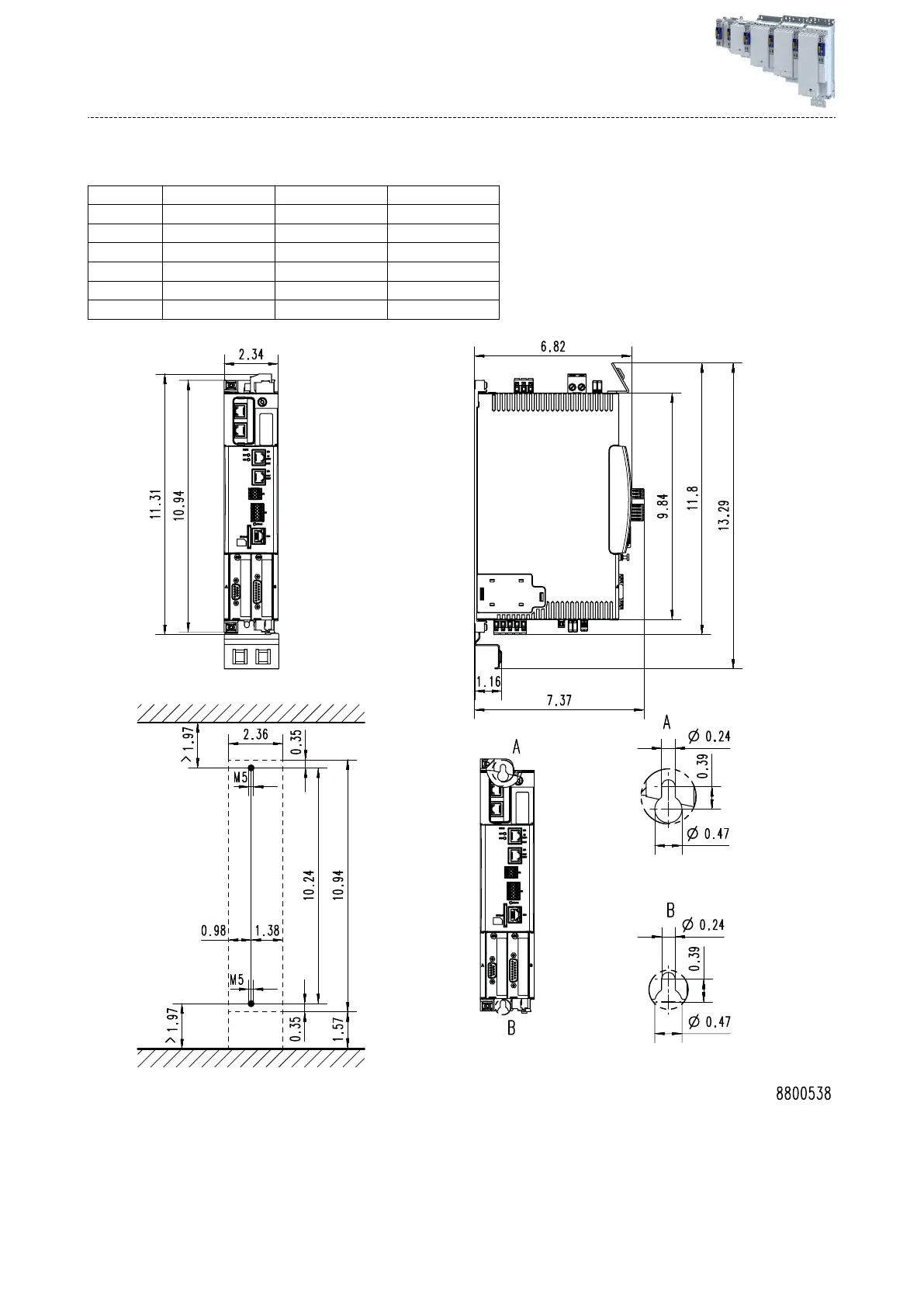
0.5 hp ... 5 hp
Die Abmessungen in inch gelten für:
0.5 hp I95AE137D
0.75 hp I95AE155D I95AE155F
1 hp I95AE175D I95AE175F
2 hp I95AE215D
3 hp I95AE222C I95AE222F
5 hp I95AE240F
Gewicht 3.5 lb 3.5 lb 3.5 lb
Mechanische Ins
tallaon
Abmessungen
26

Table of Contents

Related product manuals